Как оформить интерьер маленькой квартиры: полный гид для тех, кто мучается с недостатком метров


В вашем распоряжении ограниченное количество квадратов? Даже малометражку можно оформить стильно и функционально, не отказываясь от удобств. В этой статье делимся идеями оформления дизайна интерьера маленькой квартиры: какой стиль и цветовую гамму выбрать, как правильно зонировать пространство и что можно сделать с типовыми планировками.
Как оформить малогабаритное жилье
Советы по оформлению
Какой стиль выбрать
— Минимализм
— Скандинавский
— Лофт
— Неоклассика
Варианты планировки
— Студия
— Однушка
— Двушка
— Евродвушка
— Хрущевка
Особенности дизайна
Продумывая дизайн маленького жилья, нужно следовать нескольким важным принципам.
- Все должно работать на визуальное расширение пространства. В этом помогут светлые цвета, однотонные поверхности (либо мелкие неконтрастные рисунки), зеркала, максимум естественного света.
- Мебель не должна быть громоздкой. Вместо массивных изделий выбирайте легкие и компактные модели на изящных ножках. По возможности используйте подвесные конструкции.
- При ограниченном метраже все решает зонирование. С его помощью можно превратить одну комнату в две или даже три. При этом важно не загромождать пространство и не перекрывать свет. Вместо глухих фальшстен и сплошных перегородок используйте рейки с просветами, невысокие ширмы или прозрачные стеклянные экраны. Двери можно заменить арками и широкими проемами.
- Чем проще отделка, тем лучше. Она должна быть нейтральным фоном, который размывает реальные границы и не привлекает внимание к реальным размерам комнат.
- Максимально используйте полезную площадь: антресольные шкафы на кухне, утепленная лоджия как дополнение жилой комнаты, хранение под кроватью, подиумы, ниши и т.п.
Выбор стилистики
Для малометражки подойдет не каждый стиль: например, классика в чистом виде или хай-тек требуют больших пространств и размаха. Но некоторые направления прекрасно чувствуют себя и на ограниченном метраже.
Минимализм
Минимализм уже стал новой классикой и воспринимается не столько как отдельный стиль, сколько как характеристика любого современного интерьера. Для него характерны практичность и функциональность; натуральные материалы; акцент на формы и фактуры; сдержанная, почти монохромная палитра; отсутствие лишних деталей, минимум декора.
Скандинавский стиль для маленьких квартир
Скандинавская эстетика не сдает позиций и прекрасно подходит для маленьких пространств. Жители северных стран знают, как рационально использовать небольшие площади и что такое недостаток солнца. Типичные черты сканди можно определить так.
- Светлая палитра, спокойные природные цвета и несколько ярких акцентных красок.
- Недорогие, но качественные материалы.
- Практичность во всем.
- Умеренный декор, который создает уют за счет приятных природных фактур.
- Обязательное использование дерева.
Лофт
Несмотря на то, что для лофта характерны высокие потолки и большие открытые пространства, его часто используют в городских квартирах, в том числе и малогабаритных. Необязательно воплощать все каноны — можно взять характерные элементы и воссоздать стиль лофт в маленькой квартире, как на фото ниже.
К типичным характеристикам относятся кирпичная кладка — можно использовать как натуральный кирпич, так и декоративные замены; брутальные холодные фактуры (камень, бетон, металл, стекло); серо-коричневая цветовая гамма; индустриальные элементы — ящики, трубы, цепи, сетки, потертая кожа и т.п.
Часто это направление применяют в студиях, используя для зонирования высокие барные стойки, металлические перегородки и стеллажи.
Неоклассика
В отличие от классического интерьера, неоклассика не так требовательна к пространству. Это более современный и облегчённый вариант, который можно оформить и в малогабаритке.
Маркеры стиля
- Симметрия — это роднит неоклассику с традиционными интерьерами.
- Центр, вокруг которого выстраивается вся композиция.
- Плавные линии и округлые формы.
- Лепнина — она может быть акцентной и современной (например, хорошо смотрятся молдинги на стенах или потолке).
- Натуральные материалы, фактура мрамора, драгоценные металлы.
Варианты планировки
Студия
Самый популярный тип малогабаритного жилья — студии. Стандартные размеры — 20-35 кв. м, хотя встречаются и варианты площадью от 14 до 45 квадратов.
Главная особенность — отсутствие комнат как таковых. Вся квартира — одно общее пространство, которое можно зонировать по своему вкусу. Есть квадратные и прямоугольные студии, в последних практически всегда одно окно — это нужно учитывать при оформлении пространства.
Пример для вдохновения
Эта студия — пример того, как можно оформить жилье без отдельных комнат для семьи с ребенком. Исходные данные стандартные: прямоугольные апартаменты площадью 33 кв. м без учета балкона, небольшой коридор и санузел, за ними — жилое помещение.
Дизайнеры выбрали современный стиль с эконотками и сделали акцент на прихожей, оклеив одну стену яркими обоями с растительным узором. Также здесь расположилось основное хранение — большой шкаф от пола до потолка с открытой секцией для верхней одежды. В санузле удалось разместить полноценную ванну, раковину с системой хранения и стиральную машину. Выбрали модель с вертикальным барабаном, чтобы сэкономить место.
Жилое помещение с помощью простенка и полупрозрачных стеклоблоков условно разделили на две части: компактную уголовую кухню и жилую гостиную-спальню. В ней же разместилась и детская: ребенку выделили собственную отдельную кровать у стены и маленькое рабочее место.
По другую сторону расположился обеденный стол на троих и большой раскладной диван. Напротив — ТВ и вместительная тумба для хранения.
Однушка
От студий малометражные однушки отличаются наличием отдельной жилой комнаты и обособленной кухни. В единственном помещении совмещают функции спальни, гостиной и иногда рабочего кабинета. Площадь жилья может быть от 30 до 50 квадратов.
Пример для вдохновения
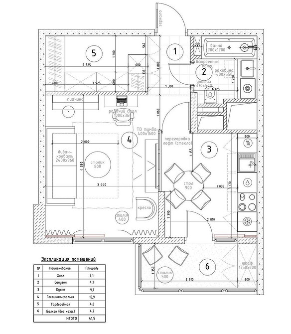
Этот проект — пример стильного современного интерьера маленькой квартиры. На площади 41 квадрат расположились: прихожая, ванная, кухня, спальня-гостиная, гардероб, балкон.
Чтобы визуально сделать пространство больше, дизайнер использовала полупрозрачные перегородки с рельефным стеклом. Интерьер выполнен в сдержанной цветовой гамме, главный акцент — глубокий оливковый цвет. Гостиная также выполняет роль спальни, поэтому для нее выбрали большой раскладной диван.
Двушка
Малометражки могут быть и двухкомнатными. Как правило, площадь такого жилья составляет 45-50 кв. м с двумя небольшими помещениями и отдельной кухней. Это могут быть как новостройки, так и жилье советских времен.
Пример для вдохновения
Эта малогабаритная двушка для девушки находится в доме 1972 года. Планировка нетипичная для современных квартир: помещения не сосредоточены вокруг центра и не соединены коридорами: две комнаты смежные. Прихожая практически отсутствует: входная зона всего 2 кв. м, сразу за ней — четырехметровая ванная. К ней примыкает кухня, в которую можно попасть только через жилую часть.
Для этого интерьера дизайнер выбрала активную насыщенную палитру: глубокий серый оттенок как основа, его дополняют сочный желтый, синий и красный. Входная зона и проходная гостиная выполнены в единой цветовой гамме. В зале разместили большой диван, ТВ-зону, обеденную группу у окна, напротив — открытый книжный шкаф во всю стену.
На кухне палитра немного меняется: в отделке появился белый цвет, а сочный контраст создает желто-синее сочетание. Главный визуальный акцент — холодильник. Чтобы зрительно облегчить пространство, верхний ярус шкафов оставили только на одной стене, а одну освободили, оставив только контрастную черную вытяжку.
В спальне главенствует насыщенный коралловый оттенок, который оттеняют глубокие синие и серые тона. Помимо кровати, в помещении удалось разместить небольшой рабочее место, а также вместительную гардеробную, которую хотела заказчица. Эта зона находится за изголовьем кровати и скрыта за простенком. Внутрь ведут два прохода, закрытые бархатной шторой.
Евродвушка
В новостройках все чаще встречается формат евродвушки. Такая квартира чуть больше однокомнатной и меньше стандартной двухкомнатной, средний метраж — 35-45 квадратов. Главное отличие от обычной однушки — обособленная спальня и большое общее помещение, где объединены кухня и гостиная. Такая планировка отражает европейский подход к жилью: в спальне — спать, а вся жизнь сосредоточена в общей зоне. Прихожая обычно маленькая, санузел один.
Пример для вдохновения
Автор этого проекта оформила квартиру 38,5 кв. м для молодого человека. Из интересных особенностей — газовый котел и красивый эркерный балкон. Изначальную планировку почти не трогали, только объединили два маленьких санузла в один, чтобы разместить сидячую ванну — это было одним из пожеланий заказчика. Еще одним условием было не превращать однушку в студию, поэтому никакие стены не сносили.
Кухню расположили в правой части главного помещения, поскольку нужно было учитывать расположение газовых коммуникаций. Их заказчик попросил максимально спрятать — это удалось сделать с помощью фальшфартука и съемного короба наверху (необходимо оставлять свободный доступ ко всем коммуникациям — прим. редакции).
Барная стойка, продолжающая рабочую поверхность, выступила визуальной границей между зоной готовки и отдыха. В зале разместился мягкий раскладной диван на случай гостей и телевизор с компактными системами хранения. Соединить лоджию с жилой зоной было нельзя по закону, поэтому дизайнер сделала французское остекление и распашные двери, которые не закрывают обзор на красивый видовой балкон.
Благодаря акцентной горчичной стене спальня получилась самой насыщенной комнатой в квартире. В ней разместили только необходимое: удобную кровать, вместительный платяной шкаф, комод для дополнительного хранения и несколько открытых полок под книги и мелочи. Стена напротив кровати осталась пустой, чтобы туда можно было повесить проектор или телевизор.
Хрущевка
Хрущевки стоит вынести отдельным пунктом, поскольку их типовые планировки значительно отличаются от современных квартир. Вот ряд важных особенностей, которые присущи любому жилью хрущевской эпохи: низкие потолки — разительное отличие от сталинок и старого фонда; маленькая изолированная кухня, обычно 4-5 кв. м; пространство дробится на мелкие помещения, есть смежные комнаты.
Обычно это однушки до 36 кв. м или двушки 38-48 кв. м. Есть трешки площадью до 58 квадратов.
Чтобы компенсировать недостаток места и маленькие пространства, при ремонте часто выбирают скандинавский стиль для маленькой квартиры-хрущевки. Органично в старых постройках смотрятся легкая неоклассика и контемпорари.
Пример для вдохновения
Эта квартира находится в кирпичном доме серии I-511, которая считалась одной из лучших для того времени. Хозяевам досталась типичная хрущевская расстановка: пятиметровая кухня, две смежные комнаты, маленький совмещенный санузел. Общая площадь — 41 квадрат.
Несмотря на скромные габариты, дизайнер и заказчики пошли на смелый шаг — сделать часть стен темно-синими. Их уравновешивает светлая мебель и теплый бежевый цвет, который используется как в отделке, так и в декоре. Для крошечной пятиметровой кухни выбрали угловой гарнитур. Высота подоконника позволила задействовать его в качестве рабочей поверхности, что увеличило полезную площадь комнаты. Обеденную группу вынесли в гостиную, оставив на кухне место только под самое необходимое.
Здесь была достаточно просторная прихожая. Эту особенность автор проекта использовала для того, чтобы организовать дополнительное хранение — в коридор поместился большой светлый шкаф. Зеркальные фасады отражают часть жилой комнаты, тем самым зрительно увеличивая пространство.
Ванная выполнена в лаконичном современном стиле, цвета перекликаются с общей палитрой. Основная отделка светлая, чтобы компенсировать маленькую площадь.
Пока комментариев нет. Начните обсуждение!