Дизайн двухкомнатной квартиры: 11 планировок «до-после» и 4 подходящих стиля (137 фото)
Двушка — один из самых популярных типов жилья на рынке. Это отличный вариант как для одного человека, так и для пары, двух братьев или сестер, семьи с ребенком. При грамотном зонировании даже на небольшой площади можно разместить все необходимое для каждого жильца. В этой статье расскажем, какую планировку выбрать или как улучшить имеющуюся, а также что учесть, планируя дизайн двухкомнатной квартиры.
Все о дизайне и ремонте двухкомнатной квартиры
Типы планировок
— Сталинка
— Хрущевка
— Брежневка
— Новострой
— Свободная
Подходящие стили
— Современный
— Скандинавский
— Минимализм
— Неоклассика
Типы планировок
Дизайн-проект двухкомнатной квартиры начинается с планировки. Рассмотрим, какие есть варианты, в чем их плюсы и минусы и как можно улучшить исходные данные.
Сталинка
Старый фонд — это, в первую очередь, неповторимая атмосфера прошлого. К сталинкам относят дома, построенные в период с 30-х по поздние 50-е годы.
К
- Высокие потолки (от 3 м);
- Хорошую тепло- и шумоизоляцию стен.
- Просторные кухни.
- Минимум несущих стен или вовсе их отсутствие — это дает больше возможностей для перепланировки.
- Как правило, есть балкон или эркер.
Есть и
- Изношенность коммуникаций.
- Отсутствие капитального ремонта всего дома.
- Необходимость согласовывать установку внешнего блока кондиционера.
- Сложность согласования перепланировки.
Примеры планировок
Это пример линейного плана: комнаты располагаются друг за другом, а все три окна выходят на одну сторону. Квартиру проектировали для семейной пары, поэтому площадь одного из помещений увеличили за счет коридора и сдвига перегородки, чтобы получить более просторную гостиную. Санузел объединили и добавили к нему тамбур, получив три изолированные зоны.
Расположение комнат в этой сталинке напоминает первый пример, но сама формы квартиры более сложная. Окна так же выходят на одну сторону. Основные изменения коснулись зоны при входе. Так, дверь на кухню сделали из гостиной вместо коридора, а его превратили в небольшую хозяйственную комнату. Ванную и туалет совместили, немного нарастив площадь за счет того же коридора.
Наконец, совсем другой вариант планировки — квадрат с эркером. Квартира принадлежит молодой актрисе, поэтому функционал адаптировали под нужды одного человека. Значительных изменений не вносили, поскольку расположение и размер помещений уже были достаточно удобными. Глухую перегородку между двумя жилыми комнатами заменили стеной с проемами, а в прихожей сделали нишу под шкаф.
Хрущевка
К хрущевкам относят дома, построенные после середины 50-х. Это популярный вариант вторичного жилья, который, правда, не лишен недостатков. Но такую двушку вполне реально превратить в удобное и красивое жилье.
- Неудобные размеры и расположение жилых комнат.
- Длинные узкие коридоры.
- Маленькие санузлы и кухни.
- Низкие потолки.
- Плохая шумоизоляция.
В таких квартирах часто делают перепланировку, пусть даже незначительную. Важно помнить, что любые работы, которые затрагивают конфигурацию помещений, нужно согласовывать с жилищными службами.
Примеры планировок
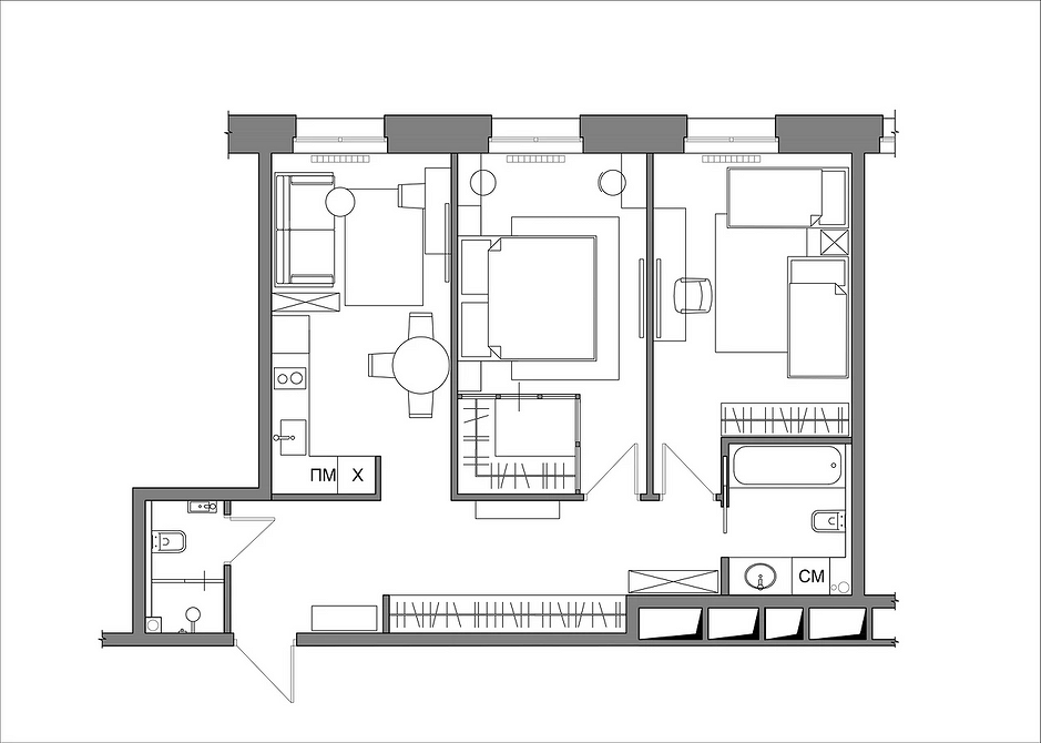
Владельцы этой квартиры — молодая пара, которая собирается завести ребенка. Планировочное решение делалось с учетом этого. Большую комнату отвели под спальню, выделив часть площади под полноценную гардеробную. На будущее оставили место под детскую кроватку и пеленальный столик. Часть коридора отдали под постирочную, других изменений не вносили.
Брежневка
Наконец, самый распространенный тип вторичного жилья — панельки, или брежневки.
Основное время их возведения пришлось на период с 1964 по 1985 год, но в некоторых регионах России застройка продолжалась вплоть до конца 90-х.
- Более высокие потолки по сравнению с хрущевками.
- Раздельный санузел с гидроизоляцией.
- Кухни площадью до 9 кв.м.
- Изолированные комнаты.
- Большая часть стен — несущие (это усложняет перепланировку).
Примеры планировок
Двушка — угловая, поэтому окна выходят на две стороны. Это большой плюс. Стены здесь несущие, поэтому изменений в изначальный план практически не вносили. Поменяли только вход в гостиную из прихожей, заменив двери на большую раздвижную перегородку (именно это стена была ненесущей), добавив тем самым естественного света во входную зону. На лоджии сделали небольшой рабочий кабинет для хозяйки.
Это типовая планировка дома 1975 года: прямоугольник с окнами на одну сторону, раздельным санузлом и кухней около 7 квадратов. В одной из комнат организовали рабочий кабинет для хозяина (он работает массажистом на дому), в другой сделали спальню. От нее забрали маленькую часть площади в углу, чтобы в прихожей поместился встроенный шкаф. Также за счет ванной немного увеличили кухню — это позволило встроить туда холодильник (прим. редакции: это возможно, только если квартира находится на последнем этаже).
Новострой
Сегодня застройщики предлагают самые разные варианты планировочных решений, поэтому подобрать подходящий вариант не составит труда.
В современных жилых комплексах можно встретить:
- Стандартные двушки — квартиры с двумя изолированными комнатами и кухней.
- Евродвушки — формально это однокомнатное жилье площадью от 35 до 55 кв. м с небольшой отдельной спальней, просторной кухней-гостиной и одним санузлом.
Примеры планировок:
Достаточно стандартный план с параллельно расположенными комнатами и вытянутой кухней. Владельцы — пара с ребенком-школьником, поэтому в жилых помещениях разместили спальню и детскую, а от полноценной гостиной отказались в пользу диванной зоны на кухне. Изначально совмещенный санузел разделили, пространство холла немного увеличили за счет площади родительской спальни.
Эта квартира изначально была евродвушкой, но ее план доработали. Так, вход в кухню-гостиную сдвинули, чтобы сделать зону готовки более изолированной. А площадь спальни уменьшили, выделив за счет нее более просторный холл и полноценную гардеробную.
Еще один вариант евродвушки — достаточно стандартный, с маленькой приватной зоной и большой кухней-гостиной. В план от застройщика внесли незначительные изменения: перенесли вход в спальню и убрали перегородку между кухней и прихожей, чтобы поместился гарнитур.
Свободная планировка
Наконец, жилье изначально может не иметь внутренних стен и, соответственно, четко очерченных границ помещений, напоминая квартиру-студию.
В итоге можно выделить любое количество комнат (в том числе — две), соблюдая минимальный размер кухни и санузла, которые выдает БТИ. Также вы не ограничены в выборе формы помещений. В галерее — фото интерьеров таких двухкомнатных квартир.
Примеры планировок:
Это пример просторного жилья (площадь — 72 кв. м) удобной прямоугольной формы. Три окна позволили с комфортом разместить друг за другом кухню-гостиную, спальню и детскую для будущих детей, которую пока можно использовать как рабочее место. В разных концах сделали два санузла.
Хозяева этой квартиры будут сдавать ее в долгосрочную аренду, поэтому планировочное решение сделали универсальным, удобным для многих. Получилась классическая евродвушка с маленькой обособленной спальней, гардеробной, совмещенным санузлом и просторной кухней-гостиной.
Подходящие стили интерьера для двухкомнатной квартиры
Помимо планировочного решения, важно подобрать стиль, который подойдет для дизайна двухкомнатной квартиры (фото примеров — ниже). Вот лучшие варианты для двушки любой площади.
Современный
Стиль контемпорари отражает главные принципы современного дизайна: комфорт, лаконичность и функциональность. В нем нет строгих канонов и четких визуальных правил, поскольку главное отличие контемпорари-интерьеров от классических — полная свобода.
- Естественные спокойные цвета. Даже если в палитре есть яркие акценты, используются благородные природные оттенки.
- Экологичные материалы — натуральные или качественные имитации.
- Простота форм, функциональность на первом месте.
- Открытая планировка или просто ощущение просторного, визуально легкого пространства.
Скандинавский
Сканди не теряет своей популярности — особенно в малогабаритках. Именно его чаще всего используют в хрущевках и брежневках, чтобы преобразить пространство.
- Спокойная палитра на базе белого, серого и бежевого.
- Минимум мебели, вся она — с простым дизайном.
- Использование практичных и недорогих отделочных материалов.
- Много света и воздуха, легкие занавески — все, чтобы компенсировать северный климат, в котором мало солнца.
- Природные мотивы в декоре и текстиле.
Минимализм
Минимализм во многом схож с контемпорари, поскольку лежит в его основе. Но этот стиль может быть применен и в чистом виде. Многие боятся его аскетичности и считают неуютным, но это совершенно не так.
- Отсутствие лишних вещей и визуального шума.
- Функциональная, эргономичная мебель.
- Нейтральная цветовая гамма, акцент на фактуры.
- Ахроматические или монохромные интерьеры — не всегда, но часто.
- Разнообразные, детально продуманные системы хранения.
Неоклассика
Этот стиль — более «дружелюбная» версия строгой, требовательной к метражу и отделочным материалам классики в чистом виде.
Именно ее современную адаптацию чаще всего используют в городских квартирах. Неоклассика приемлет бюджетный ремонт, небольшую площадь и низкие потолки, поэтому подходит как для сталинки, так и для хрущевки или компактной евродвушки.
- В основе палитры — спокойные благородные оттенки. Более яркие вкрапления тоже выдержаны в природной гамме (гранатовый, терракотовый, изумрудный и т.д).
- Качественные материалы мебели и отделки. В приоритете керамогранит, дерево, металл, но допускается использование, например, МДФ.
- Украшение лепниной — в основном это молдинги и потолочные карнизы.
- Минимум узоров или полное их отсутствие.
- Хрусталь, стекло, драгоценные металлы в декоре.
Материал подготовила





Пока комментариев нет. Начните обсуждение!