Дизайн студии 25 кв. м: советы по оформлению и 5 проектов с планировками (67 фото)


Дизайн студии 25 кв. м с может быть разным. балконом есть важное преимущество — дополнительная площадь, которую можно использовать как место для хранения вещей или оборудовать тут более специфичное пространство, например, кабинет. Рассказываем, как оформить такую квартиру на примере трёх дизайнерских проектов.
Как оформить дизайн интерьера студии 25 кв. м
Особенности планировки
Дизайн студии с балконом
Примеры проектов
— Студия под аренду
— Квартира-трансформер
— Бюджетный ремонт
— С панорамными окнами
— Двухуровневый лофт
Особенности планировки студии 25 кв. м
Небольшие студии чаще всего встречаются в новостройках. И планировка у них почти всегда однотипная: это длинный узкий прямоугольник, который заканчивается окном или выходом на лоджию.
Что нужно
- Разделение на зоны — почти всегда главная идея открытой планировки. Здесь важно обозначить функционал каждого участка. Обычно в такой квартире предполагается прихожая, санузел, рабочая площадь кухни с гарнитуром, гостиная, совмещенная со столовой и спальня. Почти всегда именно в таком порядке.
- Дизайнеры зонируют пространство с помощью мебели (например, барной стойки или столовой группы), перегородок, разных отделочных материалов или цветов.
- Очень важно не захламлять пространство и не заставлять его мебелью полностью. Чтобы при этом сохранить функциональность, используют трансформеры, складные и подвесные модели. К таким можно отнести диван-кровать, шкаф-трансформер, который превращается в спальное место, мобильные барные стойки и так далее.
- Задействуйте вертикальную площадь там, где это возможно. На стенах, дверях, торцах шкафов можно повесить полочки и рейлинги, крючки для одежды или текстиля. В ванной хорошим решением станет зеркало-шкафчик, также можно поставить пенал над стиральной машиной.
- Увеличить количество функциональных зон поможет подоконник. Его можно продолжить до столешницы и получить обеденную группу, рабочее место или уголок для отдыха.
- Цветовое оформление не играет большой роли. Однако светлые стены и потолок способны визуально наполнить пространство «воздухом». В таких квартирах уютнее находиться, они кажутся просторнее.
- Независимо от выбранного стиля основу дизайна должен составлять минимализм. Руководствуйтесь функциональным подходом, выбирайте эргономичную мебель и акцентный, немногочисленный декор. Стилизация же может быть любой: от ретро и сканди до неоклассики и лофта.
Дизайн студии 25 кв. метров с балконом
Отметим сразу — речь идет об обособленных помещениях, так как присоединение лоджии к комнате сейчас запрещено.
В условиях малогабаритной студии оптимальным будет обустройство на балконе системы хранения. Насколько продуманной ни была бы квартира, шкафы не бывают лишними.
- Важный критерий выбора шкафа — его высота. Если есть возможность изготовить предмет на заказ, не экономьте. Сделанный по заданным параметрам, он точно окупит себя.
- Чем выше шкаф, тем лучше. Дизайнеры выбирают модели до самого потолка. Так вы максимально задействуете всё пространство.
- Если балкон небольшой, его можно визуально увеличить с помощью зеркальной вставки. Так ли она необходима — решать вам. Всё зависит от того, как много времени вы будете проводить на лоджии.
Система хранения может быть оборудована с двух сторон, если вы ощущаете недостаток места в основном пространстве. Или с одной, если хотите задействовать это место для работы. Обычно в основном помещении для письменного стола не хватает площади. На заметку: полки или подвесной шкафчик над ним также помогут рационально использовать место.
Если лоджия широкая, по периметру можно также установить барную стойку. Это даст возможность завтракать или пить кофе, любуясь видом из окна. Зону отдыха в виде кресел и журнального столика могут позволить себе немногие владельцы крошечных студий. Но если рабочее место не требуется, то напротив системы хранения (или даже вместо нее) можно оборудовать как раз такую зону.
Проекты от дизайнеров
Предлагаем проанализировать три профессиональных проекта интерьера студий площадью 25 кв. м с балконом.
Современный интерьер, который понравится всем
Эту студию дизайнер оформила для сдачи в аренду. Чтобы привлечь жильцов, важно было предусмотреть разные жизненные сценарии и сделать интерьер максимально комфортным.
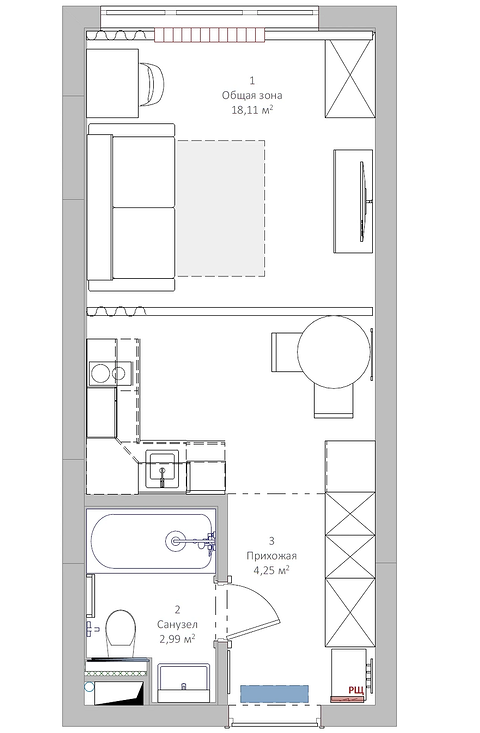
За основу взяли современный стиль и светлую пастельную гамму. Акцентный оранжевый цвет использован в деталях, также контраст создает темный текстиль. Планировка, как и в большинстве студий этого метража, не давала большого простора для творчества, однако дизайнер предложила нестандартное решение. Вдоль всей левой стены организовали цельную систему хранения со шкафом для холодильника (рядом с зоной готовки), местом для вещей и полноразмерным рабочим столом. Справа последовательно расположились кухня, обеденная группа и спальное место с кроватью.
В маленькой ванной установили душ и раковину с тумбой под ней. Хватило места для стиральной машины, над ней повесили небольшой хозяйственный шкафчик. В прихожей скомбинировали открытое и закрытое хранение. За счет того, что вся мебель белая, студия кажется просторной и не загроможденной.
Студия-трансформер в стиле бохо
Как и предыдущая студия, эта квартира — инвестпроект. Планировка и дизайн должны были быть универсальными, но при этом выгодно отличаться от конкурентов.
В основу лег современный стиль с элементами бохо и акцентом на природную тематику. Исходная планировка была типичной для таких студий: входная зона, санузел и комната. Ее разделили на кухню и жилую зону с помощью плотной шторы. Она обеспечивает приватность, при этом легче, чем перегородка, текстиль легко постирать, заменить или вообще убрать. Это удобно для тех, кто живет вдвоем, особенно если режим разный.
Для зоны готовки выбрали угловой гарнитур, напротив поставили круглый стол на двоих. Для жилой зоны дизайнер предложила функциональное решение — трансформер с диваном и полноценной кроватью. Это позволяет разделить комнату по принципу «день/ночь», превращая ее в спальню и гостиную в разное время суток. У окна выделено место для небольшого письменного стола, чтобы можно было работать или учиться удаленно.
Основное хранение собрано в большом шкафу в прихожей. В трехметровом санузле нашли место для ванны, также установили унитаз и раковину с небольшой тумбой под ней.
Бюджетный ремонт в светлых тонах
Владелица этой квартиры — девушка. При оформлении квартиры в основном использовали материалы из магазинов масс-маркет сегмента. И это доказывает, что для создания стильного дизайна не нужен огромный бюджет.
Планировка квартиры — типичная для такого жилья. Узкое пространство условно разделено на две зоны: кухню и спальню-гостиную. Зонирование организовано с помощью перегородок и штор, чтобы не перегружать небольшое помещение.
Благодаря сэкономленным за счет спальни квадратным метрам сюда удалось вписать рабочее место. Оно находится как раз напротив дивана-кровати. На балконе дизайнер оборудовала шкаф для вещей и небольшую зону отдыха. И это несмотря на довольно продуманную систему хранения в самой студии. Здесь несколько шкафов в прихожей, включая обувницу, и встроенная система в гостиной.
Студия с тремя панорамными окнами
Чаще всего планировка двадцатипятиметровой студии предполагает одно окно (или балкон) в торце, но иногда встречаются более сложные варианты, как в этом проекте.
Квартира представляет собой вытянутый прямоугольник, но по одной стороне идут три окна (два панорамных и одно в ванной комнате). Это, с одной стороны, дает много естественного света, с другой — ограничивает варианты расстановки мебели.
Чтобы подчеркнуть достоинства студии, дизайнер оформила интерьер в духе джапанди. Стены сделали светлыми, комнату не перегружали мебелью. Зону готовки и жилую не стали визуально разделять: даже фасады гарнитура и корпусной мебели в комнате одинаковые. Сама кухня тоже условно разделена на две части: одна расположена при входе, вторая — напротив дивана-кровати, как бы перетекая в комодную зону.
В прихожей поставили вместительный шкаф в том же оттенке дерева и с частично зеркальными фасадами. Это и удобно, и усиливает ощущение света и простора в маленькой студии. В системе хранения есть отделение для хозяйственного инвентаря. В санузле поставили ванну, окно закрыли жалюзи, чтобы обеспечить приватность. Остальную площадь заняли раковина, унитаз и стиральная машина.
Двухуровневый лофт
Высокие потолки — подарок для небольшой студии. Наличие второго яруса позволяет увеличить полезную площадь минимум на треть.
Эта квартира находится в апарт-комплексе, выполненном в стиле лофт. Эту концепцию поддержали и при оформлении интерьера, тем более высокие потолки идеально подходят для направления. Изначальная площадь была всего 18 квадратов, но достроили второй ярус. Там логичным образом разместилось спальное место.
Внизу — компактный кухонный гарнитур и мобильная обеденная группа с откидным столиком. Когда он не нужен, его можно опустить, освободив тем самым пространство. Подоконник продолжили до столешницы, организовав у окна рабочее места. Также здесь хватило места для дивана и большого шкафа. В нем сосредоточен основной объем хранения, а светлые фасады делают крупную мебель визуально легче.
В узкой прихожей повесили большое зеркало, от комодов и шкафов отказались из-за недостаточной ширины. Но дизайнер задействовала вертикальную площадь: на стены повесили две полочки для обуви и вешалку для верхней одежды. В санузле тоже получилось разместить все необходимое: под раковиной установили стиральную машину, душевую кабину для комфорта заменили ванной.
Пока комментариев нет. Начните обсуждение!