Как расставить мебель в комнате: полезные советы, 18 примеров планировок и 120 фото
Как расставить мебель так, чтобы потом не спотыкаться о кресло, не натыкаться на острые углы шкафов и тумбочек и, наконец, иметь беспрепятственный доступ к окну? Рассказываем общие правила, делимся идеями для маленького пространства, разбираем основные ошибки. И рассматриваем примеры готовых планировок для разных помещений.
Как расставить мебель в комнате
Идеи для разных комнат
— Гостиная
— Кухня
— Спальня
— Детская
Советы для маленькой квартиры
Распространенные ошибки
Идеи для разных комнат
Рассмотрим, как правильно расставить мебель в доме, на примере разных комнат. С учетом площади, формы помещения и его функционала.
Как оформить гостиную
Перед тем как покупать диваны, комоды и прочие масштабные вещи, подготовьте план их расстановки. Где лучше поставить диван? А где оформить библиотеку или детский уголок? Все это должно гармонично вписываться в метраж, не перекрывать проходы и располагаться вблизи розеток и выключателей, если речь идет об электрике. Ставьте, двигайте — создавайте идеальный интерьер на бумаге или в специальной программе. И только после этого отправляйтесь в магазин.
Главные функции
Гостиная — не только красивый декор, удобный диван и широкий телевизор. Это еще и масса нужных функций, которые вам поможет заложить правильная обстановка. Если у вас часто гостят друзья, узкая софа должна уступить место вместительному раскладному дивану. Если же вы обожаете книги, а ваш партнер — играть в приставку, задумайтесь о вместительном стеллаже или дополнительных полках, где будете хранить книги и диски. А, может быть, вам нужно удобное рабочее место.
И таких примеров можно привести очень много, суть не поменяется: гостиная — это не только интерьер, но и список функций. Какой он у вас — решать вам.
Трансформеры
Стол-книжка, диван-кровать, кровать-шкаф — трансформеры могут стать настоящей палочкой-выручалочкой для владельцев малометражек и для всех, кто хочет получить по-настоящему универсальный интерьер в типовом метраже.
Схемы оформления гостиной
Круговая — в центр ставится столик или пуфик, а вокруг него располагаются все остальные предметы. Идеально для большой семьи и веселых компаний.Симметричная — по центру вешается или ставится основной предмет (телевизор, ваза, аквариум с рыбками) и далее влево и вправо зеркально расходится мебель. Такая композиция характерна для классического стиля, хотя, конечно, им не ограничивается.Ассиметричная — предметы расставляются в произвольном порядке, не соотносясь по размеру, высоте и габаритам. Помимо креативности, это хороший способ визуально расширить небольшую комнату.
Ниже — несколько готовых схем расположения мебели в гостиной разных формы и площади.
Как расставить мебель на кухне
На кухне стоит отталкиваться от подключения техники и выводов канализации. В зависимости от расположения труб и розеток выстраивайте свой идеальный интерьер. Вся система хранения располагается, как правило, вокруг мойки, холодильника и варочной поверхности. Дальше необходимо разместить остальное.
Форма гарнитура
Если вам досталась классическая планировка, где холодильник в одном конце рабочей зоны, а мойка в другом, у вас есть несколько выходов. Первый — перенести холодильник. Его можно поменять местами, например, с плитой. В таком случае он станет ближе к мойке, но минус в том, что громоздкая конструкция отрежет одну часть поверхности от другой. Второй вариант более удобный, но трудоемкий: перенести мокрую зону. Это потребует согласования, но на выходе вы получите удобную функциональную комнату. Обеденная зона в такой планировке располагается, как правило, у противоположной стены, или, если позволяет метраж, по центру комнаты.
Если ваша кухня оформлена по принципу равностороннего треугольника и холодильник, плита и мойка расположены как бы вокруг вас на удобном расстоянии — считайте, вам повезло. Это одна из наиболее удобных планировок. Обеденная часть тогда будет располагаться минимум через 60 см (а лучше 100) от рабочей.
Нестандартные решения
К примеру, пусть столешница для рабочей поверхности будет уже, чем на фото классического интерьера кухни. Это сэкономит место, а технику под нее вы найдете и так, многообразие выбора сегодня это позволяет. Но лучше подстраховаться — чтобы слишком не заузить полотно, заранее присмотрите варианты техники с подходящими габаритами: компактные раковины и посудомойки, узкие стиральные машины и небольшие варочные поверхности. Ну а напольные и подвесные шкафы выберите по размерам при заказе гарнитура. Кстати, узкая столешница — отличный вариант для тех, кто мечтает о П-образной рабочей зоне, но не располагает достаточным количеством квадратных метров.
Оборудовать полноценную столовую зону даже в крошечном метраже можно, если спроектировать верхние системы хранения. Перенос хранения наверх позволит освободить немного места внизу — как раз для пары лишних стульев или более широкого стола. Запланируйте пару полок или небольших ящичков вокруг плиты: там будет удобно хранить утварь и посуду, а еще это хороший способ отделить остальное пространство от горячей плиты, брызг и грязи во время готовки. И как следствие — сэкономить время на дополнительной уборке.
Открытое и закрытое хранение
Сплошная цепь громоздких шкафов слишком сильно сужает пространство. Но все же не стоит вычеркивать выдвижные ящики из своей кухни, просто дополните их парой стеллажей, полками или сервантом для посуды — и кухня стала более воздушной.
Закрытые шкафы хороши для хранения посуды, мелкой бытовой техники, продуктовых запасов. Чтобы организовать хранение, используйте специальные разделители и органайзеры для мелочей и столовых приборов. Если у вас осталось несколько свободных метров или образовалось незаполненное место в рабочей зоне, можно поставить туда стеллаж-карго. Верхний уровень рабочего пространства создан для того, чтобы хранить в нем красивые тарелки, нарядные чашки и другие красивые вещи. Чтобы вся эта прелесть радовала глаз, имеет смысл повесить наверху открытые полки или стеклянную витрину вместо глухих шкафчиков.
Столовая зона
Даже в самой крохотной кухне нужен стол или хотя бы его аналог. Единственное исключение — если вы дома только спите. Во всех остальных случаях, отказавшись от обеденной зоны, вы обязательно будете испытывать неудобство. Если места мало, расширьте подоконник и поставьте туда один или два раскладных стула, спланируйте откидной столик у стены. А если пространство позволяет уместить на кухне барную стойку — воспользуйтесь этим шансом, ведь это не только столовая зона, но еще рабочая поверхность!
Ниже — примеры готовых планировок с расстановкой мебели.
Как расставить мебель в спальне
Под спальню, как правило, отводится не самая большая комната в доме. А иногда это и вовсе небольшой закуток площадью несколько квадратных метров или часть гостиной. Вот что важно учесть при оформлении.
Спальное место
Самый главный предмет обстановки в спальне это, конечно, кровать. Ее лучше всего придвинуть к стене изголовьем. Психологи утверждают, что это рождает чувство защищенности у жильцов, сон становится комфортнее. Если комната предназначена для одного человека, небольшую кровать лучше всего ставить у стены не только изголовьем но еще боковиной — так уютнее. Аналогично можно поступить, если речь идет о спальном месте для двух молодых людей, которым не составит труда слезть с него. Классический вариант — кровать по центру комнаты, обрамленная туалетными столиками и бра. Удобно, но не подойдет для узкой комнаты. Проход между краем спального места и стеной напротив должен быть не менее 70 сантиметров.
- Прежде всего у окна, сразу по нескольким причинам. Первая: из окна часто дует, особенно в холодное время года. Сквозняк может стать причиной частых затяжных простуд. Вторая причина: как правило под оконным проемом располагается батарея, а значит, воздух в сезон отопления будет сухой и излишне горячий. Что тоже к удобству баллов не прибавит. Но если ваша планировка такова, что предусматривает в спальне два окна, то между ними у стены вполне можно расположить кровать. При условии качественных непродуваемых стеклопакетов, разумеется.
- Напротив входа. Спать у двери некомфортно с чисто психологической точки зрения. Вдобавок ко всему, когда в соседнем помещении горит свет и дверь в спальню резко открывается, отдыхающий может проснуться.
- Рядом с зеркалом. По версии психологов, это некомфортное место, пагубно влияет на сон, как и дверь. Лучше, чтобы при пробуждении на глаза попадался приятный декор, например, картина или фото. Хотите поэкспериментировать? Попробуйте расположить место для сна по диагонали. Освободившуюся нишу в углу можно занять стеллажом или тумбочкой.
Системы хранения
Чем еще обычно оборудуют спальню? Прикроватными тумбами, иногда туалетным столиком, комодом, шкафом. Если расположение мелких предметов можно менять хоть каждый день, то шкаф не так-то легко будет подвинуть. Поэтому место для него, как и для кровати, важно четко продумать заранее.
Идеальным вариантом станет зона напротив или сбоку от окна у противоположной стены. Почему нельзя размещать рядом с проемом? В этом случае одежда не будет достаточно освещена и подобрать наряд станет сложнее.
Вот какую расстановку можно сделать в спальне.
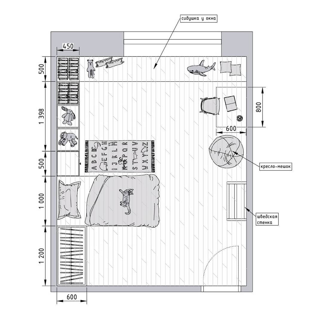
Меблировка детской
В детской комнате, даже если она скромной площади, особенно важно продумать разделение на зоны.
У ребенка должны быть отдельные места для отдыха, учебы, занятий творчеством и подвижных игр. У окна чаще всего располагают письменный стол, поскольку для письма, рисования, лепки и т.п. нужно хорошее освещение, в первую очередь — естественное. Далее, если позволяет место, здесь же можно обустроить уголок для отдыха и чтения, иногда — поставить кровать. Также ее удобно поставить справа или слева от входа.
Если комната для двоих или троих детей, кровати обычно ставят по бокам от двери в комнате. Для узкого помещения подойдет вариант последовательного расположения: изголовье к изножью. А если места мало, но хочется создать для ребенка уединенный уголок, отличным вариантом будет кровать-чердак со спальным местом наверху.
Вот несколько примеров готовых схем расстановки мебели в детской.
Как расставить мебель в маленькой квартире
Предлагаем правила, которые помогут визуально сэкономить и даже увеличить пространство студии или типовой малогабаритки.
Используйте мебель вместо стен и перегородок
Барной стойке, дивану с высокой спинкой, стеллажу, комоду, вполне по силам перегораживать пространство, отделяя одну функциональную зону от другой: например, кухню-столовую от гостиной или гостиную от спальни. Подобная расстановка в маленькой квартире помогает создать ощущение легкости и простора.
Не оставляйте мертвые зоны
При обустройстве маленьких квартир крайне важно рационально использовать каждый сантиметр, в том числе и так называемые мертвые зоны: простенки между стеной и окном, пространство вокруг межкомнатных проемов, место под окном. Их можно использовать для размещения стеллажей или книжных полок, оформить дополнительное сидение и т.д.
Сделайте подиум
Почему бы не поднять спальное место на низкий или даже высокий подиум? Внутренним объёмом конструкции можно распорядиться по-разному. К примеру, ложе допустимо дополнить подъёмным механизмом. Тогда под ним будет скрываться место для хранения постельного белья и одеял-подушек.
Или вот другой вариант — оснастить подиум выкатными ящиками. Похожий, требующий меньшего приложения сил, средств и времени вариант — двухъярусная кровать. Вместо нижнего спального места несложно организовать мини-гостиную или рабочий уголок.
Используйте многофункциональные предметы
Небольшое пространство должно работать в любой жизненной ситуации, а потому для его обустройства следует подбирать «гнездующиеся», штабелируемые или складывающие в стопку предметы. Допустим, столики-матрешки или складные, а потому не занимающие в сложенном виде места стулья.
Хорошо впишутся в интерьер малогабаритки и многофункциональные предметы, скажем, пуфы, столики, скамейки. А также напольные зеркала, внутри которых предусмотрены емкости для хранения всякой всячины.
Добавьте зеркала и стекло
Чем больше в маленькой квартире воздуха и света, тем просторнее она выглядит. Прозрачные, сделанные из стекла или термопластика предметы и модели с зеркальными поверхностями будут либо «растворятся» в комнате, либо визуально увеличивать её малый метраж за счёт отражающего эффекта.
Кстати, зеркало способно «удвоить» объем, главное — подобрать для него оптимальное место положения: к примеру, напротив окна или у прохода в соседнее помещение.
Заказывайте мебель по индивидуальным меркам
В однушке на счету каждый сантиметр, и если не удалось найти предмет требуемых габаритов, то оптимальный вариант — его изготовление на заказ. Созданию цельного, «незамусоренного» неподходящими вещами пространства способствуют встроенные предметы заподлицо или в имеющиеся и специально выстроенные ниши.
Очень важно, чтобы шкафы или другие элементы композиции точно вписывались в них по глубине — даже незначительно выступающие за линию стены фасады смотрятся неряшливо и мешают передвижению.
Выбирайте мебель, которая займет неиспользуемое место
Таковые всегда имеются под потолком и на линии пола. Потому, вместо шкафов и тумбочек на ножках лучше выбрать напольные модели, приобрести раскладные диваны с ящиками для постельного белья. Пригодится и антресоль — встроенная или комбинированная с отдельно стоящим шкафом. Навесные модули есть смысл «продублировать» вторым рядом секций до потолка — туда можно отправить редко используемые или, скажем, сезонные вещи.
Чтобы квартира не казалась тесной, подбирайте предметы обстановки, которые будет смотреться как продолжение стен, не контрастируя с ними по цвету и отделке. Не экономьте на вещах-трансформерах: низкая цена — показатель некачественности материалов и ненадёжности механизмов трансформации.
Как не надо: чек-лист ошибок при расстановке
При планировании комнаты есть несколько неудачных решений, которые затем влияют и на удобство, и на дизайн. Запоминайте и не повторяйте эти ошибки!
Количество мебели не соответствует размеру помещения . Необходимо соблюдать баланс: предметов должно быть столько, чтобы, с одной стороны, покрывались все возложенные на комнату функции, а с другой — пользоваться этими функциями было комфортно.Комод размещен «лицом» к кровати . В маленькой комнате это не самое эргономичное решение. Гораздо лучше с точки зрения экономии пространства располагать комод по одной стене с кроватью. Это позволит отказаться от прикроватной тумбы. А в некоторых случаях и выгадать место для дополнительных функциональных зон.В центре комнаты пусто . Мебель, расставленная вдоль стен, и пустое место по центру комнаты — решение, оправданное разве что в детской комнате: игровые активности ребенка порой требуют немалого пространства. В остальных же комнатах пустота в середине помещения будет смотреться странно и неуютно. Если же вам остро необходима свободная середина комнаты, остановитесь на внушительном потолочном светильнике: он восстановит баланс в интерьере.Отсутствуют акценты . Если все предметы примерно одного размера и близкой цветовой гаммы, обстановка автоматически становится скучной и «плоской». Расставьте акценты: пусть один или несколько элементов выделяются по размеру, стилю или цвету.Не продумано зонирование . Грубейшая ошибка, которая превратит вашу обстановку в набор разрозненной мебели. Обязательно продумывайте зонирование: не только расположением мебели, но и светом, цветом отделки, полуперегородками, стеллажами и ширмами или разными уровнями пола и потолка.Стоят лишние предметы мебели . Обустраивая жилье, исходите из собственного образа жизни: если вы живете вдвоем и редко принимаете гостей, обеденный стол на шесть посадочных мест вам точно ни к чему. Практически не готовите дома? Откажитесь от громоздкого кухонного гарнитура в пользу более легкого и компактного варианта. Не загромождайте пространство бесконечными журнальными столиками, комодами и консолями, если в них нет никакой практической пользы.
Материал подготовила
-
Юлиягод назадА вот вопрос — часто встречается вариант со шкафами, обрамляющими окно. Куда при этом деваются стояки отопления? -
татьяна6 лет назадхорошие примеры . с картинками. а если в комнате проживают 3 человека из разных поколений ?
-
Галина7 лет назадУ меня вся площадь комнаты в общежитии 22 квадрата. В эти квадраты входят: 1) прихожая +кухня, 2) душевая+ туалет, 3) зал, 4) спальня.
- «
- 1
- 2
- »



