Перепланировка хрущевки: идеи для всех типов квартир и готовые планы


В 1957 году началось массовое строительство типовых пятиэтажек с небольшими квартирами — сейчас это один из самых популярных видов вторичного жилья. У него есть ряд недостатков, за которые этот тип домов начали критиковать еще в советское время: крошечные санузлы, маленькие кухни, неудобное расположение комнат и плохая шумоизоляция. Но превратить такую квартиру в удобное жилье вполне возможно. В этой статье собрали полезные идеи и варианты перепланировки 2-х и 3-х комнатных хрущевок, а также типовых однушек.
Все о перепланировке хрущевок
Что можно и нельзя делать
Особенности квартир
— Однокомнатная
— Двухкомнатная
— Трехкомнатная
Полезные советы
Что можно и нельзя делать
Согласования с жилищными службами требуют любые работы, которые меняют конфигурацию помещений. Те, которые не влияют на конструкцию самого дома, узаконить легко. Некоторые действия (перенос коммуникаций, объединение квартир на разных этажах и т.д.) согласовать будет сложнее. Конкретные требования к планировочным решениям зависят от серии дома и региональных законов, но есть общие правила, которые работают в большинстве случаев.
Что запрещено:
- Сносить несущие стены или увеличивать нагрузку на них.
- Переносить «мокрые» зоны так, чтобы они оказались над жилыми комнатами.
- Объединять комнату и балкон.
- Объединять с жилым помещением кухню с газом.
- Увеличивать площадь коридора или санузла за счет жилой комнаты.
- Убирать сантехнический шкаф и перекрывать доступ к коммуникациям. То же самое с газовой колонкой.
- Уменьшать каналы вентиляции.
- Присоединять часть подвала или чердака.
Что разрешено:
- Объединять санузел, в том числе с присоединением части прихожей.
- Разделять санузел.
- Объединять жилые комнаты, в том числе с негазифицированной кухней.
- Устанавливать перегородки, в том числе до потолка.
Незаконное изменение плана грозит не только штрафом, но и проблемами с ипотекой и последующей продажей жилья, поэтому любые вмешательства нужно обязательно узаконить.
Особенности квартир
Хрущевские квартиры — типовые, поэтому планы у них стандартные. Рассмотрим самые популярные варианты: кому подходят, какие есть плюсы и минусы, что можно улучшить.
Однокомнатная
Площадь однушки в зависимости от серии дома — от 31 до 33 квадратов. Кухня — от 5,8 до 6,2 кв. м, жилая зона — от 16 до 20. Санузел совмещенный, окна выходят на одну сторону. В целом это неплохой вариант, поскольку единственная комната достаточно просторная, ее можно разбить на несколько функциональных зон. К тому же внутри нет несущих стен, поэтому можно менять конфигурацию помещений. А если кухня не газифицирована, то простор для творчества еще больше.
Есть два варианта перепланировки 1-комнатной хрущевки:
- Превратить ее в студию — подойдет для тех, кто живет один или вдвоем.
- Сделать двушку, разделив большую комнату на две, — подойдет для пар и семей, которым нужно уединение.
Пример
Автор этого проекта сделала перепланировку однокомнатной хрущевки для молодой пары, которая много путешествует. Было несколько принципиальных запросов: минимум переносов стен, место для хранения сувениров и полноценное спальное место.
Передвинули только одну стену — так, что в итоге образовалась уютная ниша для кровати. В итоге не нужно никаких перегородок и простенков, чтобы обособить в общем пространстве спальное место. Зону готовки и совмещенный санузел не трогали, а со стороны прихожей организовали вместительный шкаф для хранения одежды, чтобы не занимать место в спальне-гостиной.
Двухкомнатная
В целом комнаты располагаются так же, как в однушке: прихожая, слева ванная и за ней кухня, все остальное пространство занимает жилая площадь. По метражу получается:
- Общая площадь — 30-46 кв. м.
- Кухня — 5,8-6,2 кв. м.
- Комнаты — 9-10 и 16-19 кв м.
Расположение жилых зон бывает двух типов: они полностью изолированы или идут друг за другом. Во втором случае одна комната получается проходной — попасть в другую можно только через нее. Это самый неудобный тип планировочного решения.
Опять же благодаря отсутствию несущих конструкций внутри квартиры можно работать с пространством как угодно (в рамках разрешенных действий): объединять зоны, менять их площадь, дробить на более мелкие. При грамотной перепланировке из 2-комнатной смежной хрущевки можно сделать трешку.
Пример 1
Это пример так называемого «трамвая»: прямоугольные помещения расположены смежно. Метраж — 43,9 квадратных метров. Зону готовки объединили с жилой комнатой, расширив ее и санузел за счет коридора. А вот от большей комнаты (17 квадратов) отделили часть, организовав в центре квартиры удобную гардеробную. В итоге пропорции стали более гармоничными. В одном помещении сделали спальню-гостиную, во втором — детскую для двух детей. На кухне хватило места для обеденной группы, а в санузле — для ванны и стиральной машинки.
Важно: такая планировка возможна только для негазифицированной квартиры.
Пример 2
А вот образец более удобного изначального плана. Однако и здесь есть минусы: обе комнаты — длинные узкие «пеналы». Чтобы сделать более просторное и гармоничное открытое пространство, было решено снести перегородки и объединить всю жилую площадь вместе с типовой шестиметровой зоной готовки, а также спроектировать гардеробную.
Кухня в этом доме газифицирована, но изменения согласовали, поскольку от остального пространства ее отделили раздвижными перегородками, которые отвечают всем правилам пожарной безопасности. В общем пространстве разместили:
- Столовую группу.
- Диванную зону.
- Спальню за небольшим простенком.
- Рабочее место у окна.
Пример 3
Еще один вариант капитальной перепланировки двухкомнатной хрущевки. Необходимо было создать комфортное пространство для родителей и дочери-студентки. Поскольку ребенок уже взрослый, девушке была необходима своя спальня. План квартиры изменили кардинально: объединили кухню и гостиную, снесли перегородки, оставив только один простенок, который обозначал второе жилое помещение.
Благодаря угловому расположению окна здесь выходят на две стороны, поэтому удалось оформить для дочки небольшую изолированную комнату с удобным рабочим местом и своим шкафом. Спальня родителей практически такая же по размеру, а вся остальная жилая площадь отдана под просторную гостиную. Санузел оставили совмещенным, для зоны готовки выбрали угловой гарнитур.
Важно: такая планировка возможна только для негазифицированной квартиры.
Перепланировка 3-комнатной хрущевки
Площадь типовых трешек — от 55 до 58 квадратных метров. Кухни стандартно небольшие, от 5,8 кв.м, жилые помещения — 8-9, 10-12 и 16-19 кв. м соответственно. Есть два вида квартир: ровный прямоугольник, где все комнаты расположены друг за другом, и угловой вариант, где одно из жилых пространств на плане находится внизу.
Пример 1
Это пример «правильной» трешки, которая подойдет для большой семьи. В дальнем углу находилась небольшая кладовая (всего 1,6 кв. м) — стена не несущая, поэтому ее просто демонтировали и увеличили за счет этого одну из комнат. Также сделали более длинный коридор, чтобы из него можно было попасть во все помещения, и они не становились проходными. Перепланировку кухни в этой хрущевке не делали.
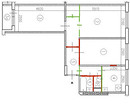
Пример 2
Здесь мы видим второй вариант хрущевской трешки. Хозяйка жилья поступила так же, как в предыдущем примере: протянула коридор до самого дальнего помещения, чтобы в него можно было попасть напрямую. Также было решено оставить санузел объединенным, но увеличить его за счет площади прихожей. Вход в кухню сделали из жилой зоны.
Полезные советы
Самые проблемные зоны в таких квартирах — маленькие зона готовки и ванная. В двушках и трешках — смежные проходные комнаты.
- Независимо от планировочных изменений, при ремонте в первую очередь нужно будет организовать хорошую тепло- и звукоизоляцию, выровнять стены и уровень пола, проверить исправность всех инженерных коммуникаций.
- Если вам не нужно все пространство прихожей, увеличьте за ее счет ванную или кухню. Также можно сделать кладовую или небольшую гардеробную, чтобы не ставить громоздкий шкаф.
- Хороший вариант — объединить кухню и гостиную. Важно: если у вас газовая плита, сделать это получится только при наличии раздвижных перегородок, которые одобрит инспекция. Можно выбрать прозрачные стеклянные экраны, чтобы даже в закрытом виде они не перекрывали свет и не создавали ощущение тесного пространства.
- В большинстве случаев раздельный санузел имеет смысл совместить: ванная станет чуть больше, появятся разные варианты расстановки сантехники и мебели. А если захватить часть прихожей, то вы точно найдете место для всего необходимого, включая стиральную машину.
- Если жилье находится на углу дома, скорее всего, у вас будут окна на две стороны. Это настоящая находка для однушек и двушек, где нужно сделать хотя бы два изолированных пространства. Так не придется довольствоваться спальней в нише без окна.
- Несмотря на три жилые комнаты, площадь советских трешек не такая большая. На 55 квадратах вполне можно организовать просторную студию или жилье по типу евродвушки с маленькой спальней и большой кухней-гостиной.
Пока комментариев нет. Начните обсуждение!