Кухня-ниша: что это, правила обустройства и примеры планировок (48 фото)
Кухня-ниша — что это? Ее представляют по-разному, хотя на самом деле это вполне конкретный, закрепленный в законодательстве тип помещения. В статье расскажем, как оно выглядит, какие есть требования к обустройству и где можно разместить. Покажем реальные фото и примеры проектов с планировками, которые вас вдохновят.
Все о кухне-нише в интерьере
Понятие и особенности
Требования
Плюсы и минусы
Варианты размещения
— Кухня-гостиная
— Коридор
— Кладовая
Наполнение
Что значит кухня-ниша
Кухня-ниша — не просто красивое название дизайнерского приема, а регламентированное законом понятие.
Соответственно, обеденной зоны это помещение не предполагает. Она либо находится в смежной гостиной, либо в другой, изолированной комнате (например, когда гарнитур размещают в коридоре или кладовой). Форма ниши может быть любой: квадратная или вытянутая. Главное — соблюдать требования к минимальной площади, о которых расскажем подробнее дальше.
Из фото кухни-ниши в новостройках понятно, что это небольшая обособленная зона, которая чаще всего либо дополняет общее пространство квартиры, либо является проходной. Такое решение подходит для маленьких квартир.
Требования к кухне-нише
Требования к такому формату кухонь перечислены все в том же СП 54.13330.2022.
- Минимальная площадь кухни-ниши — 5 кв. м. В это число не входит само помещение, в котором она находится.
- Перенос мокрой зоны допускается только в случае, если этажом ниже не находятся жилые комнаты, а выше — санузел.
- Нельзя обустраивать такую зону готовки с газовой плитой. Допускаются только электрические модели или варочные панели. Если дом газифицирован, придется отказаться от газа.
- Обязательно наличие вентиляции. Причем вентиляционный канал должен быть протянут из помещения, изначально отведенного в плане под кухню.
- Запрещено размещать кухню-нишу на месте санузлов и на балконе.
В законодательстве есть и «поблажки». Например, в отличие от обычной кухни та, что находится в нише, может не иметь естественного освещения. Это дает больше свободы на уровне планировки: можно разместить зону готовки в коридоре или кладовой, если это не нарушает остальных норм.
Плюсы и минусы
Кухня-ниша — решение скорее нестандартное и подойдет не всем. У него есть свои преимущества и недостатки, которые нужно учитывать.
Плюсы
Экономия места . Зона готовки занимает минимальную площадь, иногда ее можно вынести за пределы основной комнаты — все это позволяет выкроить драгоценные квадратные метры и сантиметры под другие нужды.Эргономика . В таком кухонном пространстве есть все необходимое для того, чтобы было удобно готовить: мойка, плита, вытяжка. Их дополняют холодильником, иногда — духовым шкафом, СВЧ и/или посудомойкой. В итоге все находится рядом, не нужно делать лишних движений.Эстетика . Не всем нравится, когда зона готовки находится на виду. Но в студии и кухне-гостиной это почти всегда так. Нишевое же расположение делает эту часть комнаты менее заметной, можно дополнительно закрыть ее декоративными частичными перегородками. Отличное решение для современных минималистичных интерьеров.Рациональный подход . Сейчас все больше людей предпочитают доставку или едят вне дома. Поэтому далеко не всем нужна вместительная кухня с большим двухъярусным гарнитуром, полноразмерной плитой, объемным холодильником. То же самое касается квартир в аренду или небольших студий и однушек, где живут 1-2 человека. Оформление ниши позволяет более рационально распределить пространство.
Минусы
Согласование перепланировки . Если вы переносите мокрую зону в коридор или подсобное помещение, изменения придется согласовывать. А это довольно трудоемко и долго.Проведение коммуникаций . Важно, чтобы в нише была достаточная вентиляция, а все водопроводные коммуникации отвечали требованиям (например, нужно соблюсти определенный угол наклона труб). Порой это не так просто сделать и приходится прибегать к нетривиальным решениям.Звуки и запахи . Если вы оформляете зону готовки в гостиной-кухне, то нужно быть готовыми постоянно ощущать соответствующие запахи и звуки. Не всем это понравится.
Варианты размещения
С учетом законодательных ограничений мест, где можно разместить гарнитур, остается не так много. Рассмотрим основные с примерами планировок кухни-ниши.
Кухня-гостиная
Это самый популярный и удобный с точки зрения эргономики вариант, часто используется в студиях и евродвушках. Зона готовки здесь является частью общего помещения. По функционалу получается классическая кухня-гостиная с тремя основными блоками: гарнитуром с рабочим треугольником, обеденной группой и местом для отдыха. В стандартной ситуации они располагаются в зависимости от формы помещения: например, могут идти последовательно друг за другом, распределяться по углам, в две линии и т.п. В случае же с кухней-нишей мы получаем более обособленную зону готовки, которая при этом остается в едином общем пространстве.
Такое расположение удобно еще и с точки зрения бытовой логистики. Столовая группа располагается рядом, не нужно далеко ходить с блюдами. Однако нужно позаботиться о хорошей вентиляции и установить мощную вытяжку, иначе запахи еды будут не только распространяться по всей комнате, но еще и оседать на шторах, коврах, обивке мягкой мебели.
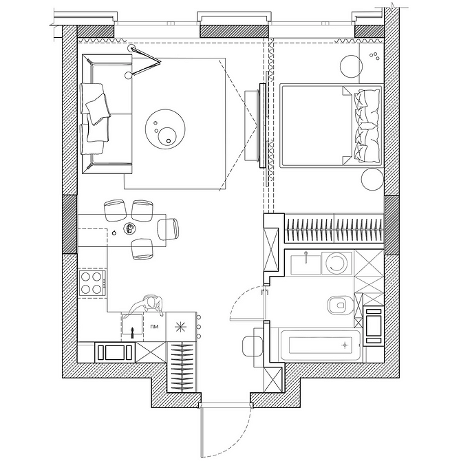
Пример планировки
Эта небольшая квартира сдавалась без перегородок, поэтому была возможность сформировать зоны удобным образом, соблюдая план БТИ. Гарнитур с необходимой бытовой техникой разместили там, где и предполагалась кухонная зона, заключив в нишу. Ее дополнительно украсили прозрачной перегородкой, которая не препятствует проникновению света из окна. Чтобы уместить все необходимое, выбрали Г-образный гарнитур, также с одной стороны есть встроенный шкаф для техники.
Коридор
В малогабаритных квартирах часто приходится искать нестандартные решения, которые позволяют более рационально использовать имеющуюся площадь. Одно из таких — перенос кухонной зоны в коридор. Поскольку кухня-ниша не обязана иметь естественное освещение, это одна из разрешенных опций. Однако есть другие требования, которые нужно соблюсти, чтобы такая перепланировка была законной.
- Под вашим коридором нет жилой комнаты. В этом плане проще всего жителям первого этажа или владельцам апартаментов.
- Сверху не должен находиться соседский санузел.
- Площадь должна соответствовать указанному в СП минимуму.
- Если планируется снос внутренних перегородок, это могут быть только ненесущие конструкции.
Часто такое решение становится спасением для мини-студий, где на площади единственной комнаты просто нереально разместить все необходимое. В итоге вынос гарнитура и техники в коридор освобождает место для других нужных зон: например, можно поставить более удобный раскладной диван или полноценную кровать, оборудовать рабочее место, встроить шкаф для вещей.
При оборудовании кухни-ниши в коридоре важно учесть два момента. Первый —
Второй —
Пример планировки
Изначально это была стандартная двухкомнатная квартира с отдельной кухней, двумя жилыми помещениями и длинным коридором. Хозяйке требовалась просторная общая зона, где было бы удобно принимать гостей, отдыхать (в том числе активно), устраивать обеды и ужины для компании. Поэтому пространство решили перераспределить.
Так, кухню вынесли в коридор и оформили ее в нише. Перегородку между ним и гостиной снесли, чтобы увеличить площадь помещения. Окно находится напротив гарнитура, поэтому днем в эту часть комнаты беспрепятственно попадает естественный свет. Чтобы усилить освещенность, для отделки пола и фартука выбрали глянцевый керамогранит под мрамор — он дает небольшое отражение.
Кладовая или гардеробная
Во многих квартирах есть небольшие подсобные помещения: кладовые, гардеробные и т.п. Поскольку они не являются жилыми, на их месте при соответствии всем планировочным нормам также можно обустроить зону готовки. Правила те же: соблюдение минимальной площади, отсутствие жилых комнат внизу и мокрых зон — наверху.
Пример планировки
В этой однокомнатной квартире изначально была предусмотрена вместительная гардеробная. Но — вместе с прихожей — неоправданно большая для одного человека (хозяйка оформляла жилье для себя). Чтобы использовать пространство более рационально, было решено сделать кухню-нишу на месте гардеробной. Поскольку это не жилое помещение, переносить туда мокрую зону можно. Убрали перегородку между комнатой и старой кухней, получив более просторное помещение. Зонирующим элементом между гарнитуром и диванной группой стала барная стойка, которая здесь заменяет обеденный стол.
Наполнение
Уже само определение в СП дает понять, что мини-кухня, оформленная в нише, предполагает минимум мебели и техники.
«Главный герой» здесь — гарнитур. Его размер и конфигурация зависят от площади ниши, ее формы и образа жизни жильцов.
- Если дома мало готовят или вообще почти этого не делают, будет достаточно и
линейного гарнитура , возможно, даже без верхнего ряда шкафов. Угловой — универсальный вариант, который позволяет выделить достаточно места для хранения и встроить несколько единиц техники. Иногда с внешней стороны его «закрывают» барной стойкой (например, если нужно заменить обычный обеденный стол).Параллельный — тоже достаточно вместительный, но такая расстановка возможна только при подходящей ширине. Это может быть квадратная ниша или не слишком узкий проходной коридор.- В просторной нише можно обустроить и полноценный
П-образный гарнитур . Подойдет для тех, кто много и часто готовит.
С точки зрения эргономики лучше всего вместить всю технику в зону готовки. Но не всегда это возможно. В этом случае нужно либо от чего-то отказываться (к примеру, от посудомоечной машины или СВЧ-печи), либо найти для крупных приборов другое место. Так, часто в случае нехватки квадратных метров за пределы кухни выносят холодильник.



Пока комментариев нет. Начните обсуждение!