Спальное место в однушке — не проблема: 6 примеров дизайнерских квартир


1 Выдвижная кровать
В этой квартире для временного проживания дизайнеры Алексей Иванов и Павел Герасимов не стали строить глухих перегородок и нашли для организации спального места нетипичное решение — это выдвижной модуль из подиума. Таким образом, в дневное время кровати не видно, пространство комнаты можно использовать для приема гостей, а ступени подиума — как посадочное место для просмотра фильмов на проекторе (напротив дивана и выдвижной кровати оборудован домашний кинотеатр).
2 Спальня за перегородкой с фальшокном
В этом проекте дизайнер Юлия Тельнова демонтировала не несущие перегородки и спроектировала удобное пространство, в котором спальня расположилась будто бы в нише. Ее отделяет от объединенной кухни-гостиной перегородка из пеноблоков, но со встроенным стеклом. Такое решение позволяет проникать естественному свету в изолированную мини-комнату, а для организации спальни в углу без окна это имеет большое значение.
3 Спальня в стеклянном кубе
В этом проекте дизайнеров Виктории Золиной и Анны Чеверевой спальню изолировали в стеклянном кубе, который построен из подвижных перегородок. Материал — прочный триплекс optiwhite, максимально пропускающий свет, но чтобы предусмотреть возможность полной изоляции, перегородки дополнены закрывающимися шторами. Перепланировка однокомнатной квартиры стала возможной за счет того, что перегородки внутри — не несущие.
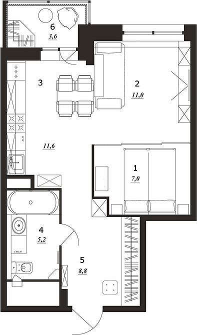
4 Спальня в отдельной комнате
Казалось бы, что в этом особенного — отвести единственную комнату под спальню, а кухню оставить на своем месте? В этом проекте однокомнатной квартиры дизайнерам удалось найти место даже для гостиной зоны с диваном и телевизором. То есть по функционалу получилась двушка. Такое преображение стало возможным за счет того, что кухню увеличили, присоединив к ней подсобное помещение и лоджию. Последнюю утеплили, а подоконный блок с радиаторам не сносили — он служит и как разграничитель пространства, и как дополнительная рабочая поверхность.
5 Изолированная комната
Благодаря тому, что все перегородки в этой 40-метровой однушке были не несущими, дизайнеру Наталии Андриановой удалось сделать грамотную перепланировку и выделить и зону гостиной, и изолированную спальню, пусть и небольшого размера. Дом, в котором расположена квартира, стоит на Дербенёвской набережной в Москве, поэтому общественные зоны развернуты именно в сторону реки. А спальня, наоборот, более камерная. Конечно, выделить отдельную комнату позволило и то, что в изначальной планировке достаточное количество окон. Изолированная спальня не обделена естественным светом.
6 Спальня за раздвижной перегородкой
Еще один проект однушки, в которой нашлось место изолированной спальне — эта квартира от дизайнера Ирины Чуфистовой. Комната для сна заняла всего 7 квадратных метров, но за счет раздвижной перегородки с полупрозрачными вставками из стекла пространство не выглядит темным и тесным. Остальной объем отвели под просторную кухню-гостиную.
Пока комментариев нет. Начните обсуждение!