Перепланировка кухни: что можно и нельзя узаконить, 5 примеров законных проектов
Мечтаете о большой кухне с современной бытовой техникой? Считаете, что гостиная в доме слишком большая и ее часть можно отдать под кухонное оборудование? К сожалению, жилищная инспекция может с вами не согласиться. Перемещение перегородок без согласования может стать причиной огромных штрафов, конфликтов с соседями и управляющей компанией. А в худшем случае все дойдет до суда и выселения. Рассказываем, какую перепланировку кухни в квартире можно узаконить без проблем и что категорически нельзя делать по закону.
Все о переустройстве кухни
Термины и правила
Как расширить площадь
— Перенести в другую комнату
— Отключить газ
Алгоритм согласования изменений
Термины и общие правила: какие изменения нужно согласовывать?
Законы о согласовании перепланировок в кухнях и спальнях многим кажутся необоснованно строгими. Но их цель — защитить жизнь и имущество жильцов дома. Узаконивать и согласовывать нужно все, что повышает риски обрушения стен, отравления газом, затопления горячей водой.
На что необходимо получать разрешения
- На любые манипуляции с газовыми плитами, колонками и трубами — наращивать, срезать, передвигать даже вдоль стены их можно только с разрешения газовой службы. Она одобряет проект и самостоятельно проводит работы.
- Снос или создание проемов в несущих стенах. На плане БТИ они выглядят как широкие перегородки. В хрущевках несущими обычно являются только стены по периметру. В более новых домах ими могут быть и внутренние перегородки. Чтобы снести их, придется обращаться за положительным заключением к автору проекта дома, оплатить оценку состояния и прочности стен, проект их переустройства. После этого подать заявление в региональную жилищную инспекцию. Доверять работы можно только строительной компании, являющейся членом СРО. Затраты на законное создание проема в несущей конструкции в Москве на конец 2023 года составляют от 150 000 рублей.
- Перенос раковины — к другой стене, на отдельно стоящий остров, в коридор или гостиную. Если вы на 0,1-0,3 м сдвинете мойку по той же стене, вряд ли это станет проблемой. В остальных случаях на перемещение коммуникаций нужно получать разрешение в жилинспекции.
- Манипуляции с вентканалами. Закладывать их строго запрещено. За такое полагается большой штраф. Но можно узаконить перепланировку кухни с переносом в коридор и вынести в него вентканал. Такие работы разрешены, но требуют предварительного согласования проекта.
Важный термин — жилая комната. В любой квартире она должна быть как минимум одна, с окном, площадью от 8 квадратных метров. Правила размещения кухни во многом зависят от планировки жилых комнат у соседей под вами. Об этом расскажем чуть ниже.
Правила выше распространяются на квартиры, находящиеся в многоквартирном доме. Владельцы апартаментов должны соблюдать нормы, установленные для перепланировки нежилых помещений. Такие требования предъявляют в Москве, в регионах к апартаментам могут относиться по-другому. Так что проверяйте местное законодательство перед началом ремонта.
В частном доме можно свободно переносить водопроводные стояки и делать проемы в любых стенах. Только вы несете ответственность за собственную безопасность. Если не планируете спать в гостиной, можно присоединить ее к зоне готовки.
В квартире, которую застройщик сдает со свободной планировкой, нельзя сделать мокрую зону где угодно. Выводы от водопровода и канализации, место установки плиты обычно указаны на плане. Перенос коммуникаций нужно согласовать по тем же правилам, что и в квартире с готовыми перегородками. Но можно сразу договориться с соседями сверху и снизу о том, что вы вместе поменяете планировку.
Меняем интерьер и соблюдаем закон
У собственников типовых квартир не так много способов расширить площадь кухни. Рассказываем о самых популярных и оцениваем их с точки зрения строительных норм.
Перепланировка квартиры с переносом кухни в комнату
Типовая однушка в новостройке — это небольшая кухня и просторная комната. Последняя, по замыслу архитекторов, должна играть роль спальни, гостиной. Кажется, было бы удобнее перенести плиту и мойку в большое помещение, а кровать поставить в маленьком. Но в большинстве случаев так сделать не получится.
Зона готовки на планах БТИ считается «мокрой». Закон запрещает самовольно сдвигать мокрые зоны с трубами водоснабжения и канализации. Они не должны находиться над жилыми комнатами. В противном случае при прорыве трубы у вас вода польется на кровати соседей снизу.
Какие есть варианты?
- Вы живете на первом этаже и под вами только подвал или магазины и офисы. Такой перенос тоже нужно согласовывать и узаконивать. Но права соседей снизу вы не нарушаете, поэтому можете получить необходимые документы.
- Все соседи под вами, начиная с первого этажа, поменяли местами мокрые зоны и жилые комнаты. Вам останется лишь повторить их планировку. Следите за тем, чтобы ваша новая зона готовки не заползла на территорию их гостиной или спальни. Это строго запрещено.
- Вы выносите плиту и мокрые точки — раковину, посудомойку — в помещение, считающееся нежилым. К таким относятся коридоры, холлы, прихожие, гардеробные, кладовки. Перед переносом убедитесь, что сосед снизу не присоединил коридор к гостиной и не сделал жилым. Если под вами несколько этажей, достаточно проверить только ближайший. За остальные отвечают жильцы внизу.
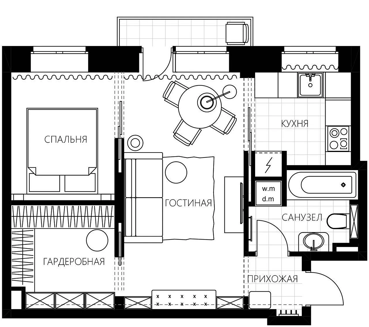
Посмотрите, как дизайнер Ирина Гугуева разместила П-образный кухонный гарнитур в бывшем коридоре. А на месте кухни сделала просторную гостиную (по документам комната может быть только нежилой, например, кабинетом).
- Если плита газовая, ее нельзя «вынести» из помещения. О правилах переустройства в таких случаях рассказываем чуть ниже.
- Придется тянуть от стояка трубы с горячей и холодной водой, канализационные. Пол под ними нужно тщательно гидроизолировать. Не помешают и датчики утечки воды.
- Закон не запрещает переносить коммуникации. Но у вас уйдет много денег на то, чтобы сделать это аккуратно и безопасно для своего и чужого имущества. Подумайте, стоят ли затевать капитальный ремонт ради нескольких квадратных метров.
- Без вентиляции новую мокрую зону с плитой оставлять нельзя. Подключать к вентиляционным стоякам в санузле тоже запрещено. Придется тянуть вентканалы под потолком, ставить вентиляторы, заставляющие кухонные запахи быстрее уходить из помещения. Его высота уменьшится, шум может раздражать вас и соседей.
- Если вы планируете создать в коридоре кухню-нишу, ее площадь должна быть не меньше 5 квадратных метров. Меньшую не согласуют. Окно в ней не обязательно.
Если перепланировка кухни с переносом в комнату невозможна, не расстраивайтесь.
Что сделать можно?
1. В законе нет строгих требований к размещению холодильника, шкафов с посудой, микроволновки и другой «сухой» бытовой техники. Все, что легко взять и вынести без ремонта, можно ставить хоть в спальне. Расположение обеденного стола тоже не регламентируется. Некоторые владельцы малогабаритных квартир переносят холодильник и морозильную камеру в коридор, а обеденный стол ставят в гостиной. Это нарушает правила рабочего треугольника и ухудшает эргономику. Но в помещении для готовки станет просторнее.
В своем проекте Илона Ореховская и Каролина Михель из студии-дизайна VizDiz. Они отрезали часть бывшей спальни и со стороны кухни разместили там колонну с духовкой и микроволновкой, шкафы для хранения. Проект согласовали, потому что размещать шкафы и «сухую» технику в спальне никто не запрещает. Спорный момент с духовкой. Иногда проверяющие приравнивают ее к плите и считают, что ее место только на кухне.
2. Ненесущую перегородку между кухней с электрической плитой и гостиной можно сдвинуть вглубь последней. Это не будет считаться расширением на жилую зону соседей снизу. Но нужно соблюдать несколько правил:
- Сохранить как минимум 75% от исходной площади гостиной.
- Оставить в ней естественное освещение.
- Не трогать плиту и мойку.
Фактически, вы добавляете к зоне для готовки столовую. Жилищная инспекция Москвы такие проекты согласовывает. В регионах проверяющие могут быть строже.
Дизайнер Евгения Аборина в квартире для молодой пары объединила кухню с электрической плитой и гостиную. Мокрые зоны и плиту не переносили, перегородка между комнатами была ненесущей.
Перепланировка кухни с газовой плитой
Перепланировка кухни в хрущевке или другой квартире с газовым оборудованием — одна из самых сложных задач для дизайнера. Тоненькая перегородка между гостиной и местом готовки так и просит снести ее. На освободившемся месте можно поставить большой обеденный стол. А хрущевские 5-6 метров целиком занять гарнитуром и бытовой техникой.
На фото перепланировок кухни в домах 50-60-х годов постройки можно увидеть много примеров такого объединения. Но на самом деле его не согласуют. Объединять жилую комнату с помещением, где есть газовые трубы, категорически запрещено. Если собственник не хочет мириться с крохотной зоной готовки, у него есть два варианта.
Что сделать можно?
1. Вызвать газовщиков и отключить подачу газа в квартиру после предварительного согласования. Сама по себе процедура недорогая и несложная. Отказать могут только в одном случае: если при отключении газа нарушится его подача в другие квартиры. Но газовую плиту, а в хрущевках — еще и колонку, придется чем-то заменить. Для подключения электроплит и мощных электрических водонагревателей в старом доме придется менять всю проводку, запрашивать дополнительные мощности у региональных электросетей. А они могут и отказать.
Дизайнер Анна Андреева предложила отказаться от газа при капитальном ремонте квартиры в доме Наркомсвязи, построенном в 30-х. Это позволило присоединить к кухне бывшую спальню прислуги, организовать просторную столовую зону и поставить вместительный гарнитур.
2. Снести стену и поставить вместо нее широкие двойные двери или раздвигающиеся перегородки. Такая перепланировка кухни в кухню-гостиную очень популярна у современных дизайнеров. За счет широкого проема владельцы получают просторное открытое пространство, в котором есть место и для обеденной зоны, и для гарнитура. Двери можно закрыть, тем самым изолировать помещение с газом. Но нужно тщательно выбирать материал и конструкцию перегородок. Правила безопасности требуют, чтобы между жилой и газифицированной комнатой была герметичная дверь с притвором. Бумажные или ажурные резные ширмы, двери-гармошки с большими щелями между элементами никто не узаконит. Стеклянные полотна, по направляющим сдвигающиеся в полость в стене, легче проходят согласование. Но для установки придется перекладывать и соседние стены. Еще один вариант — распашные стеклянные или деревянные двери. К ним у газовщиков редко возникают вопросы.
Дизайнер Екатерина Паршинцева выбрала для переустройства хрущевки раздвижные стеклянные перегородки. Они отлично вписались в интерьер во французском духе, о котором мечтала заказчица. Крошечную 5-метровую комнату объединили с гостиной, не нарушая правила. А холодильник вынесли в бывший коридор. Это позволило разместить всю необходимую технику.
Некоторые собственники идут на хитрость ради перепланировки кухни с объединением с залом. Они рисуют проект с перегородками, ставят их перед визитом комиссии, которая должна подписать акт о согласовании. А потом снимают и живут в открытом помещении. Чем это чревато?
- Раз в год региональные газовые службы проверяют состояние плит и колонок. Если в ходе проверки мастер не увидит перегородку, может вынести предупреждение или даже отключить газ. Придется потратить большую сумму на повторную установку дверей и подключение плиты.
- Перегородка или герметичная дверь должна защищать жильцов от отравления при утечке газа. Чтобы снизить риски, в совмещенной кухне-гостиной у плиты можно поставить датчик-газоанализатор. Но от штрафов со стороны проверяющих это все равно не спасет.
Порядок согласования работ
В каждом регионе действуют свои регламенты и правила. Любое переустройство начинайте с обращения в жилищную инспекцию. Если в вашем городе ее нет, ищите отдел администрации, который ведает вопросами жилья. В крупных городах можно получить консультацию в МФЦ. Вам расскажут, какие документы надо собрать. В перечень могут войти:
- справка от банка — если жилье в ипотеке;
- разрешение от газовщиков — если вы переносите или завариваете газовые трубы;
- разрешение от департамента культуры или аналогичного учреждения — если ваш дом признан объектом культурного наследия или историческим памятником;
- заключение от автора проекта МКД или утвержденной экспертной организации — при манипуляциях с несущими стенами;
- разрешение от управляющей компании — на перенос водопроводных стояков;
- техпаспорт из БТИ — иногда его выдают прямо в МФЦ;
- новый план с внесенными изменениями — его создание лучше доверить проектной организации или опытному архитектору, знающему нормы и правила;
- свидетельство о праве собственности на квартиру или иной документ, подтверждающий владение ею.
Разрешенные перепланировки можно согласовать после проведения, задним числом. Но лучше обратиться в госорганы до ремонта. Так вас точно не заставят его переделывать и платить большой штраф.


Пока комментариев нет. Начните обсуждение!