Такой студии вы еще не видели! Уместили все на 29 кв. м и создали яркий интерьер (фото до и после)
Заказчики и задачи
Эта студия в Санкт-Петербурге предназначена для сдачи в долгосрочную аренду. Будущих арендаторов видели как парня или девушку (возможно, молодую семейную пару), которые активно работают, проводят достаточно времени вне дома, ценят комфорт, предпочитают компактные и функциональные решения. Дизайнер Анна Евдокимова решила использовать цвета, ассоциирующиеся у нее с Северной столицей, а также сформировала удобное зонирование и множество систем хранения.
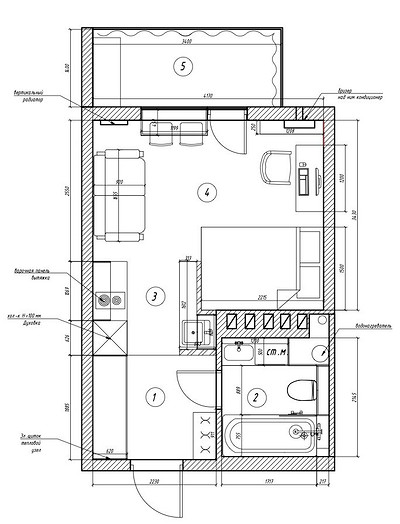
Планировка
В студии изначально была изолирована только ванная комната. Дизайнер предложила перенести кухню в проход между прихожей и комнатой, за перегородкой в своеобразной нише разместить кровать, а оставшееся пространство использовать для организации гостиной и рабочей зоны.
Отделка
Так как квартира предназначена для аренды, в отделке дизайнер сделала ставку на долговечность материалов и, конечно, на декоративности. С помощью терракотовой краски создали главную акцентную деталь — колор-блок, выделяющий кухню вместе с нишей кровати. Фоновым цветом стал нежный бежевый, а для прихожей выбрали прохладный голубой.
«Палитра собрана из оттенков, характерных для архитектуры и видов за окном: мягкий серо-голубой напоминает небо, теплый терракотовый перекликается с кирпичными фасадами, серо-бежевый отражает тон старого камня, а графитовый добавляет глубины и современности. Эти петербургские цвета создают целостный образ квартиры и придают ей характер, сохраняя атмосферу города внутри компактного пространства», — рассказывает Анна.
На полу в комнате уложили кварцвинил под светлое дерево. Для прихожей выбрали керамогранит под терраццо. Его же использовали на полу и стенах в ванной комнате в сочетании с голубой краской.
Мебель и системы хранения
«Как профессиональный мебельщик, а потом уже дизайнер интерьеров, я всегда выстраиваю проект, исходя из функциональности мебели и удобства ее использования», — отмечает Анна.
И системы хранения в проекте действительно продуманы по максимуму. В прихожей — шкаф с зеркальными фасадами и разделением на секции: для верхней одежды, для повседневной легкой одежды (платьев, рубашек, брюк), полки и ящики для мелочей и аксессуаров.
Кухню дизайнер называет центром помещения, вокруг нее распределяется все зонирование. Функционально гарнитур разделили на две части, расположенные параллельно. Рабочая поверхность с мойкой размещена рядом с ванной комнатой (через стенку от спальни). В шкафу под мойкой разместили маленькую посудомоечную машину и водоочиститель.
«Один из вопросов функциональности маленькой кухни — куда разместить ПММ. Если некуда, то есть выход — спрятать под раковину. Но для этого нужно предусмотреть ширину модуля минимум 620 мм. Тогда поместится любая компактная ПММ. А если есть возможность немного увеличить глубину, то за ней расположится и водоочиститель, как в этом проекте», — советует дизайнер. Над мойкой — шкаф с сушилкой и полками, рядом — узкая столешница для кофеварки, чайника и полки внизу.
Напротив — основная рабочая поверхность с верхними и нижними шкафами, колонна со встроенным холодильником и духовым шкафом с функцией СВЧ. Розетки с фартука перенесены на торец кухни. «Стена оказалась капитальной из монолита, и перенос розеток был непрост. Появилось решение — не дробить визуально плитку и облегчить разводку, также розетками удобно пользоваться теперь и с дивана», — говорит автор проекта.
Для спальной зоны выбрали кровать с подъемным механизмом, под которой можно хранить постельное белье, обувь. В рабочей зоне — стеллаж с полками для книг, рабочий стол изначально был у хозяев, его перекрасили специальной мебельной краской, чтобы вписать в интерьер.
На балконе поставили шкаф для гладильной доски и хозяйственного хранения. В ванной комнате сумели вписать ванну, тумбу под раковину, стиральную машину, а также шкаф в углу, где разместили узкий водонагреватель, предусмотрели место для ведра и швабры, а также сделали полки для хранения.
Освещение
Даже в маленьком пространстве продумали разные сценарии освещения. На потолке — точечные светильники, разделенные на зоны: прихожая, кухня, гостиная и спальня. Включать и выключать свет можно отдельно. Над барной стойкой — подвес, а над диваном и кроватью — лаконичные бра. В санузле предусмотрели скрытые подсветки для создания расслабляющей атмосферы: над ванной, а также подсветка зеркала.






Пока комментариев нет. Начните обсуждение!