Квартира для сына-студента: функциональный и уютный интерьер студии 21 кв. м с функциями двушки
Заказчик и задачи
Эта квартира предназначена для молодого парня, студента. К дизайнеру Галине Овчинниковой обратились его родители. В маленькой студии требовалось создать все необходимые зоны для комфортной жизни: прихожая, санузел, кухня-гостиная с телевизором, рабочая зона и спальня.
Планировка
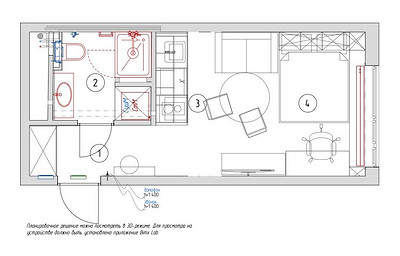
Планировку студии не меняли, так как изначальное расположение зон не предполагало вариаций: менять местами кухню и ванную нельзя, их оставили, в комнате расположили диван с телевизионной зоной напротив и кровать-шкаф у окна; напротив кровати — рабочее место.
Отделка
Для оформления стен и потолка выбрали одинаковую светлую краску. На пол по всей площади уложили диагональной «елочкой» кварцвинил под дерево. Акцентом в комнате стали объемные панели, напоминающие подушки. Их покрасили в приглушенный зеленый цвет. Панели на стене и потолке стали еще и элементом зонирования: кухню, прихожую и ванную они отделяют от «жилой» зоны с гостиной и спальней.
Тот же зеленый оттенок использовали в оформлении санузла: покрасили стены, потолок, в том же оттенке сделана мебель — инсталляция, шкаф над стиральной и сушильной машинами. Напротив двери в санузле поклеена декоративная фреска, которая отвлекает от утилитарной функции помещения. Стены и поддон душевой оформлены черной мозаикой.
Мебель и системы хранения
В прихожей установили шкаф для верхней одежды и обуви с антресольным хранением. Рядом с дверью — подвесная консоль с выдвижным ящиком для разных мелочей.
Кухня компактная, но соответствует размеру помещения и назначению — все-таки здесь будет жить не семья, а один молодой человек. Мини-холодильник встроен в нижний шкаф рядом с духовкой. В верхних шкафах до потолка предусмотрено достаточно хранения.
В комнате для повседневных вещей также стоит комод. В конструкции шкафа-кровати предусмотрены полки для хранения. Трансформер позволяет легко опустить спальное место и так же его поднять. Настенные панели за кроватью создают уют, а торец шкафчиков отделан той же тканью, что и панели.
Напротив кровати расположили рабочий стол и ряд открытых полок. При желании над столом можно повесить дополнительные полки для хранения. Радиаторы закрыли декоративной панелью и сделали широкий подоконник, куда можно присесть.
В ванной комнате предусмотрено хранение в виде тумбы под раковиной, шкафа над колонной из стиральной и сушильной машины, а также над инсталляцией унитаза.
Освещение
В потолок встроены гипсовые светильники. Для дополнительного освещения в комнате предусмотрены настенное бра у кровати, накладные споты над рабочим столом, скрытая подсветка полок стеллажа у окна. В прихожей — минималистичный подвес над консолью. В ванной комнате — подсветка зеркала.






Пока комментариев нет. Начните обсуждение!