Реализованный проект квартиры-студии площадью 29 м2
Спальня, гостиная зона, рабочее место, функциональная кухня, много хранения — в этой маленькой студии оформили действительно впечатляющий интерьер. Читать далее...
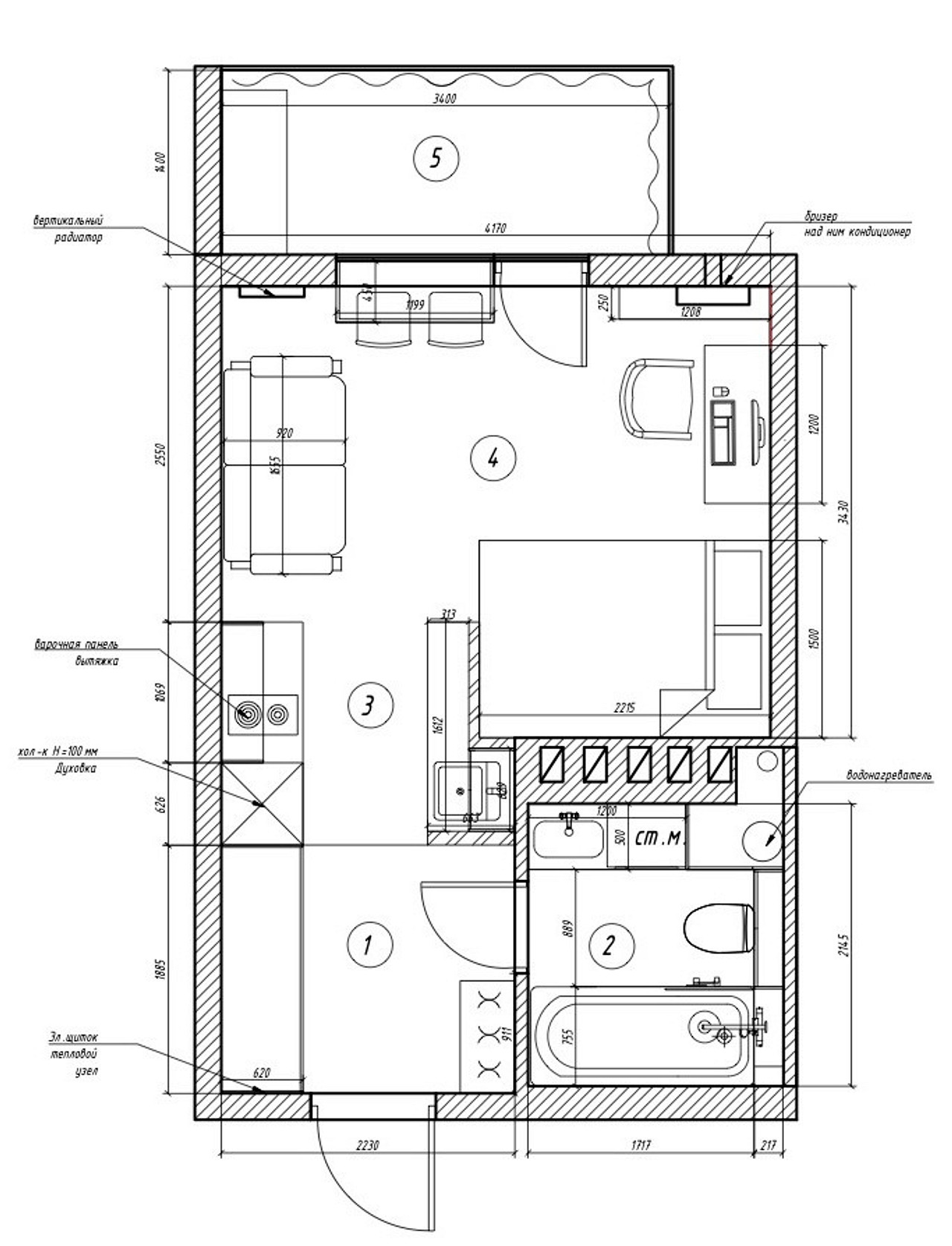
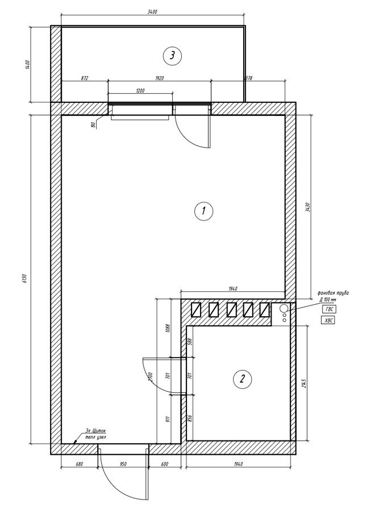
План
| Комната |
Было |
Стало |
| Общая площадь |
29 м2
|
29 м2
|
| Количество комнат |
1 |
1 |
| Весь объект |
– |
29 м2 |
| Кухня |
– |
3,4 м2 |
| Комната |
– |
12,6 м2 |
| Балкон |
– |
4,7 м2 |
| Санузел |
– |
3,8 м2 |
| Прихожая |
– |
4,5 м2 |
Редакция предупреждает, что в соответствии с Жилищным кодексом РФ требуется согласование проводимых переустройств и перепланировок.
Материалы и цвета
Весь объект
- Стены: краска Swiss Lake
- Освещение: точечные светильники Novotech
- Электрика: Legrand, Systeme Electric
Кухня
- Пол: кварцвиниловый ламинат Fine Floor
- Фартук: Equipe
- Мебель: сделана на заказ
Комната
- Пол: кварцвиниловый ламинат Fine Floor
- Плинтусы и молдинги: Orac Decor
- Мебель: кровать «Твой Комфорт» (на заказ), диван divan.ru, рабочий стол и кресло La Redoute, встраиваемая сделана на заказ, столешницы Buro Interior
- Шторы: «Лемана Про»
- Освещение: подвес и бра Maytoni, бра Novotech
- Радиаторы: Loten
Санузел
- Пол: керамогранит Arcana Ceramica
- Сантехника: ванна Kаldewei, инсталляция, смеситель и душевая система Grohe, гигиенический душ, шторка для ванны и столешница с раковиной над стиральной машиной AM.PM
Цвета
-
Стены и потолок
-
Мебель
-
Мебель
-
Стены
Авторы
Если это ваш проект, пожалуйста, свяжитесь с нами по адресу
ivd@burda.ru, указав в письме ссылку на проект.
Пока комментариев нет. Начните обсуждение!