Мебель-трансформер и яркие идеи: уютные и продуманные 39 кв. м для молодой семьи
Заказчик и задачи
Квартира предназначается молодой семье. Заказчица — мама взрослого сына, который и будет жить тут с женой, пригласила дизайнера Ксению Муравьеву оформить интерьер. Запросы были нестандартные: сделать интерьер маленькой квартиры так, чтобы были незаметны небольшие габариты, продумать функционал комнаты с комфортным спальным местом, но без кровати, которая займет много полезной площади. Также заказчице хотелось привнести в интерьер средиземноморские акценты. В запросах они с молодой семьей полностью совпали.
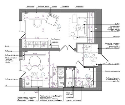
Перепланировка
Изначальная планировка называется евродвушкой: кухня-гостиная, маленькая спальня, санузел, прихожая. Но молодой семье не нужна была большая кухня, поэтому решили поменять планировку. Квартира расположена на втором этаже над нежилым помещением, и это позволило на месте спальни сделать кухню, а в кухне-гостиной расположить гостиную-спальню. Также убрали дверной проем на кухню из прихожей, вход в комнату сделали из кухни через двойные распашные двери с фрамугой.
Отделка
Для отделки стен выбрали прочную декоративную штукатурку и покрыли ее лаком для большей практичности. В гостиной сделали декоративное панно на стене из той же штукатурки. На пол уложили инженерную доску, выбрали способ укладки «елочкой», что добавило пространству классического шарма.
В прихожей сделали акцентную стену (покрасили стену с входной дверью терракотовой краской) и выложили на полу «ковер» из плитки — узоры из маленьких шестиугольников с «рамками» из квадратной плитки.
Еще один акцент в отделке сделан на кухне — на стену с окном и дверью на террасу уложили квадратную плитку терракотового цвета, такого же, как краска в прихожей.
В ванной комнате использовали керамогранит — квадратные белые плитки сочетаются с голубыми из той же коллекции в душевой. На полу — черно-белые шестиугольники, выложенные в узоры. Стены, куда не попадает вода, покрасили терракотовой краской.
Мебель и системы хранения
В квартире нет отдельной гардеробной, поэтому хранение продумывали с помощью шкафов. В прихожей расположен встроенный шкаф с акцентными синими фасадами. Он предназначен не только для одежды и обуви, но и для хозяйственного хранения: одну секцию заняла колонна из стиральной и сушильной машин.
В комнате расположили платяной шкаф. Кроме функционального назначения он выглядит еще и как декоративный элемент. «Шкаф в гостиной решили дополнить шторками, чтобы он смотрелся в комнате как легкий буфет, а не вынужденная мера хранения», — отмечает Ксения.
Спальное место организовали с помощью трансформера: кровать-диван-шкаф. В сложенном виде это диван с панелью и узкими шкафчиками по бокам. Панель можно откинуть — и получается комфортное спальное место размером с полноценную кровать.
Кухонный гарнитур разделили на две функциональные зоны: основная рабочая поверхность с варочной панелью и мойкой с одной стороны; секции со встроенным холодильником, духовым шкафом и СВЧ, а также выдвижными ящиками и антресольными шкафами — с другой.
В обеденной зоне сделали диванчик с местом для хранения, а плетеные кресла из «уличной» коллекции добавили средиземноморского шарма.
В ванной комнате, кроме тумбы под раковину, сделали шкафчик над инсталляцией унитаза. В душевой — полки в нише.
Освещение
Сценарии света продуманы по классическому принципу: общий потолочный свет в виде линейных встроенных светильников в гостиной и точечных — в прихожей, кухне и ванной комнате. Дополнительные сценарии света реализованы по-разному: подвес рядом с креслом, торшер у рабочего стола, который можно перемещать ближе к кровати-дивану, люстра с абажуром из макраме на кухне, бра у гарнитура, тонкий линейный подвес рядом с зеркалом в ванной комнате и скрытые подсветки: потолка, штор, кухни.








Пока комментариев нет. Начните обсуждение!