Для дочки дизайнера: необычная студия 25 кв. м с семейным антиквариатом в бывшем общежитии (фото до и после)
Заказчик и задачи
Эта студия расположена в доме 1982 года, который строился как ведомственное общежитие, а после был переведен в жилой фонд. Квартира принадлежит молодой девушке, работающей дистанционно. Мама девушки — дизайнер Ирина Комиссарова — спроектировала интерьер для своей дочери.
Целью было создать выразительный интерьер с сочетанием старого и нового — семейного и приобретенного винтажа с современной мебелью. Молодой хозяйке требовалось рабочее место, хотелось изолировать кухню от спальной зоны, также было необходимо поставить мини-диван на кухне, чтобы была дополнительная зона отдыха. В дальнейшем, когда девушка решит переехать, студию планируют сдавать в аренду.
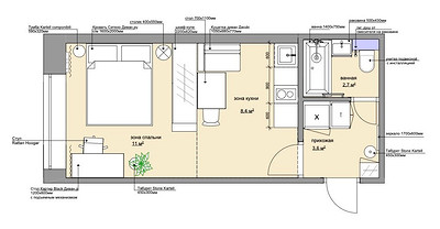
Планировка
В планировке ничего не меняли — ванная комната, прихожая, комната — все осталось на своих местах. Квартира расположена на втором этаже над общественным помещением, поэтому можно было сделать кухню в комнате. В качестве разделителя спальни и кухни решили использовать высокий шкаф и стеллаж.
Отделка
Для отделки стен использовали светло-бежевые обои с легкой фактурой. В прихожей их решили покрасить в глубокий зеленый цвет, чтобы объемная мебель «сливалась» со стенами. Такой же цвет выбрали для одной из стен кухни. «Использовали оптический прием, когда после насыщенного тона в прихожей комната воспринимается более светлой и просторной. Зона кухни в темных тонах смотрится более камерной и приглушает яркие фасады. Зона спальни и рабочее место — максимально светлые и нейтральные», — объясняет дизайнер.
Для пола выбрали ламинат в укладке «елочка», чтобы добавить интерьеру классического настроения и связать отделку с винтажными вещами и семейным антиквариатом.
На пол в прихожей уложен керамогранит для практичности. Керамогранит использовали и в ванной комнате: выбрали серый под бетон, персиковый фактурный керамогранит для зоны ванны и раковины, стену рядом с унитазом покрасили в глубокий зеленый цвет.
Мебель и системы хранения
Корпусную мебель изготовили на заказ. В прихожей разместили два шкафа — один у входа, он предназначен для верхней одежды и обуви, второй — рядом с дверью в ванную комнату, это хозяйственный шкаф над стиральной машиной. Рядом с ним же стоит пенал с холодильником. Холодильник намеренно вынесли в прихожую, чтобы его шум не мешал.
Кухонный гарнитур — яркий акцент в интерьере. Фасады нижних шкафов выбраны в глубоком зеленом цвете, под которые подобрана краска для акцентной стены, а верхние — в красном оттенке, он перекликается с цветом абажура в прихожей. Функционально кухня оформлена в минималистичном ключе — предусмотрена варочная поверхность, мойка. От духового шкафа отказались.
Обеденный стол «собрали» самостоятельно из винтажного подстолья, найденного на сайте объявлений, и дубовой столешницы, заказанной у мебельщиков. Стул у обеденного стола — семейный антиквариат от фабрики «Тонет» — это остатки приданого прапрабабушки девушки. Как и хотела молодая хозяйка, у стола поставили маленький диванчик.
Со стороны кровати — шкаф-купе полноценной глубины 60 см и длиной 2,2 метра. В торце установили высокий стеллаж, где хозяйка может хранить старинные книги, альбомы, различный декор.
Для спальни выбрали полноценную двуспальную кровать со спальным местом 160 см, от одинаковых тумбочек отказались. С одной стороны — узнаваемый столик с ящиками марки Kartell красного цвета, с другой — черный столик.
Рабочий стол подобрали трансформируемый, с подъемным механизмом, как и хотела хозяйка квартиры.
Освещение
Для разных зон продумали разные сценарии освещения. Так, в спальне и на кухне применили треки с разными типами светильников — линейные, круглые плафоны. Предусмотрели дополнительные сценарии света — подвес над обеденным столом и подсветка кухни, в прихожей и ванной комнате — зеркала с подсветкой, над кроватью разместили декоративные бра, подобранные под винтажный барельеф, а над столиком — бра на гибкой ножке. На рабочем столе стоит настольная лампа, а на подоконнике — винтажный светильник, произведенный в ГДР.








Пока комментариев нет. Начните обсуждение!