Как задействовать коридор? 5 функциональных решений от дизайнеров
1 Расширить санузел или ванную
Ванную комнату и туалет можно расширять на площадь коридора, так как это нежилая зона. Конечно, такие работы всегда требуют предварительного проекта и согласования. Необходимо убедиться, что у соседей снизу не расположена в коридоре кухня или жилая комната.
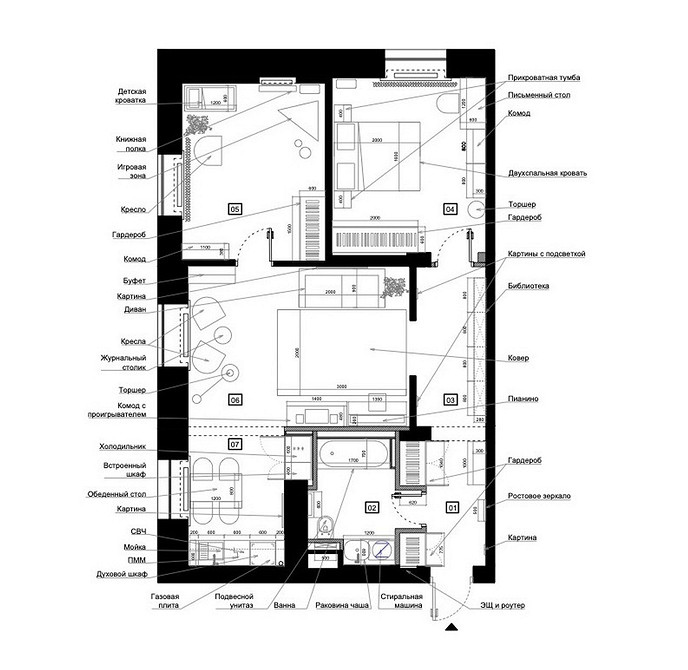
В этой квартире в доме 1900 года в Санкт-Петербурге изначально был один очень маленький туалет, куда не помещались ни ванна, ни душевая. Именно коридор позволил архитектору Наталие Шмидт создать новое пространство с современным комфортом и сделать два полноценных санузла. Первый — с ванной, а второй — с душевой. Дизайн помещений тоже отличается. Ванную комнату назвали «женской». В отделке использовали красивый керамогранит под мрамор, золотистые акценты. Душевую — «мужской», там более лаконичный и брутальный интерьер с керамогранитом под бетон и мозаикой.
2 Разместить кухню в коридоре
Эта идея тоже подлежит согласованию и возможна, если у соседей снизу в коридоре нет официально жилой комнаты, а у соседей сверху — ванной или туалета на площади коридора. Площадь кухни-ниши должна быть не меньше 5 кв. м и не менее 6 м, если это кухонная зона в кухне-столовой.
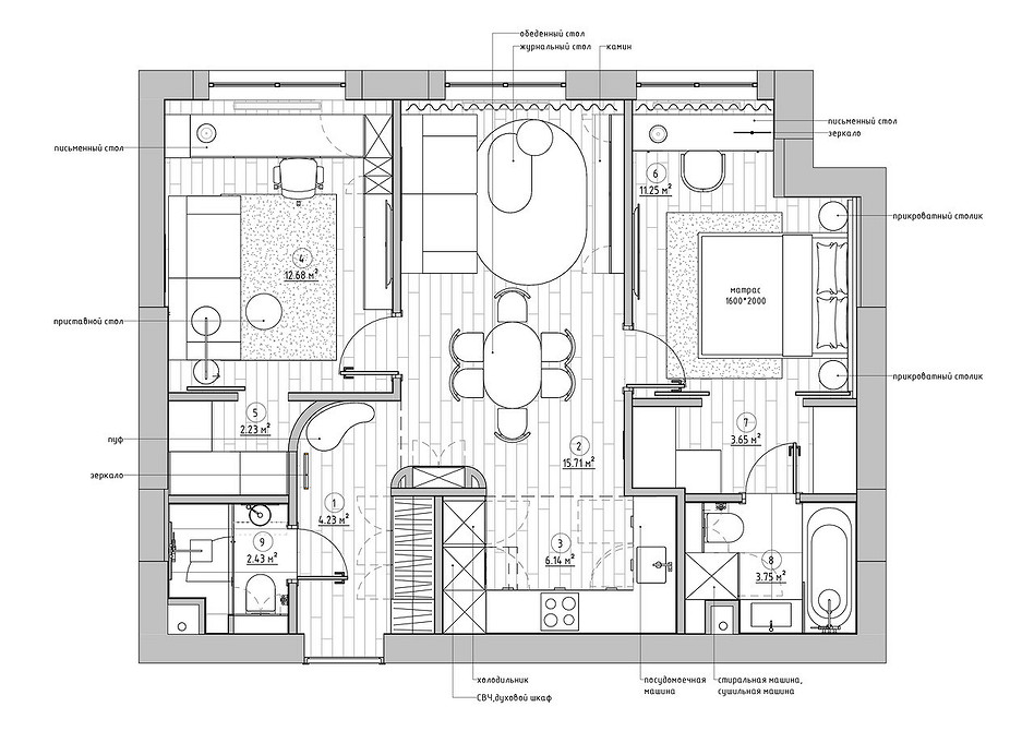
Дизайнер Евгения Петренко при проектировании этой двушки должна была решить задачи обустройства двух изолированных комнат (кабинета, или будущей детской, и спальни), а также организации кухни-гостиной. Задача решилась с помощью переноса зоны кухни в коридор и объединения ее с комнатой. Бывшую кухню задействовали под кабинет.
3 Создать вместительную систему хранения
Длинный коридор — идеальное пространство для систем хранения. В этой квартире по проекту Александры Марченко (студия Morphologia) так и сделали. Коридор площадью почти 15 квадратных метров задействован под встроенные шкафы разной глубины: для одежды, коллекций хозяев квартиры, разных вещей, накопленных с годами. Использовали и пространство над дверями, сделав антресоли. Фасады, выполненные под цвет стен, не перегружают интерьер, а, наоборот, создают лаконичную и очень аккуратную плоскость.
4 Добавить визуальный акцент и скрытое хранение
Функциональность не должна противоречить эстетике. В этой яркой трешке по проекту архитекторов Анны Тарасовой и Варвары Пономаревой коридор стал арт-объектом и одновременно практичным пространством.
Архитекторы использовали прием цветового зонирования. Проемы оформлены в виде выразительных цветных порталов, которые задают настроение всему дому. Есть и вместительное хранение: шкафы для одежды, комод как фокусная точка входной зоны. Двери в ванную комнату и санузел сделали скрытыми, под цвет стен, чтобы не создавать эффект «вагона», а вход в кладовку закамуфлирован под фасад шкафа. Сохранили чистоту линий и общую концепцию яркого, но гармоничного интерьера.
5 Провести функциональное зонирование
Даже в рамках одного пространство можно выделить несколько зон с разным назначением. Этот прием был использован в квартире архитектора и ее семьи.
Кира Шаева четко разделила длинный коридор-прихожую на две части. Первая, сразу при входе, выполняет роль классической прихожей: здесь расположены вместительные шкафы для верхней одежды и обуви. Далее пространство плавно трансформируется. Вторая зона отдана под хранение домашней библиотеки.

Пока комментариев нет. Начните обсуждение!