Сделали трешку с кухней в коридоре: элегантный интерьер квартиры 62 кв. м
Заказчики и задачи
Дизайнер Евгения Петренко работала по заказу флипперов. Елена Матюхова и Ольга Хакимова обратились к Евгении с запросом на создание стильного, запоминающегося интерьера, который привлечет покупателей. «Мы сразу нашли общий язык и быстро приступили к работе над проектом, — вспоминает Евгения. — Среди задач было: обязательно гардеробная, лучше две; два санузла (отдельный приватный санузел при главной спальне); дополнительная комната, которая смогла бы трансформироваться в детскую».
Планировка
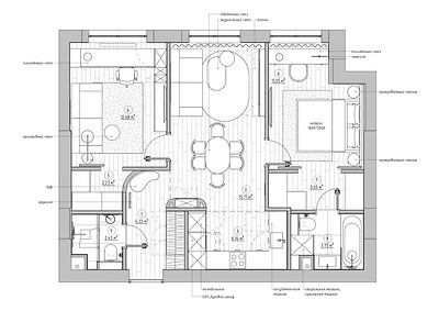
Изначально в квартире не было перегородок, но определены «мокрые» зоны санузлов и кухни. Предполагалось, что это двушка. Дизайнер предложила перепланировку. Вместо кухни сделали дополнительную комнату (сейчас кабинет-гостевая, в будущем, возможно, детская), кухню перенесли в коридор, она объединена с гостиной. В каждой комнате выделили гардеробную. В спальне через гардеробную сделали вход в ванную комнату. Второй санузел — в общем доступе из прихожей. Таким образом, планировкой «закрыли» основные задачи, поставленные перед дизайнером.
Отделка
Для стен использовали светлую краску. Добавили акцентов с помощью объемов и фактур. Так, использовали лепной декор: высокие потолочные карнизы и рифленые панели под потолком, гипсовый барельеф в спальне на стене за изголовьем кровати. Скругленные перегородки в кухне-гостиной и прихожей добавили пространству мягкости и изящества.
Фактуры в виде кварцвинила под дерево на полу, крупноформатного керамогранита с активным рисунком мрамора, которым отделан камин, и светлая плитка на фартуке с эффектом ручной работы сделали светлое пространство не скучным и выразительным.
Мебель и системы хранения
Дизайнер предусмотрела две гардеробные: одну — в кабинете, вторую — в спальне. Это позволило отказаться от больших шкафов для одежды. Однако в кабинете предусмотрели системы хранения для книг и бумаг: стеллаж с открытыми полками и шкаф. Они установлены по бокам от окна и консольного рабочего стола с выдвижными ящиками. Кроме этого, есть тумба-консоль под телевизор как дополнительное место хранения.
В прихожей предусмотрели шкаф для верхней одежды с подиумом из керамогранита. «Это отличное решение, чтобы спрятать обувь с глаз. Рядом также расположились вместительные выдвижные ящики для мелочей», — отмечает Евгения. Для прихожей подобрали необычное зеркало на штанге, которое можно поворачивать в нужную сторону. А также пуф, подчеркивающий своей формой изогнутую стену.
В гостиной — мягкий диван. Вместо тумбы под телевизор — камин. Полка камина может служить местом для хранения при необходимости.
Кухню сделали П-образной с рядом шкафов-колонн, куда встроили холодильник, духовой шкаф и СВЧ, а также предусмотрели места для хранения. Ниша там же поможет хранить мелкую бытовую технику, не заставляя ей столешницу. В торце перегородки, отделяющей кухню от прихожей, встроили шкаф-витрину для красивой посуды.
Обеденный стол «собрали» самостоятельно. «Мы приобрели отдельно подстолье и заказали столешницу, идеально подходящую по размеру и цвету», — комментирует дизайнер.
В спальне, кроме большой кровати, сделали консольный столик у окна. Предполагается, что у него двойное назначение: и туалетный столик, и рабочий стол. Поэтому на столешнице разместили зеркало на штанге. А для хранения предусмотрели выдвижные ящики под столом.
Освещение
Сценарии освещения одновременно функциональные и эффектные. Это и незаметные (в цвет потолка) точечные светильники во всех комнатах, и контрастные треки в кабинете над рабочим столом и в виде настенного светильника, и эффектная люстра в классическом стиле над обеденным столом. В качестве дополнительных сценариев освещения также использовали настенные бра, подвесы и скрытые подсветки.






Пока комментариев нет. Начните обсуждение!