Серия П-55: Больше простора

3-комнатная • П-55 • 09.12.2016
Несколько авторов Свернуть
Артур Харазян Архитектор, декоратор
Александр Молчанов Архитектор, декоратор
Ирина Барышева Архитектор, декоратор
Алина Жданова Архитектор, декоратор
Дизайн-проект перепланировки трехкомнатной квартиры общей площадью 78,5м2 в панельном шумозащитном доме серии П-55.

Четыре варианта перепланировки трехкомнатной квартиры общей площадью 70,6 м2, расположенной в панельном шумозащитном доме серии П-55. Читать далее...

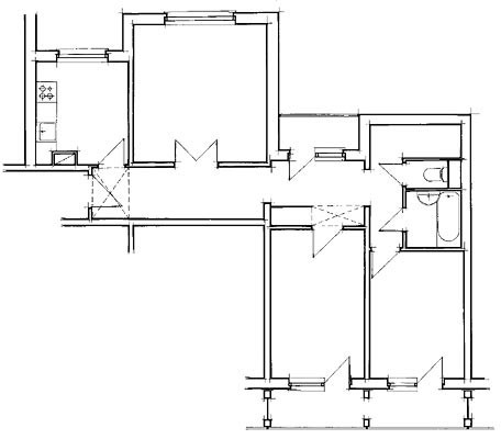
План
Комната Было Стало
Общая площадь 76,3 м2
Жилая площадь 40,8 м2
Количество комнат 3 3
Высота потолка 2,64 м
Прихожая-холл 8,2 м2
Кухня 8,3 м2
Жилая комната 10,8 м2
Балкон 3,1 м2
Редакция предупреждает, что в соответствии с Жилищным кодексом РФ требуется согласование проводимых переустройств и перепланировок.
Авторы
Артур Харазян Архитектор, декоратор
Александр Молчанов Архитектор, декоратор
+ 6
Ирина Барышева Архитектор, декоратор
+ 3
Алина Жданова Архитектор, декоратор
+ 3
Несколько авторов Свернуть
Если это ваш проект, пожалуйста, свяжитесь с нами по адресу ivd@burda.ru, указав в письме ссылку на проект.
Квартира 3-комнатная
Комментарии (0)

Пока комментариев нет. Начните обсуждение!