Квартира для семьи из трех человек

3-комнатная • 82м² • Москва • ЖК «Кварталы 21/19» • 2024 • 29.04.2026

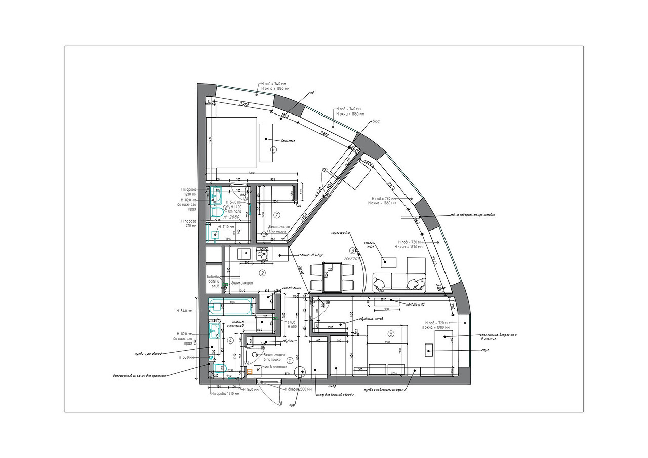
Проект квартиры площадью 82 м² с радиусной планировкой разработан для семьи из трех человек. Организовали кухню нишу с большой и просторной гостиной. Интерьер выдержан в монохромной гамме, с акцентом на чистые линии и спокойную атмосферу.

План
Комната Было Стало
Общая площадь 82 м2 82 м2
Количество комнат 3 3
Гостиная 82 м2 82 м2
Редакция предупреждает, что в соответствии с Жилищным кодексом РФ требуется согласование проводимых переустройств и перепланировок.
Материалы и цвета
Цвета
  • Мебель
Авторы
Если это ваш проект, пожалуйста, свяжитесь с нами по адресу ivd@burda.ru, указав в письме ссылку на проект.
Минимализм Квартира Серые 3-комнатная
Комментарии (0)

Пока комментариев нет. Начните обсуждение!