Квартира- студия с потайной гардеробной и с видом на Москва-Сити

2-комнатная • 42,5м² • Москва • ЖК «Шмитовский, 16» • 2024 • 29.04.2026

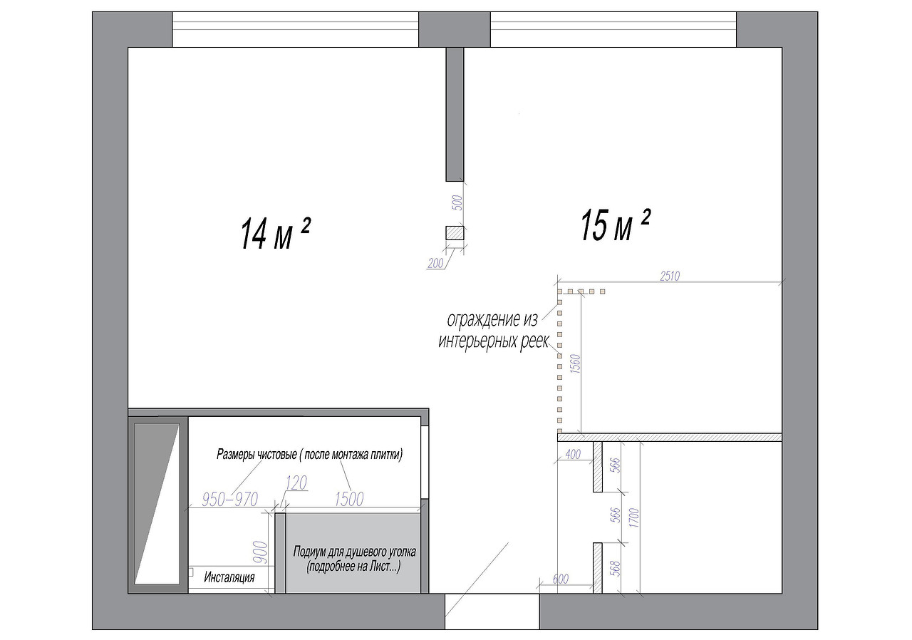
От постоянных заказчиков автора проекта поступил запрос на разработку дизайн-проекта для сына-студента. Площадь квартиры — 41 кв. м, планировка свободная. Места для санузла и кухни обозначены были застройщиком, их и придерживались. На данной площади удалось разместить полноценную кухню с обеденной зоной, двуспальную кровать, рабочий уголок и зону отдыха с диваном. Изюминкой проекта является гардеробная, которая замаскирована под шкаф. Санузел просторный, с душевой зоной, умывальником, унитазом и стиральной машиной. Планы молодого человека изменились — он уехал на учебу в другую страну. Квартира -студия успешно сдается в аренду.

План
Комната Было Стало
Общая площадь 42,5 м2 42,5 м2
Жилая площадь 37,3 м2 33 м2
Количество комнат 1 2
Редакция предупреждает, что в соответствии с Жилищным кодексом РФ требуется согласование проводимых переустройств и перепланировок.
Авторы
Если это ваш проект, пожалуйста, свяжитесь с нами по адресу ivd@burda.ru, указав в письме ссылку на проект.
Современный стиль Квартира 2-комнатная
Комментарии (0)

Пока комментариев нет. Начните обсуждение!