Воплощение мечт: уютная и элегантная квартира 42 кв. м для состоявшейся женщины
Заказчик и задачи
Владелица этой квартиры — энергичная женщина. Ей 61 год, она владеет собственным бизнесом, в Москве живут ее дети, внуки и другие родственники. Чтобы не стеснять их во время своих визитов, женщина решила приобрести собственное жилье в том же ЖК, где живет ее семья. Для оформления интерьера она пригласила дизайнера Эльвиру Юсину. «Основной запрос — достаточное количество мест для хранения, рабочая зона в спальне для удаленной работы и удобная кухня (заказчица любит готовить сама)», — рассказывает о задачах Эльвира.
Перепланировка
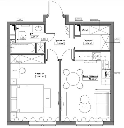
Изначальная планировка — классическая современная однушка: кухня-гостиная, отдельная спальня и ванная комната с прихожей. Часть кухни «отдали» под гардеробную с доступом из прихожей. В остальном планировка осталась неизменной.
Отделка
В основе проекта — стиль современная классика. Дизайнер стремилась создать элегантное пространство с роскошными деталями, но без вычурности, присущей традиционной классике. Поэтому выбрали ее современную версию. Для отделки стен использовали тканевые фактурные обои, потолки украсили широкими карнизами, в которые встроили решетки канальной системы вентиляции. В спальне с помощью декоративной штукатурки голубого цвета создали эффект «неба» на потолке. Голубой цвет «спустили» на стены в виде мягких настенных панелей с зеркальной вставкой за изголовьем кровати.
«Елочка» в укладке инженерной доски в спальне и гостиной стала продолжением идеи классического стиля. В прихожей, гардеробной и на кухне уложили керамогранит под светлый бежевый камень. Для кухонного фартука выбрали крупноформатный керамогранит, имитирующий эффектный камень Патагония. Под него подобрали кварцит для столешницы.
В отделке ванной комнаты фоном использовали нейтральный бежевый керамогранит, в качестве акцента — под камень Патагония: из него сделали раковину, акцентную стену над раковиной и выложили фрагмент стены рядом с инсталляцией унитаза; в зоне ванны применили фактурный керамогранит, имитирующий следы на песке.
Дверям в квартире дизайнер уделила немало внимания. На входную дверь от застройщика заказали накладку голубого цвета и сделали доборы с наличниками в цвет. В гардеробную ведет раздвижная зеркальная дверь. В ванную комнату — дверь скрытого монтажа с отделкой обоями со стороны прихожей. В кухню-гостиную и спальню ведут двери с рифленым стеклом — они позволяют сохранить приватность, но пропускают в прихожую естественный свет днем.
«Мы преследовали цель брать качественные материалы для отделки, по возможности максимально натуральные, ручной работы», — отмечает Эльвира.
Мебель и системы хранения
Благодаря тому, что на этапе перепланировки предусмотрели гардеробную, удалось освободить прихожую от больших шкафов. В гардеробной предполагается хранение верхней одежды, обуви, сезонных вещей, хозяйственных принадлежностей, там же поставили колонну из стиральной и сушильной машин.
В собственно прихожей — узкая консоль с выдвижным ящиком для мелочей и крючки для повседневной верхней одежды, сумочек. На заказ изготовили обувницу с выдвижными ящиками.
Кухню продумали так, чтобы у хозяйки было все необходимое для готовки: встроенный холодильник, посудомоечная машина шириной 60 см, встроенные микроволновая печь и духовой шкаф. Верхние шкафы до потолка — вместительные системы хранения для посуды, в нижних шкафах в основном сделали выдвижные ящики для удобства, под мойкой разместили измельчитель для отходов.
Диван в гостиную выбирала сама хозяйка: он раскладной на тот случай, если в гостях останутся внуки или друзья. Напротив дивана — овальная тумба с полками для хранения, над которой в дальнейшем планируется разместить телевизор.
В спальне — большой встроенный шкаф с секцией открытых полок для книг и декора. Рядом со шкафом — рабочий стол с выдвижными ящиками, стоящий на массивных ножках голубого цвета.
Кровать — с подъемным механизмом, в ящиках под кроватью можно хранить постельное белье, дополнительные подушки и одеяла.
В ванной комнате, кроме тумбы под раковину, организован шкаф для хранения в нише между дверью и ванной. Над инсталляцией унитаза за дверками спрятаны гребенки и проточный водонагреватель на случай отключения горячей воды.
Освещение
Основной свет в квартире — аккуратные встроенные гипсовые светильники. Они обеспечивают равномерную освещенность, когда это необходимо. Для создания декоративной и камерной атмосферы предусмотрены дополнительные сценарии: светодиодные подсветки в шкафах и нишах для штор в спальне и гостиной, люстры и бра поддерживают классическую стилистику. Такое разнообразие источников света позволяет хозяйке выбирать: яркий свет для работы или уютный полумрак для вечернего отдыха с книгой.








Пока комментариев нет. Начните обсуждение!