Реализованный проект однокомнатной квартиры площадью 42,8 м2
Взрослая женщина приобрела квартиру рядом с детьми и внуками, чтобы не стеснять их во время своих визитов — и пригласила дизайнера, чтобы создать пространство, которое отражало бы ее характер и соответствовало образу жизни. Читать далее...
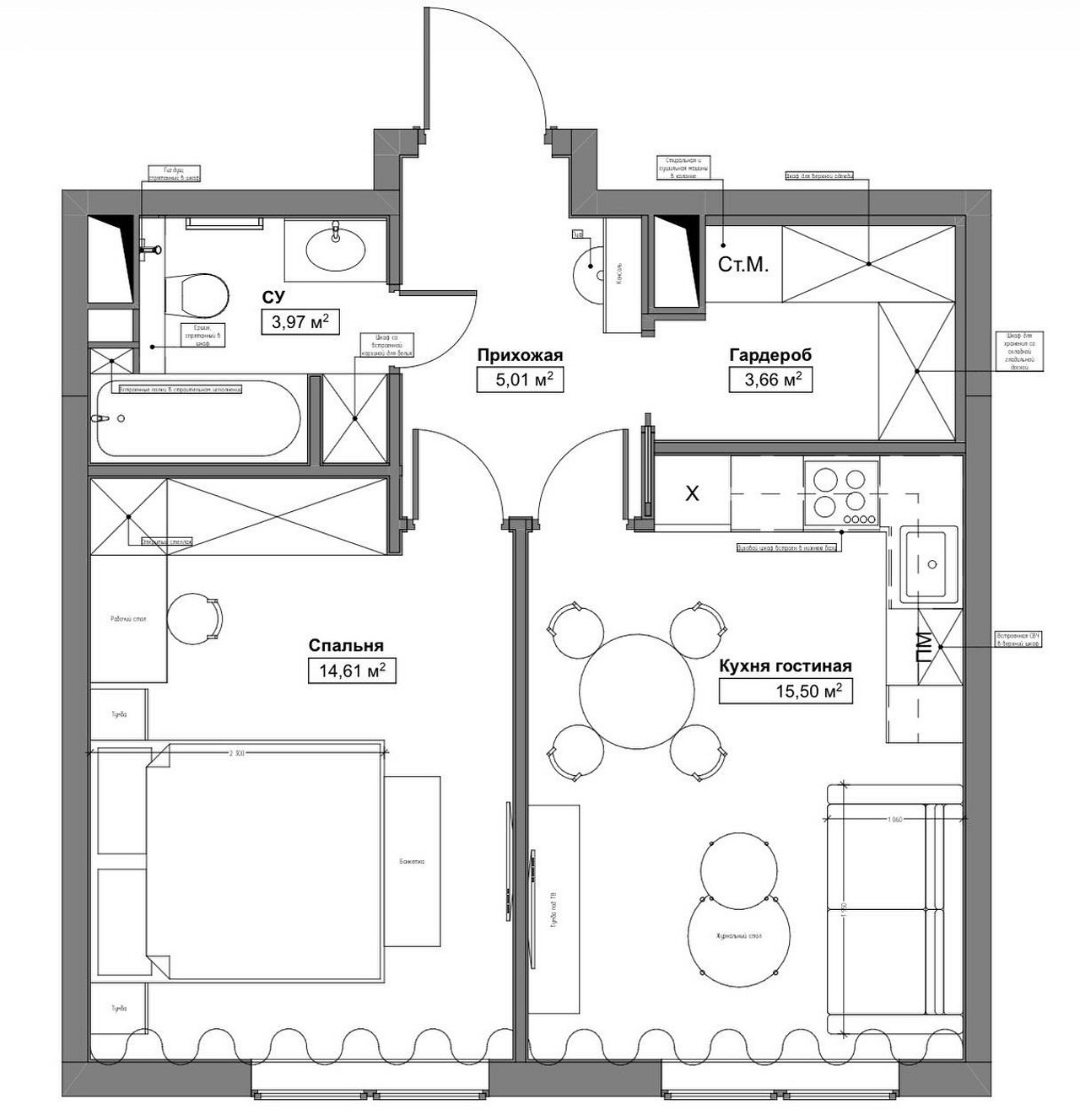
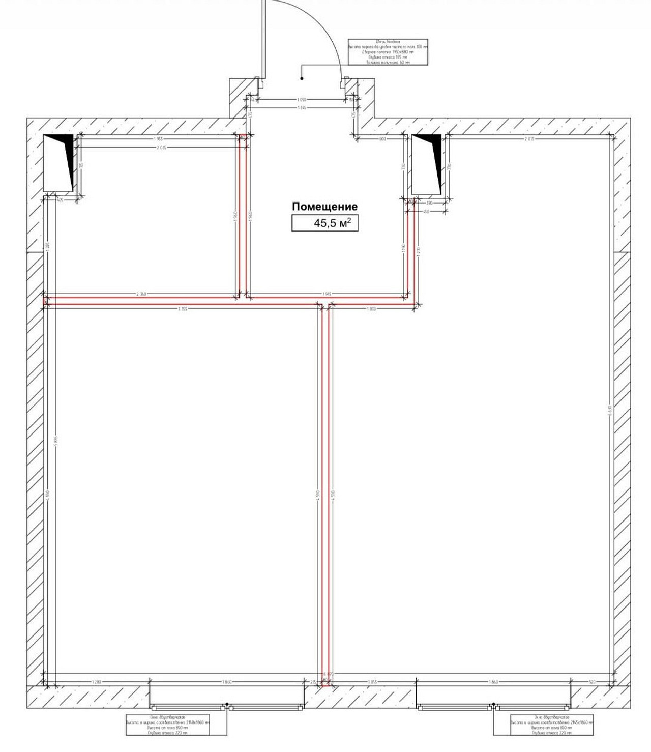
План
| Комната |
Было |
Стало |
| Общая площадь |
45,5 м2
|
42,8 м2
|
| Количество комнат |
1 |
1 |
| Высота потолка |
3 м
|
3 м
|
| Весь объект |
– |
42,8 м2 |
| Кухня-гостиная |
– |
15,5 м2 |
| Спальня |
– |
14,6 м2 |
| Гардеробная |
– |
3,7 м2 |
| Ванная комната |
– |
4 м2 |
| Прихожая |
– |
5 м2 |
Редакция предупреждает, что в соответствии с Жилищным кодексом РФ требуется согласование проводимых переустройств и перепланировок.
Материалы и цвета
Весь объект
- Двери: Profildoors
- Карнизы, плинтусы, молдинги: «Дикарт»
- Плинтусы: «ДекорДизайн»
- Выключатели и розетки: «Систэм Электрик»
Кухня-гостиная
- Пол: керамогранит «Порцеланоса», инженерная доска Finex
- Стены: обои Yana Svetlova
- Фартук: керамогранит Creto
- Мебель: диван Comfortonova, ТВ-тумба «Хаймун», обеденная группа «Ток Мебель»
- Сантехника: смеситель и мойка Omoikiri
- Шторы: студия «ЖУК»
- Освещение: люстры Freya, встроенные гипсовые светильники «Фабрика декоратор», встроенные светильники Arlight
Спальня
- Пол: инженерная доска Finex
- Стены: обои Yana Svetlova, мягкие стеновые панели Wall&Wall
- Потолок: декоративная штукатурка «Мкапэйнт»
- Мебель: прикроватные тумбы сделаны на заказ, кровать Idealbeds, прикроватная банкетка SK Design, рабочий стул Stoolgroup, мебельные ручки Vetvi
- Текстиль: на кровати «АтельеТати»
- Шторы: студия «ЖУК»
- Освещение: гипсовые светильники «Фабрика декоратор», бра Vetvi
Гардеробная
- Пол: керамогранит «Порцеланоса»
- Стены: обои «Марбург»
Ванная комната
- Пол: керамогранит «Порцеланоса», Creto
- Сантехника: смесители Kerama Marazzi, кнопка инсталляции Тесе, унитаз «Каталано»
- Полотенцесушитель: «Сунержа»
- Освещение: бра и подвесной светильник «Красиво светим»
Прихожая
- Пол: керамогранит «Порцеланоса»
- Стены: обои Yana Svetlova
- Мебель: открытая вешалка для верхней одежды с банкеткой-обувницей — сделана на заказ, подушечка для банкетки — студия «ЖУК»
- Освещение: люстры Freya, точечные накладные светильники Maytoni
Цвета
-
Текстиль
-
Мебель
-
Стены
-
Стены
-
Текстиль
Авторы
Если это ваш проект, пожалуйста, свяжитесь с нами по адресу
ivd@burda.ru, указав в письме ссылку на проект.
Пока комментариев нет. Начните обсуждение!