Как расставить мебель на маленькой кухне? 5 планировок для типовых квартир
1 Параллельная планировка
Площадь кухни: 7,2 кв. м
В этой кухне по дизайну Валерии Сургаевой гарнитур размещен параллельно. Такая планировка оказалась удобной для помещения правильной прямоугольной формы. Одна часть гарнитура — это основная рабочая зона: мойка, посудомоечная машина, варочная поверхность и духовка. Ряд верхних шкафов предназначен для бытового хранения и сделан до потолка.
Напротив — секция с импровизированной витриной: верхние шкафы сделаны со стеклянными фасадами, чтобы хозяйка могла выставить коллекцию красивой посуды и декора. В одном из нижних шкафов встроена микроволновая печь, в высокую колонну встроен холодильник. Шкаф с холодильником переходит в систему хранения в коридоре — секцию с открытыми полками, которая сделана неглубокой из-за выступа с коммуникациями, и бытовой шкаф.
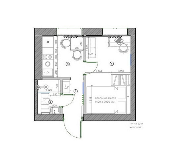
2 П-образная планировка с барной стойкой у окна
Площадь кухни: 5,7 кв. м
Несмотря на скромную площадь этой кухни, здесь реализована П-образная планировка гарнитура. Дизайнер Ирина Добронравова составила гарнитур из типовых модулей, а главная особенность — барная стойка, которую сделали из стандартного кухонного модуля и столешницы. Это позволило сэкономить без ущерба для функциональности.
Основная обеденная зона вынесена в гостиную, поэтому на самой кухне достаточно места только для приготовления пищи. Быстро перекусить можно за барной стойкой. Стиральную машину разместили на кухню. Она установлена в нижнем шкафу у окна.
3 П-образная планировка с буфетом
Площадь кухни: 7,8 кв. м
В этом проекте архитектор Татьяна Казанцева организовала маленькое пространство кухни с максимальной функциональностью. Планировка гарнитура П-образная, с верхним и нижним рядом шкафов. Доступ к газовому оборудованию скрыли за дверкой углового шкафа. Встроили холодильник и посудомоечную машину, духовой шкаф установили под варочной поверхностью.
Главным функциональным решением стал удобный шкаф-витрина, в котором также предусмотрены выдвижные ящики для столовых приборов, домашнего текстиля. Столовая группа очень компактная: круглый стол и пара деревянных стульев.
4 Линейная планировка
Площадь кухни: 5 кв. м
Эту маленькую кухню спланировала дизайнер Лидия Напреенко. Гарнитур расположили линейно, в один ряд. Дизайнеру удалось уместить духовой шкаф и компактную посудомоечную машину. Установили невысокий холодильник, а в шкафу над ним оставили место под микроволновую печь (за дверкой скрыта розетка).
Верхние шкафы также сделали до потолка, чтобы использовать каждый сантиметр для хранения. Брусничный цвет, которым выкрасили стену с окном и откосы, отвлекает внимание от скромных габаритов и добавляет интерьеру характера.
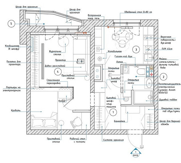
5 Угловая планировка с отдельным шкафом-витриной
Площадь кухни: 7,8 кв. м
В этом проекте студии «Рубикон» от верхних шкафов решили частично отказаться — их оставили только над мойкой и не до потолка. Это помогло визуально облегчить пространство. В нижние шкафы встроены духовой шкаф и посудомоечная машина. Холодильник — отдельно стоящий. В углу у окна поставили красивую витрину для посуды, там же размещена микроволновая печь.
Одна из самых интересных деталей — шкаф в торце гарнитура. Там запланировали полки за распашной дверцей, заменив таким образом стандартную бутылочницу. Для быстрых приемов пищи предусмотрели маленький стол на 1-2 человека, а большая столовая группа размещена в гостиной.




Пока комментариев нет. Начните обсуждение!