В подарок маме: чудесный интерьер 59 кв. м с заботой о родном человеке (фото квартиры до и после)
Заказчики и задачи
Эта квартира создавалась для женщины 55 лет, которая вышла на пенсию. Квартиру и новый интерьер хозяйке подарила ее дочь. Заказчица живет в Москве, квартира же для мамы расположена в закрытом городе недалеко от Челябинска. До этого мама заказчицы жила в деревне.
Женщина должна была переехать с двумя котами, большим количеством книг и личных вещей. Дизайнеру Владиславе Николаевой предстояло оформить интерьер с учетом наличия домашних животных и потребности в комфорте.
«Заказчики просили сделать максимально нейтральный и мягкий проект. Основная задача — обеспечить комфорт кошкам, которые привыкли жить в большом доме и имели выход на улицу. В городской квартире им нужно было установить два лотка, игровой комплекс, подоконник для наблюдений за обстановкой на улице. Большое внимание заказчица уделила техническому оснащению квартиры, мы должны были разместить стиральную и сушильную машины, робот-пылесос, кухонную технику, встроенную в пеналах, два больших телевизора, wi-fi точки в каждой комнате, кондиционеры, электрические карнизы, подвесной умный унитаз, а также предусмотреть разные сценарии освещения. Мама заказчица любит читать и вязать, поэтому в спальне и гостиной для нее предусмотрены удобные кресла с подсветкой для чтения, большие шкафы для хранения книг, а также стеклянный книжный стеллаж для коллекционных изданий», — рассказывает Владислава.
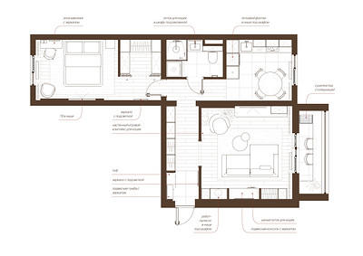
Перепланировка
В изначально двухкомнатной квартире с небольшой кухней и раздельными санузлами провели небольшие изменения: объединили ванную и туалет, увеличили это помещение за счет коридора, в спальне выстроили гардеробную, а в прихожей сделали перегородку для встройки шкафа.
Отделка
Для отделки стен по всех помещениях выбрали матовую краску нежного кремового цвета. «Краска на стенах моющаяся, но с матовым эффектом, должна быть удобна в использовании и легко реставрироваться или очищаться», — отмечает Владислава. На пол уложили инженерную доску. Выбрали натяжные потолки с теневым профилем. «Они визуально делают высоту помещений выше, так как мы не видим четкую границу стены и потолка», — добавляет автор проекта.
Для акцента использовали стеновые панели, чтобы выделить туалетный столик в спальне и телевизор в гостиной. Также в спальне на стене за изголовьем кровати поклеили обои-панно с рисунком птиц на ветках. «Это добавило выразительности и природности, также на картинке удачно ветки свисают, не касаясь кровати, что дает нам эффект воздушности, высоты, легкости, добавляет пространству объема», — комментирует дизайнер.
На пол в прихожей (у входной двери), на кухне и на балконе уложили керамогранит под мрамор. Его же использовали на полу в ванной комнате. На стенах в душевой и над раковиной уложили керамогранит под розовый кварц. Это добавило нежный акцент.
Мебель и системы хранения
Владислава продумала вместительные системы хранения в каждой комнате. При входе разместили консоль для мелочей и банкетку, куда удобно присесть. Прямо по коридору встроили шкаф глубиной 40 см. В нем предусмотрены секции под верхнюю одежду и обувь и хозяйственное хранение: под швабру и ведро, под пылесос, выдвижные ящики для мелочей и полки для чемоданов.
В гостиной за спинкой дивана расположили симметричные закрытые шкафы: в одном из них прячутся утюг и выдвижная гладильная доска, там же предусмотрено место для робота-пылесоса с розетками для техники. Другой шкаф — с выдвижными ящиками и полками, где хозяйка хранит книги. Между ними — консоль с выдвижными ящиками для документов.
Напротив дивана — тумба под телевизор с ящиками и витрина для книг.
На кухне установили угловой гарнитур с верхними шкафами до потолка. В высокие шкафы встроили холодильник, духовой шкаф и СВЧ. Над СВЧ сделали шкаф-витрину для красивой посуды. А под духовкой оставили свободное пространство, чтобы поставить туда автоматические кормушки и питьевой фонтанчик для кошек.
В спальне дизайнер предложила сделать гардеробную — ее отделили от комнаты стеклянной перегородкой. Шкафы для гардеробной заказали на маркетплейсе, заранее просчитывая размеры помещения.
За счет того, что сделали гардеробную, сама спальня получилась более правильной квадратной формы. Уместили комфортную двуспальную кровать, тумбочку, туалетный столик, кресло для чтения. Напротив кровати повесили телевизор.
В ванной комнате удалось разместить колонну из стиральной и сушильной машин в шкафу с жалюзийными дверками. Над колонной осталось место для хранения. В тумбе под раковину сделали отделение для кошачьих лотков. Также хранение предусмотрели над инсталляцией унитаза.
Балкон тоже стал функциональной частью квартиры. Там сделали барную стойку и предусмотрели шкаф для хранения садоводческих принадлежностей.
Освещение
В каждом помещении предусмотрели несколько сценариев освещения: потолочный свет, люстры, бра, подвесы, скрытые подсветки. «Основное освещение — температурой 3 000К, подсветка и бра — 2 500К, то есть более мягкий и теплый свет. Основной принцип подбора освещения — сделать больше нормы и возможность регулировать по ходу жизни, чтобы у хозяйки была возможность самой настроить режим и насыщенность ламп, включить сразу встроенный свет и люстру или что-то одно, включить бра и подсветку вечером или ничего не включать. У мамы заказчицы не было опыта с разными сценариями освещения, поэтому мы старались сильно не усложнять, но при этом сделать удобные и понятные схемы на выключателях, чтобы можно было настроить комфортное освещение самостоятельно», — рассказывает Владислава.








Пока комментариев нет. Начните обсуждение!