Уютная светлая квартира в подарок маме

2-комнатная • 59,7м² • • 03.12.2025

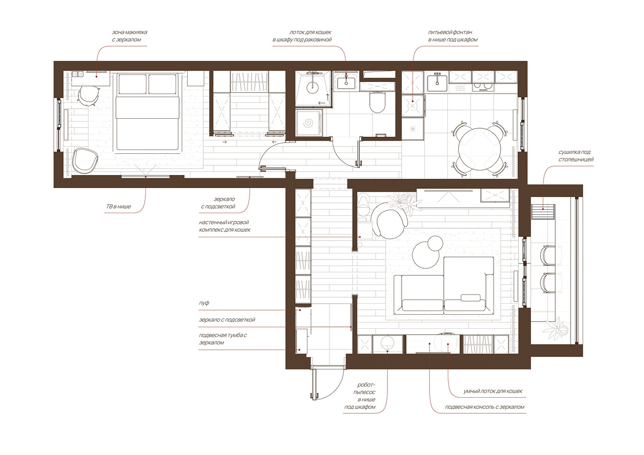
Реализованный проект двухкомнатной квартиры площадью 59,7 м2

Заказчица проекта — взрослая дочь, которая решила подарить маме квартиру к выходу на пенсию. Жилье расположено в закрытом городке недалеко от Челябинска. Дизайнер превратила устаревший интерьер в обновленный и комфортный. Читать далее...

План
Комната Было Стало
Общая площадь 61,2 м2 59,7 м2
Количество комнат 2 2
Высота потолка 2,6 м 2,6 м
Весь объект 59,7 м2
Кухня 8,6 м2
Гостиная 17,9 м2
Спальня 12,6 м2
Гардеробная 3,3 м2
Балкон 4,1 м2
Ванная комната 4 м2
Коридор 2,8 м2
Прихожая 6,4 м2
Редакция предупреждает, что в соответствии с Жилищным кодексом РФ требуется согласование проводимых переустройств и перепланировок.
Материалы и цвета
Весь объект
  • Пол: инженерная доска Greenline
  • Стены и пол: керамогранит Italon, Geotiles, Ceradim
  • Стены: краска Lanors, панели Orac, Laconistiq
  • Двери: Profil Doors
  • Мебель: СК Дизайн, Lavsit, «Светоч», Inmyroom, La Redoute, корпусная «Омега» (на заказ)
  • Сантехника: AM.PM, Vincea, Ewrika, Tezza, Stworki, Boheme, Gappo
  • Декор: Togas, Designboom, завод «Гусь Хрустальный», искусство — Анна Лаврова, Людмила Пономарева
  • Освещение: Maytoni, Loft Concept
  • Выключатели и розетки: Voltum
Авторы
Если это ваш проект, пожалуйста, свяжитесь с нами по адресу ivd@burda.ru, указав в письме ссылку на проект.
Современная классика Квартира Желтые Красные Чёрные и белые 2-комнатная
Комментарии (0)

Пока комментариев нет. Начните обсуждение!