Функциональная квартира-студия для студента в Москве

1-комнатная • 21,6м² • ЖК «Сиреневый парк» • 03.02.2026

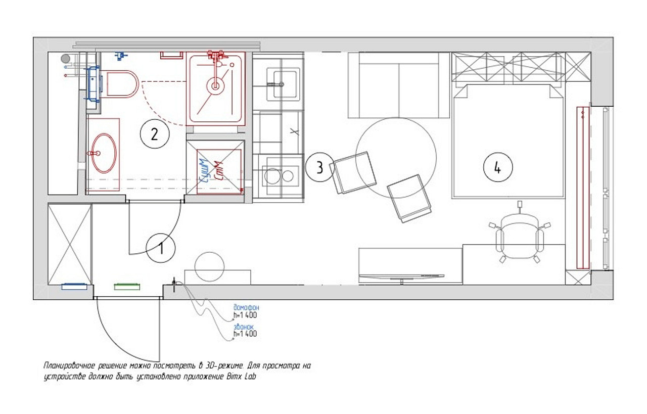
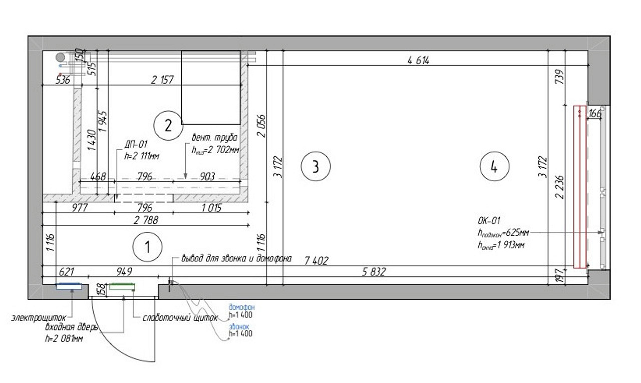
Реализованный проект квартиры-студии площадью 21,6 м2

В маленьком пространстве предусмотрели все необходимые функциональные зоны, и оно стало комфортным для жизни. Читать далее...

План
Комната Было Стало
Общая площадь 22 м2 21,6 м2
Количество комнат 1 1
Высота потолка 2,8 м 2,8 м
Весь объект 21,6 м2
Кухня-ниша 5,8 м2
Комната 8,9 м2
Санузел 3,9 м2
Прихожая 3,1 м2
Редакция предупреждает, что в соответствии с Жилищным кодексом РФ требуется согласование проводимых переустройств и перепланировок.
Материалы и цвета
Весь объект
  • Пол: кварцвинил Alpine Floor
  • Стены и пол: плитка Kerama Marazzi
  • Стены: краска Hygge, обои Factura
  • Двери: Profildoors
  • Мебель: кухонный гарнитур, тумбы и корпусная мебель Mr.Doors, диван, кресла и стулья divan.ru, кровать Olissys
  • Сантехника: смеситель и мойка Omoikiri, унитаз и раковина Jacob Delafon, смесители WasserKraft
  • Техника: Körting
  • Освещение: Maytoni
  • Выключатели и розетки: Werkel
Авторы
Если это ваш проект, пожалуйста, свяжитесь с нами по адресу ivd@burda.ru, указав в письме ссылку на проект.
Современный стиль Квартира Желтые Красные Зелёные Серые 1-комнатная
Комментарии (0)

Пока комментариев нет. Начните обсуждение!