Из интерьера 2000-х — в новую стильную квартиру! Эффектная переделка семейного гнезда 115 кв. м
Заказчики и задачи
Владельцы квартиры — семья с двумя взрослыми дочерьми, которые уже не живут с родителями, но часто приезжают в гости. Семейная пара не в первый раз обращается к дизайнеру Регине Бикбулатовой. «Главным запросом было избавиться от скругленных многоуровневых потолков, вычурных углов и узких переходов. Убрать многочисленные рельефы из гипсокартона на стенах, впустить как можно больше света в квартиру, а также поменять всю мебель», — рассказывает о своих задачах дизайнер.
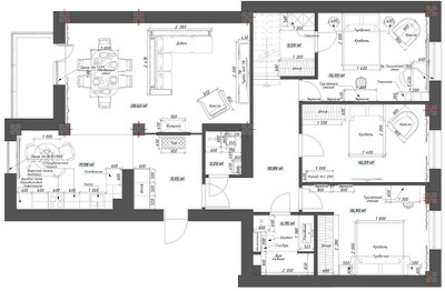
Перепланировка
Квартира двухуровневая, но переделывали только первый этаж: кухню-гостиную, три спальни, связанных длинным коридором, ванную комнату и туалет. Изначальную планировку незначительно поменяли: отделили прихожую от кухни-гостиной перегородкой, расширили дверные проемы в коридор и одну из комнат, выделили гардеробную комнату в одной из комнат, предназначенных для дочерей. Подоконный блок между лоджией и гостиной заменили на остекление в пол.
Отделка
Основная отделка стен — краска. Для того чтобы разнообразить гладкие однотонные стены, использовали панели: на кухне панели из дерева, в гостиной и спальне — рельефные панели в виде реек, окрашенных в цвет стен. Также дизайнер применила для акцента обои: их поклеили в столовой зоне, в родительской спальне за изголовьем кровати и в гостевой комнате. Благодаря демонтажу многоуровневых потолков их высота в новом интерьере увеличилась на 10 см. Высоту подчеркнули высокими карнизами.
На пол уложили инженерную доску цвета светлого дерева, уложенную «елочкой». Для прихожей выбрали светлый керамогранит с темными вставками.
В ванной комнате уложили керамогранит теплого коричневого оттенка на пол и стену с инсталляцией, а на стены душевой — керамогранит под мрамор с коричневыми прожилками. Столешницу тумбы под раковину выполнили из камня, как и «фартук» на стенах вокруг раковины.
Мебель и системы хранения
Системы хранения продумали так, чтобы сделать их незаметными в интерьере. В прихожей встроили шкаф для верхней одежды и обуви. Рифленые фасады повторяют рельеф панелей в гостиной.
Планировку кухни сохранили — угловой гарнитур. Это функциональное и удобное расположение мебели и техники: по двум сторонам — высокие колонны, в них встроены холодильник, духовой шкаф, СВЧ и кофемашина. Рядом с мойкой встроена посудомоечная машина. За счет высоких верхних шкафов увеличен объем хранения.
На кухне стоит небольшой обеденный стол, а в гостиной организована просторная обеденная зона, где можно принимать гостей.
В гостиной, кроме дивана, — тумба под телевизор и необычный шкаф-витрина со стеклянными стенками, дизайнер сравнила его со шкатулкой.
В спальне хозяев шкаф встроили в стену рядом с дверью. Это вместительная система хранения на четыре секции.
Напротив кровати поставили стол, который может выполнить роль и туалетного, и рабочего.
В двух других спальнях, предназначенных для дочерей, тоже предусмотрены системы хранения. В одной — встроенный шкаф, во второй — гардеробная, созданная на этапе планировки.
Также для одной из дочек предусмотрено рабочее место со стеллажом с открытыми полками, во второй комнате стоит маленький туалетный столик.
В ванной комнате — тумба под раковину, установленная под каменную столешницу, а также хранение над инсталляцией унитаза. В туалете организовали постирочный блок: стиральная и сушильная машина.
Освещение
Квартира расположена на теневой стороне, поэтому задачей дизайнера было сделать ее светлее и с помощью искусственного света. Продумали разные сценарии света. На потолке — точечные и линейные встроенные светильники, кроме этого есть люстры над обеденным столом, в прихожей, спальнях. Предусмотрены настенные бра в спальнях у кроватей, у зеркал, картин в прихожей и на кухне. Над обеденным столом на кухне разместили подвес, напоминающий луну.









Пока комментариев нет. Начните обсуждение!