Обновленная квартира для семьи в Уфе

4-комнатная • 115,5м² • ЖК «Парковый» • 15.01.2026

Реализованный проект четырехкомнатной квартиры площадью 115,5 м2

Дизайнер Регина Бикбулатова превратила устаревшую квартиру в современное и комфортное пространство для семьи. Читать далее...

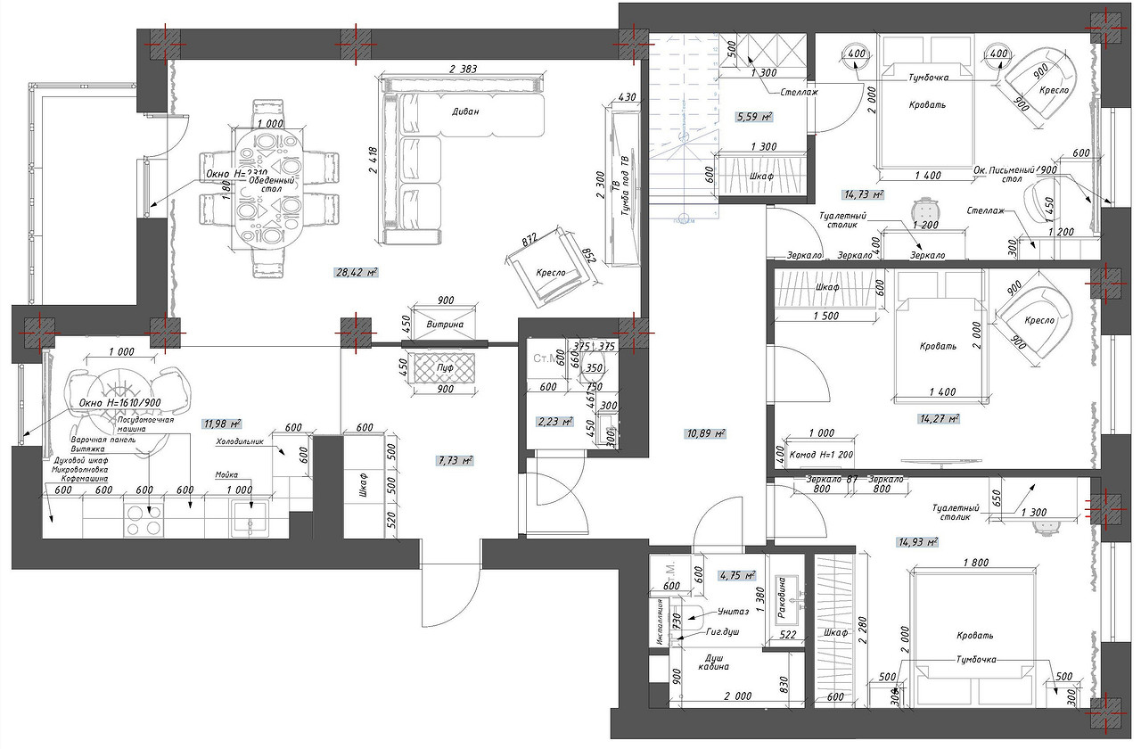
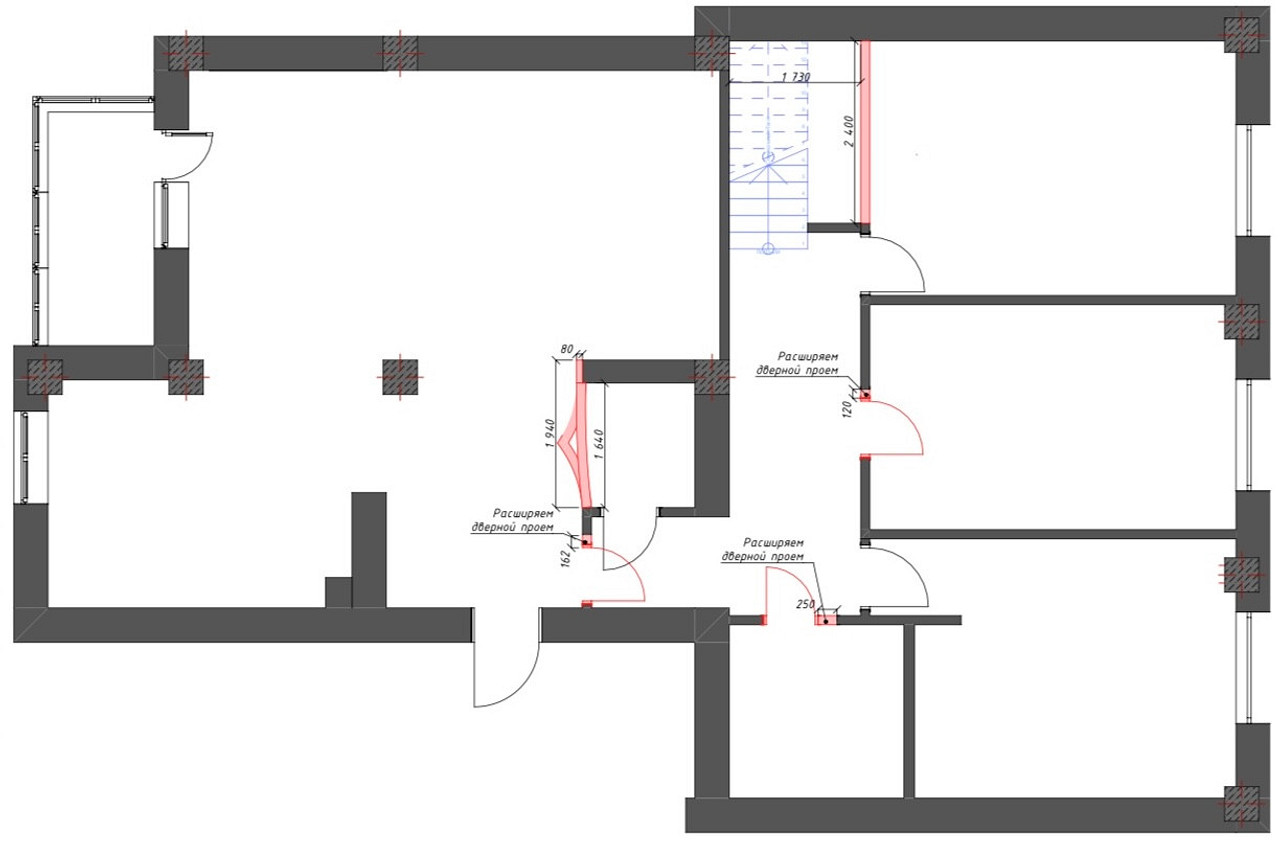
План
Комната Было Стало
Общая площадь 115 м2 115,5 м2
Количество комнат 4 4
Высота потолка 2,6 м 2,7 м
Весь объект 115,5 м2
Кухня 12 м2
Гостиная 28,4 м2
Спальня 14,9 м2
Гостевая спальня 1 14,3 м2
Гостевая спальня 2 14,7 м2
Гардеробная 5,6 м2
Ванная комната 4,8 м2
Туалет 2,2 м2
Коридор 10,9 м2
Прихожая 7,7 м2
Редакция предупреждает, что в соответствии с Жилищным кодексом РФ требуется согласование проводимых переустройств и перепланировок.
Материалы и цвета
Весь объект
  • Стены и пол: керамогранит Vives, Emil Ceramica
  • Стены: краска Zoffany, Sanderson, обои Arte, York
  • Фартук: плитка Equipe
  • Лепнина: Orac Decor
  • Двери: «Новадвери»
  • Мебель: Fiam, Kartell, Calligaris, Catellan, Flexform, Furman, Giulia Novars, Betto Bardi
  • Сантехника: Gessi
  • Картины: в спальне — Ариадна Авсахова, в прихожей — Ильдар Гильманов, в гостиной и на кухне — Расих Ахметвалиев, галерея annartproject
  • Текстиль: Designers Guild, Harlequin, Zoffany, Clarke&Clarke
  • Освещение: Slamp, Italamp, Prandina, Stelanovo, Vibia
  • Выключатели и розетки: Bticino
Авторы
Если это ваш проект, пожалуйста, свяжитесь с нами по адресу ivd@burda.ru, указав в письме ссылку на проект.
Современный стиль Квартира Желтые Серые Чёрные и белые 4-комнатная
Комментарии (0)

Пока комментариев нет. Начните обсуждение!