Квартира на бис: Красное и черное

2-комнатная • П-46 • 09.12.2016
Дизайн-проект перепланировки двухкомнатой квартиры общей площадью 51,9м2 в панельном доме серии П-46.
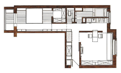
План
Комната Было Стало
Общая площадь 52,1 м2
Жилая площадь 30,5 м2
Количество комнат 2 2
Высота потолка 2,64 м
Прихожая 5,8 м2
Коридор 2,7 м2
Кухня 8,6 м2
Жилая комната 17,1 м2
Ванная комната 3,9 м2
Балкон 3,1 м2
Редакция предупреждает, что в соответствии с Жилищным кодексом РФ требуется согласование проводимых переустройств и перепланировок.
Авторы
Если это ваш проект, пожалуйста, свяжитесь с нами по адресу ivd@burda.ru, указав в письме ссылку на проект.
Квартира 2-комнатная
Комментарии (0)

Пока комментариев нет. Начните обсуждение!