Цвет в квадрате: В лучших традициях сегодняшнего дня
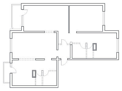
Семь вариантов перепланировки блока одно- и двухкомнатных квартир общей площадью 92 м2 в панельном доме серии КОПЭ. Читать далее...

Комната | Было | Стало |
---|---|---|
Общая площадь | 92 м2 | |
Количество комнат | 3 | 4 |
Высота потолка | 2,64 м | – |
Зона кухни-ванной комнаты | 19,7 м2 | – |
Жилая комната | 14,6 м2 | – |
Прихожая | 5,5 м2 | – |
Пока комментариев нет. Начните обсуждение!