Необычная двушка в Астане для девушки

2-комнатная • 77м² • ЖК «Европа Сити» • 26.03.2026

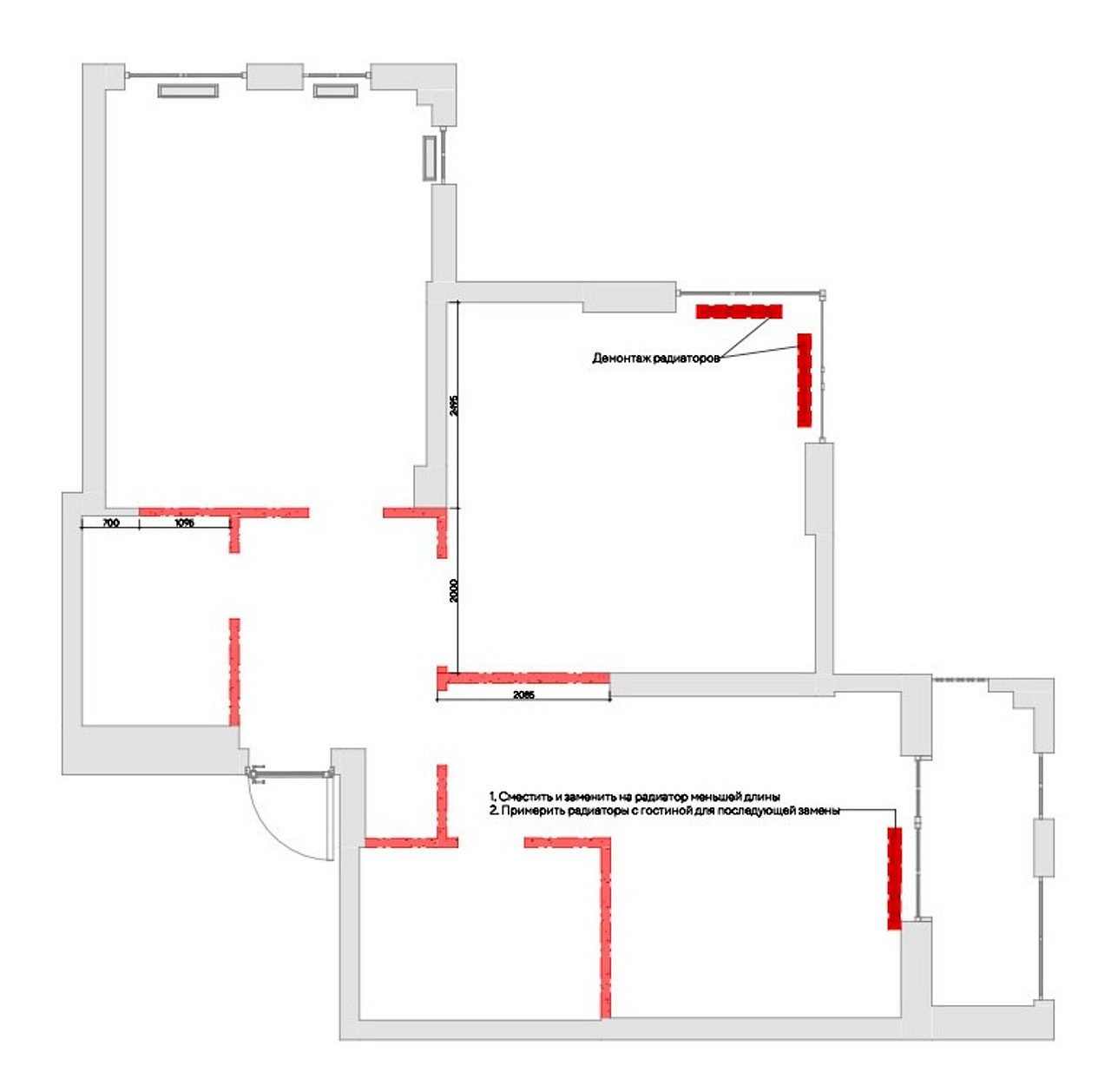
Реализованный проект двухкомнатной квартиры площадью 77 м2

В этой квартире цвет и орнамент стали полноценной основой, а не просто акцентами — и интерьер получился интересным, запоминающимся и по-настоящему авторским. Читать далее...

План
Комната Было Стало
Общая площадь 80,7 м2 77 м2
Количество комнат 2 2
Весь объект 77 м2
Кухня 14,4 м2
Гостиная 19,9 м2
Спальня 17,9 м2
Балкон 4,8 м2
Прачечная 3,3 м2
Ванная комната 5,2 м2
Гостевой санузел 1,8 м2
Прихожая 9,7 м2
Редакция предупреждает, что в соответствии с Жилищным кодексом РФ требуется согласование проводимых переустройств и перепланировок.
Материалы и цвета
Весь объект
  • Пол: кварцевый паркет Quartz Parquet
  • Стены: краска Flugger
  • Мебель: корпусная на заказ, мягкая divan.ru
  • Сантехника: Abber
  • Бытовая техника: на кухне Maunfeld
  • Освещение: сделано на заказ
  • Электроустановочные изделия: Artway
Авторы
Если это ваш проект, пожалуйста, свяжитесь с нами по адресу ivd@burda.ru, указав в письме ссылку на проект.
Современный стиль Квартира Желтые Оранжевые Красные Синие 2-комнатная
Комментарии (0)

Пока комментариев нет. Начните обсуждение!