Уютная квартира с видом на реку и парк для пары

2-комнатная • 76,4м² • ЖК «СберСити» • 25.03.2026

Реализованный проект двухкомнатной квартиры площадью 76,4 м2

Из этой квартиры открываются красивые виды на реку и парк. Дизайнер решила связать природу за окном с интерьером — и вот, что получилось. Читать далее...

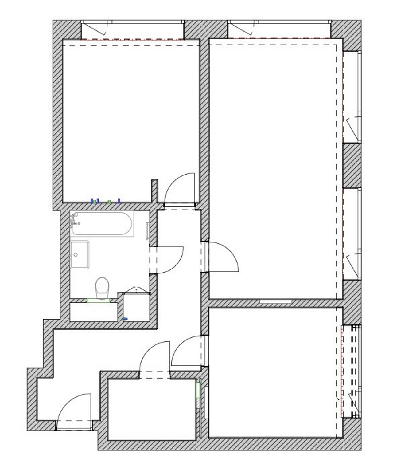
План
Комната Было Стало
Общая площадь 76,4 м2 76,4 м2
Количество комнат 2 2
Высота потолка 3 м 3 м
Весь объект 76,5 м2
Кухня 16,6 м2
Гостиная 27,2 м2
Спальня 13,2 м2
Гардеробная 3,8 м2
Ванная комната 5,3 м2
Прихожая 10,3 м2
Редакция предупреждает, что в соответствии с Жилищным кодексом РФ требуется согласование проводимых переустройств и перепланировок.
Материалы и цвета
Весь объект
  • Пол: инженерная доска Lab Arte
  • Стены: керамогранит Italon
  • Двери: Belwooddoors
  • Мебель: корпусная «Джим Вуд» (на заказ)
  • Текстиль: «Даотекстиль»
  • Ковер: kover.ru
Авторы
Если это ваш проект, пожалуйста, свяжитесь с нами по адресу ivd@burda.ru, указав в письме ссылку на проект.
Современная классика Квартира Желтые Зелёные Серые Чёрные и белые 2-комнатная
Комментарии (0)

Пока комментариев нет. Начните обсуждение!