Однушка с творческим интерьером в Краснодаре

1-комнатная • 45,5м² • ЖК «Самолет» • 23.03.2026

Реализованный проект однокомнатной квартиры площадью 45,5 м2

Дизайнер создала очень необычный интерьер для квартиры под сдачу в аренду. Читать далее...

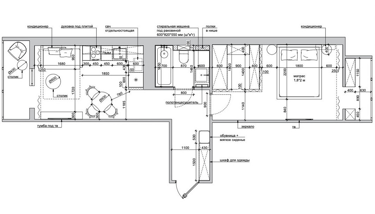
План
Комната Было Стало
Общая площадь 45,5 м2 45,5 м2
Количество комнат 1 1
Высота потолка 2,9 м 2,9 м
Весь объект 45,5 м2
Кухня 13 м2
Балкон при кухне 3,3 м2
Спальня 16 м2
Балкон при спальне 2,6 м2
Ванная комната 3,7 м2
Прихожая 7 м2
Редакция предупреждает, что в соответствии с Жилищным кодексом РФ требуется согласование проводимых переустройств и перепланировок.
Материалы и цвета
Цвета
  • Стены
  • Шторы
  • Мебель
  • Мебель
  • Мебель
Авторы
Если это ваш проект, пожалуйста, свяжитесь с нами по адресу ivd@burda.ru, указав в письме ссылку на проект.
Фьюжн Квартира Красные Фиолетовые Синие Зелёные Чёрные и белые 1-комнатная
Комментарии (0)

Пока комментариев нет. Начните обсуждение!