Уютная квартира в теплых тонах для пары

2-комнатная • 60,4м² • ЖК «Ривьера» • 06.02.2026

Реализованный проект двухкомнатной квартиры площадью 60,4 м2

Дизайнер оформила интерьер квартиры в теплых тонах с ненавязчивыми акцентами и современным комфортом. Читать далее...

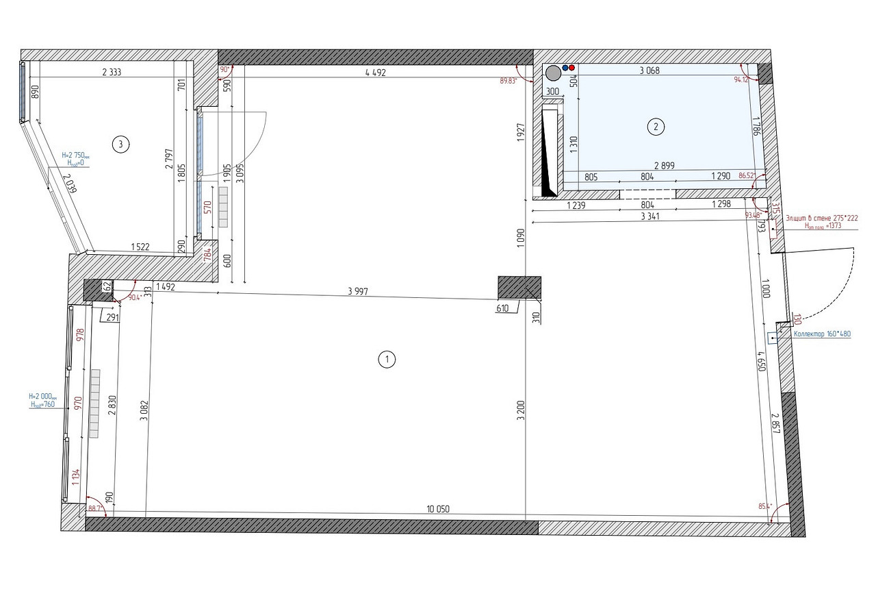
План
Комната Было Стало
Общая площадь 62,1 м2 60,4 м2
Количество комнат 1 2
Высота потолка 2,7 м 2,7 м
Весь объект 60,4 м2
Кухня-гостиная 27,5 м2
Спальня 12,2 м2
Гардеробная 4,2 м2
Лоджия 5,7 м2
Ванная комната 4,4 м2
Прихожая 6,5 м2
Редакция предупреждает, что в соответствии с Жилищным кодексом РФ требуется согласование проводимых переустройств и перепланировок.
Материалы и цвета
Весь объект
  • Пол: каменно-полимерный СПС-ламинат Norland, плитка на балконе Creto
  • Стены: краска Loymina, стеновые панели Estet
  • Стены и пол: керамогранит Italon, Vitra
  • Плинтусы: Laconistiq, Orac
  • Двери: Estet
  • Фартук: керамогранит Vitra
  • Мебель: кровать «Орматек», диван, кресло, стеллаж, комод и стулья divan.ru, обеденный стол «Фабрика стульев»
  • Сантехника: Boheme, Ceramica Nova
  • Декор: вазы — салон Prima Studio, керамическая скульптура на журнальном столике — Василий Решетников
  • Картины: Гуля Михайлова, Иван Михайлов
  • Ковры: Art De Vivre
  • Освещение: бра у кровати Loft It, торшеры Moderli, Evoluce, светильник над столом Kink Light, треки Elektrostandard, встроенные светильники Maytoni
  • Выключатели и розетки: Voltum
Авторы
Если это ваш проект, пожалуйста, свяжитесь с нами по адресу ivd@burda.ru, указав в письме ссылку на проект.
Современный стиль Квартира Желтые Зелёные Чёрные и белые 2-комнатная
Комментарии (0)

Пока комментариев нет. Начните обсуждение!

Похожие перепланировки