HEART

4-комнатная • 109,09м² • Москва • ЖК «Сердце столицы» • 2025 • 02.02.2026
ANFEDO interior design & decoration Дизайнер-декоратор

Основой и вдохновением к этому проекту служил любимый фильм заказчицы «Цвет гранта». В нем собраны этнические мотивы Центральной Азии, «неидеальная идеальность» окружающего нас мира, утонченность форм и вместе с тем буйство красок. Словно из разных нитей памяти нам удалось сплести в один красочный ковер воспоминания детства, путешествия юности и ритм современной жизни мегаполиса. Как и всегда, мы трепетно относимся к ценным семейным реликвиям, вещам с историей, которые по крупицам удается собрать по мере подготовки и реализации проекта. Мы реставрируем, привозим и восстанавливаем предметы, которые будут на протяжении долгой жизни служить маркерами памяти для наших заказчиков. Так у нас получился проект о большом и очень добром сердце. Проект стал финалистом конкурса Best Russian Design Awards в номинации «Modern Home Awards» (интерьер от 100 до 130 кв.м.) и лауреатом Платинового Диплома международной премии Золотой Треззини.

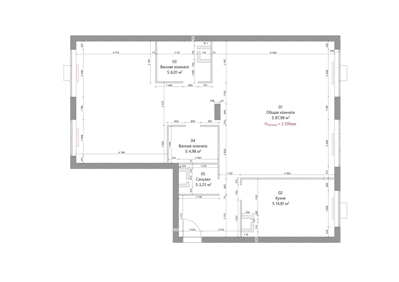
План
Комната Было Стало
Общая площадь 117,01 м2 109,09 м2
Жилая площадь 87,98 м2 69,35 м2
Количество комнат 2 4
Спальня 13,11 м2
Прихожая 3,90 м2
Ванная комната 6,01 м2 4,39 м2
Детская 11,56 м2
Кабинет 14,05 м2
Гардеробная 4,19 м2
Гостевой санузел 3,23 м2 2,88 м2
Коридор 15,98 м2
Гостиная-столовая-кухня 30,63 м2
Кладовая-постирочная 3,88 м2
Мастер-ванная 4,98 м2 4,52 м2
Редакция предупреждает, что в соответствии с Жилищным кодексом РФ требуется согласование проводимых переустройств и перепланировок.
Материалы и цвета
Цвета
  • Стены, Потолок, Мебель
  • Мебель
  • Стены
  • Мебель
  • Мебель, Пол
  • Стены, Пол
  • Стены
  • Мебель
Авторы
Если это ваш проект, пожалуйста, свяжитесь с нами по адресу ivd@burda.ru, указав в письме ссылку на проект.
Современный стиль Квартира Желтые Красные Зелёные 4-комнатная
Комментарии (0)

Пока комментариев нет. Начните обсуждение!