Реализованный проект одноэтажного банного дома площадью 89,7 м2
Бассейн, сауна, хаммам, терраса и место отдыха, уютная кухня — все это в личном пользовании семьи, которая любит проводить время вместе и приглашать в гости друзей. Читать далее...
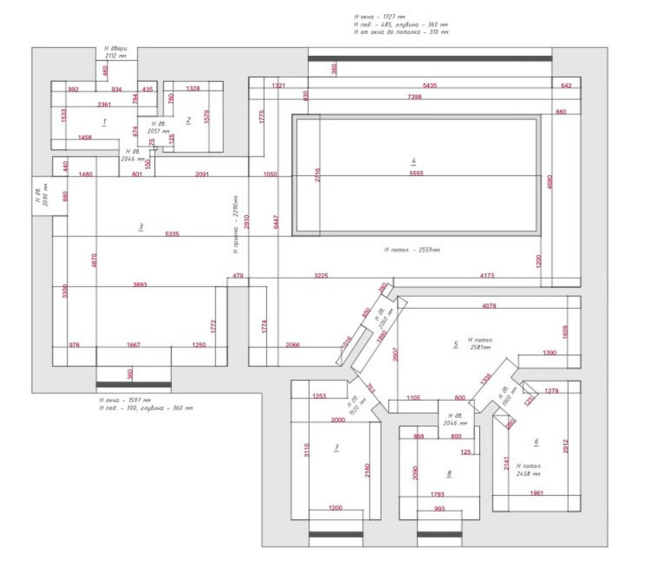
План
| Комната |
Было |
Стало |
| Общая площадь |
89,7 м2
|
89,7 м2
|
| Количество комнат |
1 |
1 |
| Высота потолка |
2,7 м
|
2,7 м
|
| Весь объект |
– |
89,7 м2 |
| Кухня |
– |
19,6 м2 |
| Душевая |
– |
10,3 м2 |
| Сауна |
– |
5,8 м2 |
| Хаммам |
– |
5,4 м2 |
| Техкомната |
– |
3,7 м2 |
| Бассейн |
– |
39,2 м2 |
| Санузел |
– |
2,1 м2 |
| Прихожая |
– |
3,6 м2 |
Редакция предупреждает, что в соответствии с Жилищным кодексом РФ требуется согласование проводимых переустройств и перепланировок.
Материалы и цвета
Весь объект
- Стены: декоративная штукатурка, краска San Marco
- Потолки: натяжные Saros Design
- Лепнина: «Европласт»
- Двери: Sofia
- Мебель: журнальные столики и пуф в прихожей Textura House
- Текстиль: шторы и подушки Textura House
- Ковры: kover.ru
- Электрофурнитура: Werkel
Кухня
- Пол: керамогранит Navarti Ceramica
- Подоконник(и): керамогранит Italon
- Мебель: гарнитур New Line, обеденный стол сделан на заказ, стулья Deep House
- Сантехника: смеситель Omoikiri
- Бытовая техника: Kuppersberg, Midea
- Декор: Helen Loom, панно — авторы проекта, цветы Garden N
- Освещение: люстра Sevirika, Ирина Гурьянова
Душевая
- Стены и пол: плитка FAP Ceramiche, Monocolors, ColiseumGres, мозаика Kerama Marazzi
- Мебель: тумба Dantone Home
- Сантехника: душевая система Tres Therm-Box
Хаммам
- Стены и пол: керамогранит Italon, мозаика NSmosaic, Art&Natura Mosaico
Бассейн
- Пол: керамогранит Navarti Ceramica, борты бассейна — керамогранит Expo White
- Мебель: диван и журнальные столики сделаны на заказ
- Декор: гобелен Helen Loom, картина «Сухоцвет» — Маргарита Каманина (автор проекта)
- Освещение: бра Odeon, подвесные лампы — винтаж
Санузел
- Пол: плитка ABK Ceramiche
- Стены: плитка Dual Gres, обои Architector
- Мебель: тумба New Line
- Сантехника: унитаз Jacob Delafon
- Зеркало: сделано на заказ
- Освещение: потолочный светильник Delight Collection, бра Odeon
Прихожая
- Пол: керамогранит Mainzu
- Входная дверь: «Гардиан»
- Мебель: шкаф и зеркало New Line (на заказ)
- Освещение: подвесная люстра Perles en bois
Цвета
-
Мебель
-
Стены
-
Мебель
-
Мебель
-
Мебель
Авторы
Если это ваш проект, пожалуйста, свяжитесь с нами по адресу
ivd@burda.ru, указав в письме ссылку на проект.
Пока комментариев нет. Начните обсуждение!