Квартира для родителей

3-комнатная • 70м² • Санкт-Петербург • ЖК Цивилизация • 2024 • 15.05.2025
Ксения Гузий Дизайнер

Квартира подарок от сына его родителям

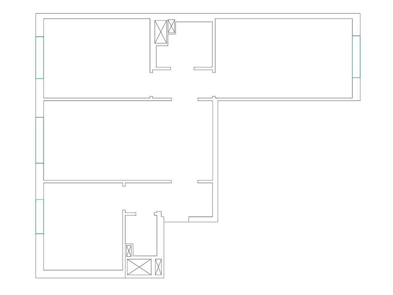
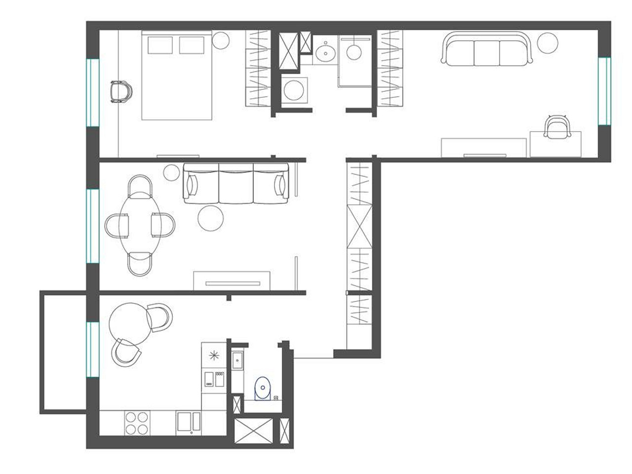
План
Комната Было Стало
Общая площадь 70 м2 70 м2
Количество комнат 3 3
Редакция предупреждает, что в соответствии с Жилищным кодексом РФ требуется согласование проводимых переустройств и перепланировок.
Авторы
Если это ваш проект, пожалуйста, свяжитесь с нами по адресу ivd@burda.ru, указав в письме ссылку на проект.
Современный стиль Квартира 3-комнатная
Комментарии (0)

Пока комментариев нет. Начните обсуждение!

Похожие перепланировки