Винтаж в новостройке! Очаровательная однушка 39 кв. м, в которой уместили все
Заказчики и задачи
Эта квартира в Подмосковье предназначалась для сдачи в аренду. К дизайнеру Светлане Клепко хозяева обратились с запросом создания интерьера с нуля. «Перед созданием планировочного решения мы составили портрет потенциального заказчика. Это мог быть один или два человека, активные, открытые к неординарности цветового решения, наличию старинной мебели в интерьере. Так и вышло, сейчас квартиру арендует молодая пара, увлеченная спортом, ПП и путешествиями», — делится дизайнер.
Смотрите румтур с этим проектом.
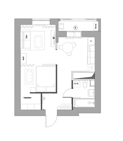
Планировка
Квартира сдавалась от застройщика «в бетоне», поэтому планировку делали с нуля. Кухню и ванную расположили в отведенных зонах, в комнате же удалось выделить и гостиную, и спальню, и гардеробную. Спальня при желании отделяется от гостиной светонепроницаемыми шторами. Гардеробная изолирована. Кухню от гостиной решили не отделять дверью, сделали широкий проем, чтобы пространство казалось просторнее.
Отделка
В отделке стен использовали краску. На пол уложили ламинат. В квартире скомбинировали нежный сливочный с зеленым цветом, терракотовыми и деревянными акцентами. В зеленый покрасили стены прихожей, стену за диваном, а для стены за изголовьем кровати в спальне выбрали обои в зеленых тонах с растительным рисунком.
В ванной комнате тоже использовали зеленую краску — ее сочетали со светлой мелкоформатной плиткой, уложенной в «мокрых» зонах. На полу в ванной комнате и прихожей — плитка с черно-белым геометрическим узором, которая напоминает «ковер» и является акцентом с ретронастроением.
Мебель и системы хранения
Маленькую квартиру не заставляли мебелью, при этом предусмотрели все необходимое. В прихожей — вешалка с крючками, пуф с полками для обуви и отдельно стоящий шкаф на ножках.
Вся сезонная и повседневная одежда, белье должны уместиться в гардеробной комнате. При этом для мелочей в гостиной предусмотрели тумбу под телевизор. Комод, который стоит у дивана — тот самый, винтажный, ставший вдохновением и отправной точкой для дизайнера. «Комод я нашла у реставратора в Ярославле. Именно вокруг него закрутился весь интерьер. У комода сохранился работающий замок и два родных ключа. Считаю это большой удачей! Сейчас он — изюминка всей квартиры и занимает почетное место в гостиной», — отмечает Светлана.
Диван подобрали раскладной, на случай, если у жильцов могут остаться гости. Высокий подоконник специально сделали широким, чтобы использовать его как дополнительную функциональную поверхность, например, в качестве рабочего стола (на откос вывели розетки).
Кухонный гарнитур получился компактным, но функциональным. В нижние шкафы встроены посудомоечная машина и СВЧ-печь. Верхние шкафы — невысокие, со стеклянными фасадами и предназначены для красивой посуды, которую можно подсветить.
В ванной комнате подвесили тумбу с выдвижными ящиками. Для стиральной машины нашлось место рядом с унитазом.
Освещение
Сценарии света разнообразны. На потолке кухни монтирован трековый светильник, который равномерно освещает все помещение. В гостиной — люстра в винтажном стиле. В спальне — бумажный абажур на шнуре. Обязательно продуманы дополнительные сценарии света: торшер у обеденного стола и подсветка кухонных шкафчиков, настольная лампа на комоде в гостиной, бра над тумбочкой в спальне. В прихожей есть подсветка зеркала, а в ванной комнате — бра над зеркалом.






Пока комментариев нет. Начните обсуждение!