Стильная однушка с функциональной планировкой

1-комнатная • 39м² • ЖК «Центральный» • 01.11.2025

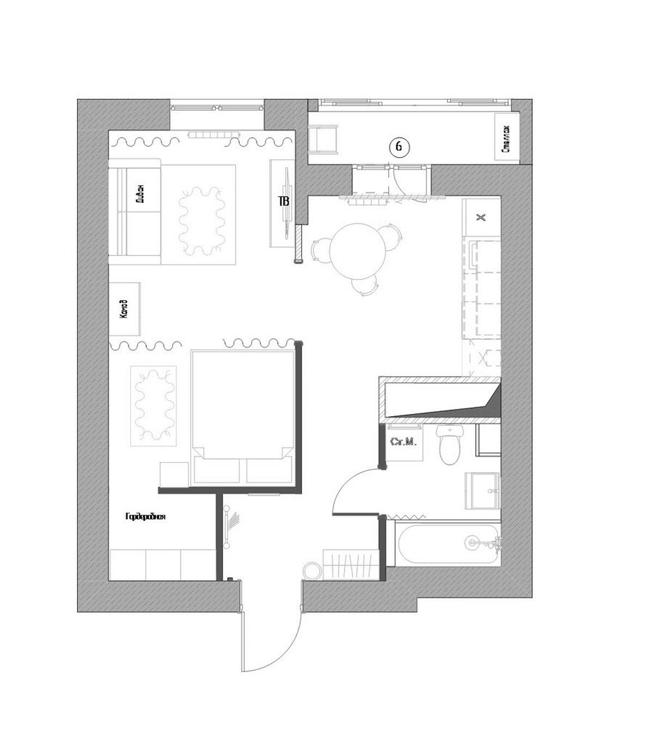
Реализованный проект однокомнатной квартиры площадью 39 м2

В планировке предусмотрели полноценную кухню, гостиную, спальню, которую можно изолировать, и даже гардеробную. А вдохновением для концепции интерьера послужил винтажный румынский комод. Читать далее...

План
Комната Было Стало
Общая площадь 39 м2 39 м2
Количество комнат 1 1
Высота потолка 2,7 м 2,7 м
Весь объект 39 м2
Кухня 9 м2
Гостиная 10 м2
Спальня 7,2 м2
Гардеробная 2,2 м2
Лоджия 2,2 м2
Ванная комната 4,2 м2
Прихожая 4,2 м2
Редакция предупреждает, что в соответствии с Жилищным кодексом РФ требуется согласование проводимых переустройств и перепланировок.
Материалы и цвета
Цвета
  • Стены
  • Мебель
  • Текстиль
  • Мебель
  • Мебель
Авторы
Если это ваш проект, пожалуйста, свяжитесь с нами по адресу ivd@burda.ru, указав в письме ссылку на проект.
Современный стиль Квартира Желтые Оранжевые Красные Зелёные 1-комнатная
Комментарии (0)

Пока комментариев нет. Начните обсуждение!