В этой хрущевке хочется жить! Потрясающая переделка семейной двушки 45 кв. м (фото до и после)
Заказчики и задачи
Владелица этой квартиры в типовом доме 1968 года постройки в Санкт-Петербурге получила ее в наследство. Хозяйка обратилась к дизайнеру Кристине Московченко с запросом на преображение пространства для будущей сдачи в аренду.
«Концепция проекта — доказать, что квартиру можно подготовить для сдачи в аренду
удаленно (заказчица живет за границей, я — в Москве, объект находится в Санкт-Петербурге), сохранив семейную историю и не потратив состояние на ремонт», — рассказывает Кристина. Будущих арендаторов определили как людей, ценящих домашних уют и способных увидеть в винтажной мебели не «старье», а историю и наследие.
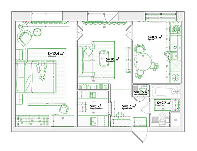
Перепланировка
Изначальная планировка — стандартная для типового дома: две комнаты, компактная кухня, прихожая с кладовками и ванная комната. Дизайнер предложила переработать планировку, чтобы сделать квартиру более уютной. Так, в прихожей выделили отдельную гардеробную. Входы в спальню и кухню сделали из гостиной — комната стала проходной, но квартира приобрела красивую анфиладу. Коридорчик, ведущий на кухню, задействовали под постирочную.
Отделка
Оформление квартиры пошло от…напольной плитки в санузле. Дизайнер выбрала яркую плитку с рисунком, к ней подобрала мелкоформатную плитку бежевого цвета, а к ней — моющуюся бежевую краску. Этот бежевый цвет краски использовали потом на всех стенах квартиры. «Стыковка плитки на стене с покраской проходит через молдинг. Такое решение неслучайно: во-первых, мы избежали резки плитки, использовали только целые плашки (не хватало буквально 2,5 см по вертикали до края ванны), во-вторых, закрыли торец плитки, сделали переход от одного материала к другому плавным», — комментирует Кристина.
Потолок везде натяжной. Это обусловлено и практичностью, и экономией бюджета. В ванной комнате под потолком спрятаны еще и коммуникации. «За потолком спрятан поворот транзитной трубы для водяного полотенцесушителя, срезать ее нельзя было, но мы согласовали с управляющей компанией возможность вывести ее в сантехнический короб, выход этой трубы скрыт ножками тумбы», — рассказывает автор проекта.
В гостиной и спальне сохранили напольный паркет: его отциклевали, заменили испорченные плашки. В прихожей и на кухне был линолеум. Теперь там уложили кварцвинил под темное дерево.
Высота чистового потолка меньше 2,5 метра. Дизайнеру удалось создать видимость большей высоты за счет светлых стен, белого потолка и высоких дверей — выбрали дверные полотна высотой 220 см вместо обычных 200 см.
Радиаторы отопления менять не стали — их закрыли декоративными решетками. В гостиной и спальне отреставрировали бетонные подоконники, а на кухне установили подоконник из того же материала, что и кухонная столешница. Его высоту подняли до уровня кухонной столешницы, чтобы задействовать как дополнительную рабочую поверхность.
Мебель и системы хранения
Заказчица просила сэкономить, поэтому дизайнер не рассматривала встроенную мебель на заказ. В прихожей организовали хранение с помощью гардеробной — там есть место и для верхней и повседневной одежды, и полки, и выдвижные корзины, а также место для пылесоса.
При входе повесили крючки для курток, пальто. Вместо консоли поставили нижнюю часть старого трюмо — оно заменило тумбу для мелочей и обуви.
Шкаф для стиральной машины тоже получился бюджетным. Полки нарезали в магазине из ДСП, купили готовые жалюзийные двери, ручки нашли на сайте перепродажи вещей. Внутри шкафа предусмотрели розетку на случай, если жильцы захотят поставить сушильную машину.
На кухне — линейный гарнитур со встроенным холодильником и шкафом-колонной со встроенным духовым шкафом, а также полками и ящиками для хранения. Над духовкой спрятана микроволновая печь. В нижний шкаф встроена узкая посудомоечная машина, от верхних шкафов отказались, заменив их открытой полкой и хранением в колонне. Также в нижних шкафах достаточно места для хранения в выдвижных ящиках.
В гостиной поставили готовые книжные шкафы — заранее построили нишу по размеру этих шкафов. Хозяйка оставила для жильцов книги, которые были в квартире. Нижняя часть шкафов закрытая, для разных мелочей, чтобы не создавать визуальный хаос. Подобрали компактный раскладной диван.
В спальне — двуспальная кровать; винтажные тумбочки и шкаф — из гарнитура «Йоханна III» производства ГДР.
Над рабочим столом разместили фетровую доску, которую можно использовать для крепления заметок. Напротив кровати — стеллаж из ИКЕА, который поставили на ножки. «Простой прием, который превращает массовый продукт в уникальный предмет», — говорит Кристина.
Для ванной комнаты выбрали тумбу под раковину с выдвижными ящиками и сделали шкафчик для хранения над инсталляцией унитаза.
Освещение
Сценарии освещения разнообразны. Дизайнер использовала винтажные светильники: бра в ванной комнате, подвес над трюмо в прихожей, люстра над обеденным столом. Настольная лампа в спальне досталась от бабушки, как и люстра на кухне. Также есть точечные потолочные светильники для яркого вечернего освещения и люстры в спальне и гостиной — для приглушенного вечернего. Над рабочей поверхностью кухни разместили пару бра.









Пока комментариев нет. Начните обсуждение!