С заботой о дочери: элегантная и уютная квартира 76 кв. м для молодой девушки
Заказчики и задачи
К дизайнеру Анне Макайкиной обратились ее давние заказчики — семья, чью квартиру Анна оформляла почти 20 лет назад. Их дочь выросла, поступила в университет, и требовалось обустроить для нее квартиру в Москве — место, где она будет учиться, отдыхать после занятий и проводить время с друзьями и родителями, которые приедут в гости. Родители живут в другом городе, поэтому проект согласовывали удаленно — а материалы и мебель выбирали во время их визитов в столицу. «Мы с особым трепетом и ответственностью взялись за создание первого самостоятельного жилья для девушки — пространства, которое должно было стать не просто функциональным, но и настоящим отражением ее личности, мечт и увлечений», — рассказывает Анна.
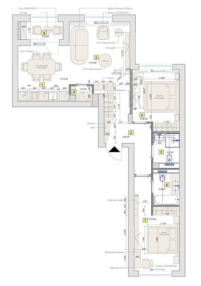
Планировка
Квартиру застройщик сдал с частично готовой отделкой, которую решили сохранить, поэтому и о перепланировке речи не шло. Здесь просторная кухня, объединенная с гостиной, с лоджией и маленькой кладовкой; две спальни, одна из которых со своей ванной комнатой, и гостевой санузел. Застройщик предусмотрел и готовые ниши для встройки шкафов в спальнях.
Отделка
Как и было сказано выше, квартиру приобрели с отделкой от застройщика. И менять ее не хотели — на полу оставили паркет, сохранили двери. Для отделки стен выбрали краску светлого бежевого цвета. «Мы выбрали ее за глубину цвета и бархатистую, матовую текстуру. Она ловит и мягко рассеивает свет, создавая идеальный обволакивающий фон», — отмечает дизайнер. Для того чтобы разнообразить гладкую отделку, использовали молдинги, настенные гипсовые панели и бесшовные обои-панно: с изображением туманного леса в спальне дочери и с рисунком одуванчиков — в гостевой комнате для родителей.
В двух санузлах продолжили идею природной эстетики: крупноформатная плитка под мрамор стала фоном, к ней подобрали мебельные фасады теплого бежевого оттенка, а деликатными акцентами выступили латунные детали: смесители, фурнитура, полотенцесушители.
Мебель и системы хранения
Анна продумала вместительные системы хранения. Сразу при входе — настенная панель с крючками для верхней одежды и сидение-полка. Полку сделали угловой, чтобы визуально расширить пространство при входе. Сразу после вешалки — встроенный шкаф для верхней одежды и обуви, который, в свою очередь, переходит во встроенный в нишу стеллаж в гостиной.
В самой гостиной сформировали удобную диванную группу: диван и кресло в светлой кремовой обивке, пара журнальных столиков разного размера и тумба под телевизор как дополнительное место хранения.
Кухонный гарнитур необычный: фасады нижних шкафов, антресолей и колонн с техникой выполнены в теплом оттенке кофе с молоком, а дверцы верхнего ряда шкафов — в бронзово-золотом финише, который отражает солнце и искусственный свет.
Еще одной фишкой гарнитура стал фартук с подъемной панелью, за которой спрятаны полки. Это позволяет сохранить столешницу чистой и соблюдать порядок.
В спальнях — встроенные шкафы для одежды, в комнате для девушки предусмотрели еще и систему хранения для книг и учебных принадлежностей, а также письменный стол с выдвижными ящиками и подвесную тумбу-консоль для хранения разных мелочей.
В ванной комнате молодой хозяйки — вместительная тумба под раковиной с двумя выдвижными ящиками и встроенные полки за стеклом для разных мелочей.
В спальне для родителей шкаф разделен на женскую и мужскую части. Но главным героем комнаты стала кровать с деревянным основанием и мягким изголовьем.
Узкая консоль под телевизор и стеллаж с туалетным столиком расположили напротив кровати.
В гостевом санузле решили сделать душевую вместо ванны, чтобы сэкономить место. Здесь такая же тумба, как и в ванной, но меньшего размера, а раковина интегрирована в столешницу из камня. Накладные полки в душевой и рядом с раковиной предназначены для хранения разных нужных средств, а над инсталляцией унитаза предусмотрен шкафчик.
Освещение
Дизайнер разработала гибкие сценарии освещения для любого времени суток и настроения: основной свет диммируется, скрытая подсветка играет не только функциональную роль, но и декоративную, как, например, в случае с панелями на кухне. Дополнительные источники освещения разные: настольные лампы, настенные бра. Изюминкой освещения стала люстра над обеденным столом на кухне, выполненная из фарфора.







Пока комментариев нет. Начните обсуждение!