Реализованный проект двухкомнатной квартиры площадью 76,5 м2
Эта квартира предназначена для девушки-студентки, и заботливые родители хотели создать для нее пространство, где было бы комфортно учиться и отдыхать, наслаждаясь самостоятельной жизнью. Читать далее...
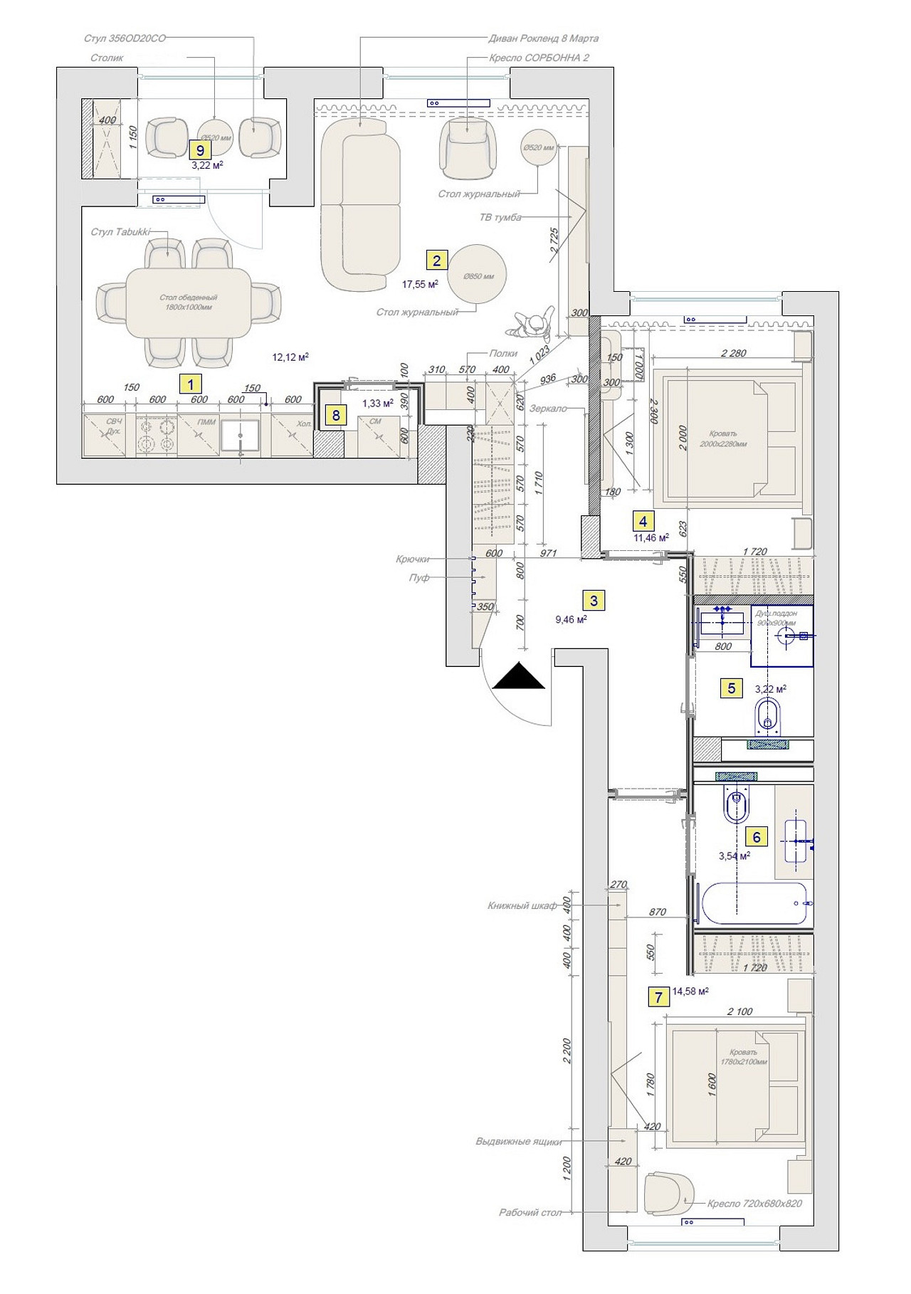
План
| Комната |
Было |
Стало |
| Общая площадь |
78,8 м2
|
76,5 м2
|
| Количество комнат |
2 |
2 |
| Высота потолка |
3 м
|
3 м
|
| Весь объект |
– |
12,1 м2 |
| Кухня |
– |
12,1 м2 |
| Гостиная |
– |
17,6 м2 |
| Спальня |
– |
14,6 м2 |
| Лоджия |
– |
3,2 м2 |
| Хозкомната |
– |
1,3 м2 |
| Ванная комната |
– |
3,5 м2 |
| Гостевая спальня |
– |
11,5 м2 |
| Гостевой санузел |
– |
3,2 м2 |
| Прихожая |
9,5 м2 |
– |
Редакция предупреждает, что в соответствии с Жилищным кодексом РФ требуется согласование проводимых переустройств и перепланировок.
Материалы и цвета
Весь объект
- Стены: краска Loymina
- Текстиль: ателье «Эттель»
Кухня
- Стены: гипсовые панели Artpole
- Мебель: гарнитур Giulia Novars, обеденный стол Cazarina Interiors, стулья «Лиосте»
- Декор: ваза Zara Home
- Освещение: люстра Sagarti
Гостиная
- Мебель: шкаф, стеллаж и ТВ-тумба Giulia Novars, кресло Cazarina Interiors, журнальные столики Misura Emme, диван — фабрика «8 марта»
- Декор: ваза Cyan Design, статуэтка Uttermost
- Ковер: Art De Vivre
- Освещение: бра Hudson Valley Lighting
Спальня
- Стены: панно Fresq
- Мебель: кровать, шкаф, рабочее место и прикроватные тумбочки — мастерская «Кое-что хорошее», кресло Giorgetti
- Освещение: бра Visual Comfort
Лоджия
- Мебель: журнальный столик Misura Emme, стул «Лиосте», корпусная сделана на заказ
Ванная комната
- Мебель: сделана на заказ
- Сантехника: Vitra, смесители Boheme
Гостевая спальня
- Стены: панно Fresq
- Мебель: кровать Giorgetti, шкаф, прикроватные тумбочки и туалетный столик — мастерская «Кое-что хорошее», стул Baker
- Декор: панно «Связь поколений» — Светлана Поманская
Цвета
-
Стены
-
Мебель
-
Стены
-
Пол
-
Шторы
Авторы
Если это ваш проект, пожалуйста, свяжитесь с нами по адресу
ivd@burda.ru, указав в письме ссылку на проект.
Пока комментариев нет. Начните обсуждение!