Из старой квартиры — в новую! Потрясающий интерьер 80 кв. м для семейной пары (фото до и после)
Заказчики и задачи
Эта необычная квартира расположена в Новосибирском Академгородке в доме 1961 года постройки. Семейная пара приобрела жилье у семьи, которая жила там со времени постройки дома, требовалось глобальное преображение квартиры с учетом требований современного комфорта. Хозяйку дизайнеры Анастасия Рыбина и Елена Дьяконова описывают как яркую восточную девушку, по профессии — генетик. Хозяина — как стойкого стабильного мужчину, чья профессия связана с нефтедобычей.
«Все в квартире было пропитано атмосферой тех годов, повсюду были винтажные предметы интерьера, мы находили разные вырезки из газет на стенах, поклеенных поверх высохших досок, в каких-то уголках находились старые пластинки, — вспоминают авторы проекта. — Нам хотелось добиться синергии пространства внутри дома и снаружи. Также мы постарались добавить яркие акценты, которые раскрывают характер заказчиков и характер самого Академгородка: яркий, уютный и невероятно самобытный».
Перепланировка
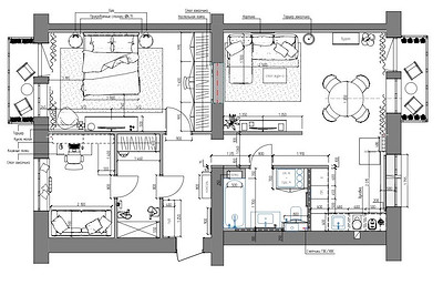
Изначальную планировку — три комнаты с небольшой кухней, раздельными ванной и туалетом, двумя балконами — изменили в соответствии с потребностями хозяев. Кухню объединили с комнатой, организовав просторную кухню-гостиную. Ванную и туалет объединили и увеличили за счет коридора. Одну из комнат разделили: сделали проходную кладовую и изолированный кабинет у окна.
Отделка
Для отделки стен выбрали обои с эффектом окрашенных стен — это позволило сэкономить на трудоемкой подготовке стен под покраску. Среди однотонных обоев выбрали сложные оттенки: молочный бежевый в кухне-гостиной и коридоре, глубокий синий — в прихожей, приглушенный зеленый — в спальне и светлый серый в кабинете.
В ванной комнате использовали обои с рисунком на стене над раковиной (том участке, куда не должна попасть вода). «Это роскошные обои с листьями от английского бренда. Было необходимо сделать интересный акцент, но площадь была небольшой, что позволило использовать дорогую отделку», — комментируют дизайнеры.
Обои в ванной комнате скомбинировали с мелкоформатной плиткой бежевого цвета, которую уложили в зоне ванны и над раковиной. Остальные стены покрасили желтой краской. На пол уложили серо-голубую плитку с ритмичным рисунком.
Геометрические паттерны выбрали и в укладке плитки на полу кухни (бело-сливовые квадраты), а также в прихожей — белая плитка с черными квадратными элементами. Для отделки пола в комнатах использовали кварцвинил, уложенный «елочкой». С помощью белой краски и молдинга имитировали высокий напольный плинтус, что вместе с высокими карнизами и потолочными розетками помогло добавить интерьеру ноток современной классики.
Мебель и системы хранения
В прихожей отказались от шкафа, так как там есть вход в хозяйственный блок с системой хранения, где можно повесить верхнюю одежду. Там же организовано и место для хозяйственного хранения. У входной двери поставили банкетку с местом для хранения обуви, а также консоль для мелочей.
В гостиной поставили красивый буфет арочной формы (арки встречаются в разных комнатах по всей квартире, это и зеркало в прихожей, и дверной проем на кухню, а также ниша шкафа в спальне), напротив дивана в насыщенной бордовой обивке — тумба под телевизор.
Конструкция кухонного гарнитура — угловая. От верхних шкафов отказались, но компенсировали объем хранения высокими шкафами-колоннами, куда встроены холодильник, посудомоечная машина.
Вместо стандартного подоконника сделали версию барной стойки (или дополнительную рабочую поверхность).
В спальне — встроенный шкаф с нишей под рабочий стол.
Напротив кровати — комод для белья, а в углу нашлось место для кресла.
В кабинете — диван и рабочий стол с подвесными полками.
Батарею спрятали в деревянном коробе, подоконник тоже выполнили под дерево и задействовали под зону отдыха: положили мягкий матрас и подушки.
В ванной комнате вместо стандартной тумбы под раковину поставили консольный столик с одним выдвижным ящиком. Над инсталляцией унитаза — шкафчик со скрытыми коммуникациями, также в ванной комнате поместился хозяйственный шкаф со стиральной и сушильной машинами и системой очистки воды.
Освещение
Дизайнеры продумали разные сценарии света: от точечных светильников до декоративных бра и люстр. Кроме современных светильников выбирали и ретромодели, например, подвесы в прихожей.










Пока комментариев нет. Начните обсуждение!