Гармония с собой: квартира 70 кв. м для семьи с заделом на будущее


Заказчики и задачи
Владельцы квартиры — молодая семейная пара. Оба работают из дома. К дизайнеру Анне Мальцевой семья обратилась с запросом на создание функциональной квартиры с заделом на увеличение семьи в будущем. «Было необходимо вписать все, что нужно клиентам (общее пространство и возможность уединиться каждому с отдельным рабочим местом), учитывая сложную архитектуру квартиры с малым количеством прямых углов», — говорит Анна.
Перепланировка
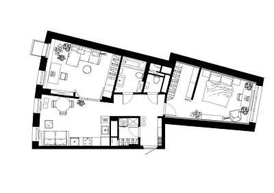
Изначальная планировка непростая — в комнатах почти нет прямых углов. Застройщик предусмотрел две спальни, кухню, два санузла и гардеробную. Анна предложила превратить второй санузел, который расположен у входа, в постирочную-гардеробную. Существующую гардеробную увеличили за счет коридора и сделали ванной комнатой. В спальне выделили гардеробную.
Отделка
Дизайнер работала в концепции скандинавского минимализма: нейтральные цвета, акцент на натуральных материалах и фактурах. Для стен выбрали светлую краску. Акцентировали стены по бокам от кровати в спальне и за диваном в гостиной-кабинете с помощью деревянных панелей. На пол уложили инженерную доску, подобрав цвет под панели. Кухонный гарнитур выделили рядом напольной плитки светлого серого цвета.
В прихожей использовали для пола керамогранит под мрамор, его же уложили в гардеробной-постирочной. В ванной комнате скомбинировали несколько видом керамогранита. На стенах — светлый серый, зона ванны выделена графитовым керамогранитом под камень. А на полу уложена мозаика из мелкоформатных шестиугольников.
В санузле же стены решили покрасить. На полу — тоже мозаика, но уже черного цвета. И все эти фактуры сочетаются со светлым деревом.
«Основная цветовая палитра нейтральная: мягкие бежевые и серые оттенки, которые создают ощущение легкости. Чтобы избежать стерильности, я добавила цветовые акценты в черных тонах, текстуры натурального дерева и обилие зеленых растений. В спальне и кабинете на стенах — вертикальные деревянные панели. Они вносят тепло и ритм, формируют гармоничный фон», — комментирует Анна.
Мебель и системы хранения
Автор проекта продумала системы хранения не только с учетом имеющихся вещей у молодой семьи, но и с заделом на будущее. Так, в прихожей встроен неглубокий шкаф с зеркальными фасадами, а у входа — система хранения с открытой полкой, заменяющей консоль, и ящиками для обуви.
Основное хранение верхней одежды предполагается в гардеробной-постирочной, куда можно зайти из прихожей.
В спальне — гардеробная с полками, рейлами для одежды на плечиках и выдвижными ящиками. От комнаты гардеробная отделяется реечной перегородкой с дверью.
Кровать подобрана с мягким изголовьем и в обивке из серой фактурной ткани. По бокам — одинаковые тумбочки, а напротив — подвесная консоль с выдвижными ящиками. У окна оставили место для рабочего стола.
Гостиная-кабинет в будущем может стать детской комнатой. Поэтому там предусмотрели встроенный шкаф для одежды, а также книжный шкаф-витрину. Цвет витрины сочетается с деревом на полу и панелями на стене.
У окна расположен рабочий стол, а в нише, которая образовалась из-за наличия несущих колонн, организовали телевизонную зону с местом для хранения книг и разных мелочей.
На кухне организовали мини-гостиную зону, площадь это позволяла. Сам кухонный гарнитур сделали угловым, с верхними шкафами до потолка и секцией открытых полок. В дизайне гарнитура поддержали ту же концепцию с акцентами из дерева: колонна со встроенным холодильником и открытые полки выполнены под цвет деревянного пола.
В ванной комнате удалось уместить не только необходимую тумбу под раковину, но также шкаф для хранения полотенец, хозяйственных вещей, а еще стеллаж с полками.
Освещение
Свет продуман так, чтобы можно было включать разные светильники в зависимости от необходимости и настроения. На потолке — точечные светильники и треки. В кухне-гостиной и кабинете также предусмотрены центральные потолочные светильники. И есть разные дополнительные сценарии света: бра у кровати и над диваном на кухне, торшер у дивана в кабинете, бра в прихожей.
Пока комментариев нет. Начните обсуждение!