Квартира для флиппинга с элегантным светлым интерьером

3-комнатная • 62,1м² • ЖК Ever • 11.11.2025

Реализованный проект трехкомнатной квартиры площадью 62,1 м2

Дизайнер предложила перепланировку, чтобы сделать квартиру функциональнее и привлекательнее для будущих покупателей. Читать далее...

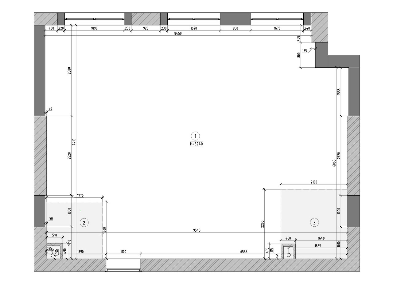
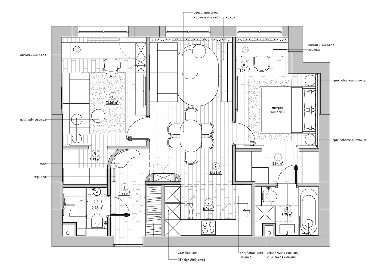
План
Комната Было Стало
Общая площадь 62 м2 62,1 м2
Количество комнат 2 3
Весь объект 62,1 м2
Кухня 6,1 м2
Гостиная 15,7 м2
Спальня 11,3 м2
Гостевая комната 12,7 м2
Гардеробная 1 2,2 м2
Гардеробная 2 3,7 м2
Ванная комната 3,8 м2
Санузел 2,4 м2
Прихожая 4,2 м2
Редакция предупреждает, что в соответствии с Жилищным кодексом РФ требуется согласование проводимых переустройств и перепланировок.
Материалы и цвета
Весь объект
  • Стены и пол: керамогранит Pamesa
  • Фартук: плитка Equipe
  • Мебель: пуф в прихожей и диван в кабинете divan.ru, стулья на кухне Stool Group
  • Декор: панно над диваном в гостиной — Дара Авесуг
  • Ковры: divan.ru, «Ами Ковры»
  • Освещение: подвесы в кабинете Maytoni, бра в прихожей Crystal Lux
Авторы
Если это ваш проект, пожалуйста, свяжитесь с нами по адресу ivd@burda.ru, указав в письме ссылку на проект.
Современная классика Квартира Оранжевые Серые Чёрные и белые 3-комнатная
Комментарии (0)

Пока комментариев нет. Начните обсуждение!