Светлая трешка с голубыми акцентами для семьи в Москве

3-комнатная • 84м² • ЖК «Холланд Парк» • 27.04.2024
Юлия Шипелова Дизайнер

Реализованный проект трехкомнатной квартиры площадью 84 м2

Дизайнер создала пространство, где каждому члену семьи есть место, и все сделано для комфорта. Читать далее...

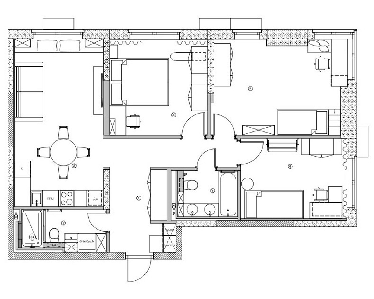
План
Комната Было Стало
Общая площадь 86,5 м2 84 м2
Количество комнат 3 3
Высота потолка 3 м 3 м
Весь объект 84 м2
Кухня-гостиная 20,7 м2
Спальня 13,1 м2
Детская 17,1 м2
Гостевая спальня 11,9 м2
Гостевой санузел 4,8 м2
Ванная комната 3,9 м2
Прихожая 12,5 м2
Редакция предупреждает, что в соответствии с Жилищным кодексом РФ требуется согласование проводимых переустройств и перепланировок.
Материалы и цвета
Весь объект
  • Стены: краска Little Greene
  • Двери: «Академия дверей»
  • Декор: «Иззи Декор»
  • Ковры: Dovlet House
  • Освещение: Maytoni, Barcelona Design
  • Электроустановочные изделия: Schneider Electric
Авторы
Юлия Шипелова Дизайнер
Если это ваш проект, пожалуйста, свяжитесь с нами по адресу ivd@burda.ru, указав в письме ссылку на проект.
Экостиль Квартира Синие Зелёные Серые Чёрные и белые 3-комнатная
Комментарии (0)

Пока комментариев нет. Начните обсуждение!