Двое и Франк

Дом • 250м² • Орел • • 2017 • 03.07.2022

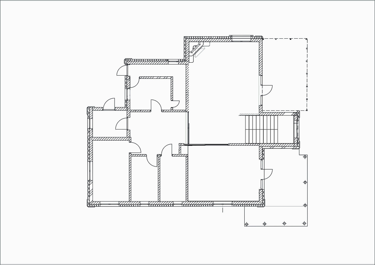
Частный дом в Орле площадью 250 м2. На первом этаже, помимо основных помещений, находится терраса и выход в зимний сад. На втором этаже – две спальни, гардероб и ванная комната. Много внимания было уделено созданию комфорта не только для хозяев, но и для их питомцев, главный из которых – французский бульдог Франк. Этим был обусловлен выбор некоторых решений на первом этаже: внутри всех открытых проемов первого этажа (между кухней и коридором, между холлом и гостиной) установили раздвижные стеклянные перегородки с рисунком, повторяющим рисунок дверей. Поэтому же на первом этаже использовали виниловое напольное покрытие вместо паркета и ковры из сизали. Интерьер всего дома решен в единой гамме, разнообразие вносят не только цветовые акценты, но и различные алгоритмы взаимодействия цвета, текстуры поверхностей и фактуры всех элементов интерьера. Относительная колористическая нейтральность основных плоскостей является фоном для тщательно выбранных предметов обстановки, подчеркивая их композиционную значимость.

План
Комната Было Стало
Общая площадь 250 м2 250 м2
Жилая площадь 100 м2 100 м2
Количество комнат 4 4
Редакция предупреждает, что в соответствии с Жилищным кодексом РФ требуется согласование проводимых переустройств и перепланировок.
Авторы
Если это ваш проект, пожалуйста, свяжитесь с нами по адресу ivd@burda.ru, указав в письме ссылку на проект.
Современная классика Загородный дом 4-комнатная
Комментарии (0)

Пока комментариев нет. Начните обсуждение!