Мечта для жителя мегаполиса: дом 131 кв. м с природным интерьером
Заказчики и задачи
Этот дом предназначен для сдачи в долгосрочную аренду — хозяева построили его по готовому проекту с внутренней отделкой от застройщика. Дизайнера Анну Суслову пригласили для обустройства дома мебелью и декором — чтобы готовый интерьер был привлекателен для потенциальных арендаторов: семьи с удаленной работой и взрослыми детьми или семейной пары.
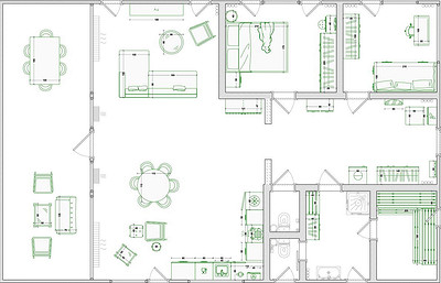
Планировка
Дом — одноэтажный с простой и понятной планировкой: просторная прихожая-холл, откуда двери ведут в две спальни, ванную комнату с сауной и туалетом, второй туалет, а также большая кухня-гостиная прямо по коридору. Из кухни-гостиной можно выйти на просторную террасу с красивыми видами.
Отделка
Застройщик сдал дом с готовой отделкой: стены и потолок отделаны деревом и тонированы в светлые оттенки, полы тоже оформлены деревянными досками.
В просторной ванной комнате квадратной белой плиткой отделаны только стены душевой и за раковиной. На пол уложена плитка в форме шестиугольников под серый бетон.
В туалетах тоже деревянные стены, плитка уложена только на пол.
Мебель и системы хранения
Анна скомбинировала готовые системы хранения и заказные позиции. Исходя из заданной архитектуры дома стремились сделать современное пространство с мебелью простых форм.
Так, в прихожей расположили шкаф (его выполнили на заказ), в котором спрятана стиральная машина. Прямо у двери — обувница и крючки для повседневной верхней одежды, дальше по коридору — комод.
Две комнаты оформили как спальни — одна предназначена для семейной пары, вторая может стать детской, кабинетом или гостевой комнатой. В спальне разместили двуспальную кровать, напротив поставили большой шкаф для одежды. Его купили готовым. У окна также поставили кресло.
Во второй, маленькой комнате — кровать-кушетка с выдвижными ящиками для хранения, рабочий стол и шкаф для одежды.
Кухонный гарнитур изготовили на заказ. От верхних шкафов отказались, чтобы сохранить ощущение свободного пространства, к тому же расположение верхних шкафов ограничивали скошенный потолок и окно. В нижних шкафах встроены духовой шкаф и посудомоечная машина. Холодильник — отдельно стоящий. Дополнительно для посуды предусмотрен шкаф-буфет у входа в кухню-гостиную.
Гостиная зона представлена угловым диваном, журнальным столиком и тумбой. Напротив дивана размещен проектор, поэтому тумба стоит сбоку.
Также в кухне-гостиной есть печка, вокруг которой создали мобильную зону отдыха — кресла и стулья можно легко двигать при необходимости.
В ванной комнате — шкаф с жалюзийными фасадами, его поставили, чтобы спрятать коммуникации и предусмотреть хранение нужных хозяйственных вещей.
Освещение
Сценарии освещения в комнатах разные. В прихожей — ряд подвесных светильников в ретростиле, размещенных в верхней точке потолка. В кухне-гостиной — трековая подсветка гостиной и кухни, в центре комнаты — люстра с абажуром из терракотового стекла, над обеденным столом — отдельный подвесной светильник, у кресла рядом с печью — торшер, а на тумбе в гостиной — настольная лампа. В спальне — центральная потолочная люстра, настольная лампа на тумбочке и торшер-столик у кровати. Во второй комнате — потолочный светильник с четырьмя поворотными лампочками и торшер-бра у кровати. В ванной — центральный потолочный светильник и подсветка зеркала.
Стиль этого проекта — эклектика из элементов сканди, mid-century и винтажа. Натуральное дерево и нейтральная палитра красок в отделке задали хорошую базу, поэтому мебель и детали интерьера выполнены в теплых акцентных цветах: глубокий зеленый, темно-коричневый, терракотовый и охристый. В спальнях отдали предпочтение нейтральной и спокойной серо-бежевой палитре с небольшими акцентами цвета в текстиле, чтобы передать атмосферу отдыха и расслабления. В силу архитектуры дома и обилия панорамного остекления задача по декорированию окон стояла нетривиальная. Самую большую панораму в кухне-гостиной я решила оставить без штор, так как она открывает вид на террасу, вглубь участка и на природу — это одно из главных преимуществ дома, его важно было сохранить. В то же время боковые окна дома выходят на соседние участки, поэтому их решено было обыграть жалюзи и плиссе, пропускающими свет, для создания приватности. В спальнях окна оформлены легким тюлем с натуральной фактурой льна и портьерами из фактурной плотной ткани блэкаут, сшитыми на заказ, в том числе на косой проем.
Материал подготовила
Фото








Пока комментариев нет. Начните обсуждение!