Уютный загородный дом с нотками сканди и эклектики

Дом • 131,1м² • • 17.02.2026

Реализованный проект одноэтажного загородного дома площадью 131,1 м2

В доме царит атмосфера, располагающая к спокойной загородной жизни с современными удобствами. Читать далее...

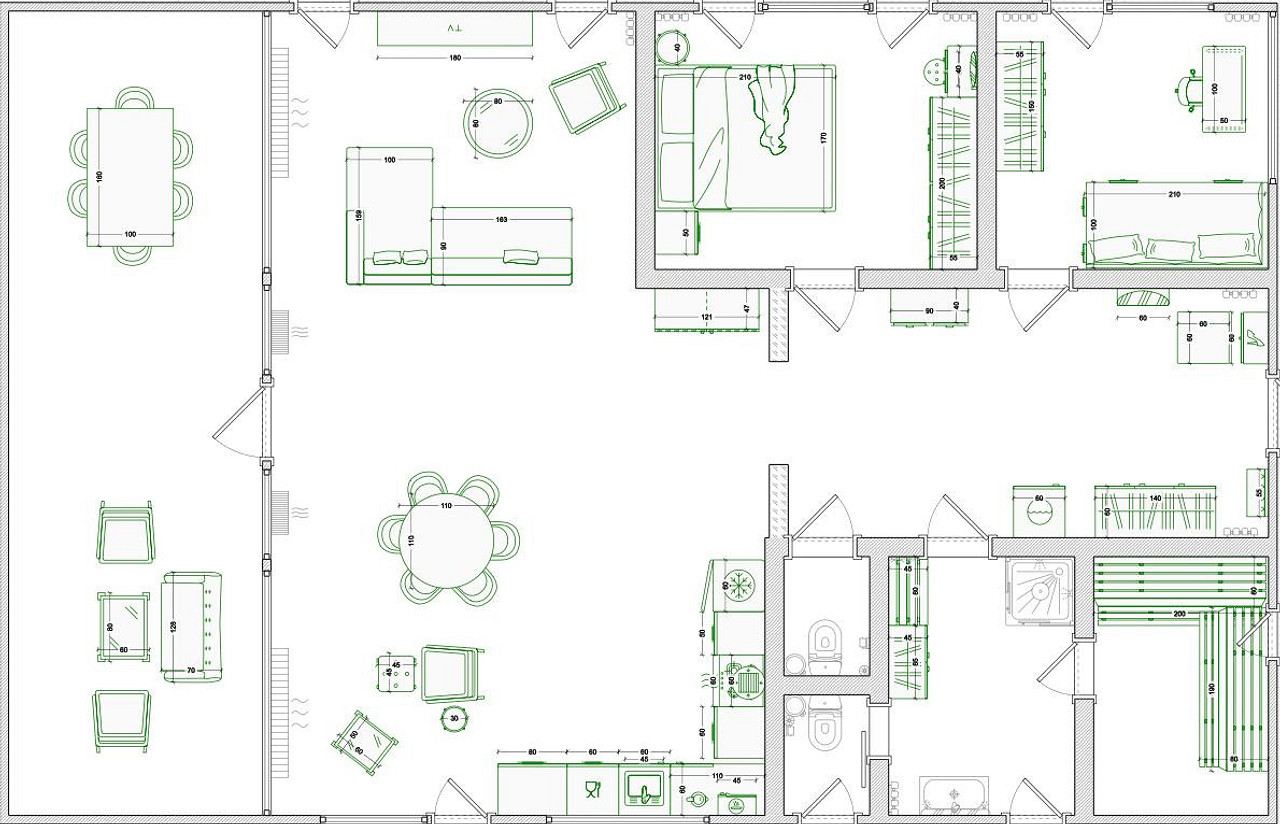
План
Комната Было Стало
Общая площадь 131,1 м2 131,1 м2
Количество комнат 2 2
Весь объект 131,1 м2
Кухня-гостиная 49 м2
Спальня 11,4 м2
Кабинет-детская 9,8 м2
Ванная комната 6,7 м2
Санузел 1,6 м2
Туалет 1,5 м2
Парная 6,3 м2
Прихожая-холл 16,8 м2
Веранда 28 м2
Редакция предупреждает, что в соответствии с Жилищным кодексом РФ требуется согласование проводимых переустройств и перепланировок.
Материалы и цвета
Весь объект
  • Мебель: садовая мебель на веранде, шкаф и стол в гостевой кабинете-детской, диван, кресла, стулья в обеденной зоне и пуф divan.ru, кровать в кабинете-детской, обувница, комод и витрина для посуды — аналоги ИКЕА, столик в гостиной Place it Home, тумба в гостиной PuzzleMebel, стул в кабинете-детской, стулья на веранде и в обеденной зоне Stool Group, тумба у кровати в спальне «Лагом Мебель», обеденный стол Classic Home
  • Техника: Körting, Bosch, Hotpoint
  • Текстиль: ковер и подушки divan.ru
Авторы
Если это ваш проект, пожалуйста, свяжитесь с нами по адресу ivd@burda.ru, указав в письме ссылку на проект.
Скандинавский стиль Загородный дом Желтые Серые Чёрные и белые 2-комнатная
Комментарии (0)

Пока комментариев нет. Начните обсуждение!