Классика в необычных цветах: уютный дом 160 кв. м для семьи с двумя детьми
Заказчики и задачи
Владельцы дома в коттеджном поселке Воронежа — семейная пара с двумя детьми, девочкой восьми лет и годовалым мальчиком. К дизайнеру Екатерине Митрофановой семья обратилась с запросом на интерьер вне времени, комфортный для всех. «Главными пожеланиями хозяйки дома было наличие цвета в интерьере и минимальное использование керамогранита в ванных комнатах, — вспоминает дизайнер. — Нашей главной целью было создать дом, где соединяются эстетика и повседневный комфорт. Не просто красивый интерьер, а место, где семья чувствует себя уютно и свободно. Мы хотели сделать пространство простым и логичным, чтобы оно подстраивалось под ритм семьи с двумя детьми, не теряя ощущение стиля и порядка. И у нас получилось: каждый метр работает на удобство».
Планировка
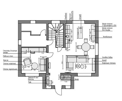
Планировку двухэтажного дома не меняли. На первом этаже расположены кухня-гостиная, кабинет, санузел с котельной. При входе — изолированная от общего пространства прихожая. Второй этаж — со спальнями, там — две детские, хозяйская спальня и ванная комната, также гардеробная.
Отделка
Так как выбрали стиль современная классика, придерживались и определенной отделки: на стенах краска, много лепнины (молдинги, плинтусы, карнизы, потолочные розетки и барельефы из гипса). На пол уложили кварцвинил под дерево.
«Подбор материалов стал одним из ключевых этапов работы — именно через фактуру, цвет и тактильные ощущения раскрывается характер дома. Решения продиктованы стремлением объединить эстетику, функциональность и уложиться в бюджет. Материалы выбраны с прицелом на долговечность и актуальность. Я очень люблю и часто использую в своих проектах гипс. Этот дом не стал исключением», — отмечает Екатерина.
В санузлах, как и хотела хозяйка, комбинировали материалы. Керамогранит уложили только в тех зонах, куда может попасть вода — душевая в санузле на первом этаже, стена над раковинами в ванной на втором, и, конечно, на полу. Остальные стены покрасили, а в ванной использовали даже обои-панно с изображением деревьев.
Хозяйка хотела видеть цвет в интерьере. Дизайнер выбрала пастельную гамму: основой стал бежевый, а акцентами — нежные оттенки зеленого. В мебели использовали и другие цвета: пастельный розовый, мятный, более насыщенный изумрудный цвет и даже достаточно яркий ягодный.
Кабинет хозяина — единственная комната, где много насыщенных оттенков. «Для кабинета хозяина я рискнула предложить глубокий зеленый оттенок, в который мы выкрасили и часть потолка. Этот цвет был выбран не случайно. Именно зеленый снимает напряжение, успокаивает, но не расслабляет. Он отвечает за логическое мышление, концентрацию и планирование. А не это ли нужно в рабочем кабинете», — комментирует дизайнер.
Спальня хозяев стала серой. «Больше всего обсуждений возникло именно по этой комнате. Требовалась атмосфера холодного туманного утра. Авторское гипсовое панно стало намеком на морозное кружево, а чистый серый оттенок стен наполнил комнату свежестью», — добавляет Екатерина.
Мебель и системы хранения
Хранения в доме много: в каждой спальне есть встроенные шкафы, в детских продуманы еще и рабочие места, причем даже в комнате малыша — на будущее. Также есть места для хранения книг, игрушек.
Системы хранения продуманы в общих зонах. В прихожей — шкаф для верхней одежды и изящная консоль для мелочей.
В кухне-гостиной — тумба для разных мелочей. Сама кухня выполнена в параллельной планировке и дополнена островом.
Фасады выбрали в двух цветах: насыщенный зеленый и легкий розовый. Фасады с глухими дверками дополнены стеклянными с подсветкой, за которыми можно хранить красивую посуду и декор.
В кабинете предусмотрено рабочее место и симметричные книжные шкафы по бокам от стола.
В санузле на первом этаже — тумба под раковину. На втором этаже решили сделать две раковины и длинную тумбу под ними, а также неглубокие шкафчики по бокам.
Освещение
В каждой комнате продуманы разнообразные сценарии света. Это и минималистичные потолочные светильники: встроенные линейные или накладные споты. Конечно, стилистика предполагает люстры — красивые модели со стеклянными подвесками размещены над обеденным столом, в прихожей. Предусмотрены бра, подвесные светильники и настольные лампы.








Пока комментариев нет. Начните обсуждение!