Стильная однушка с уютными деталями

1-комнатная • 36,5м² • • 30.01.2026

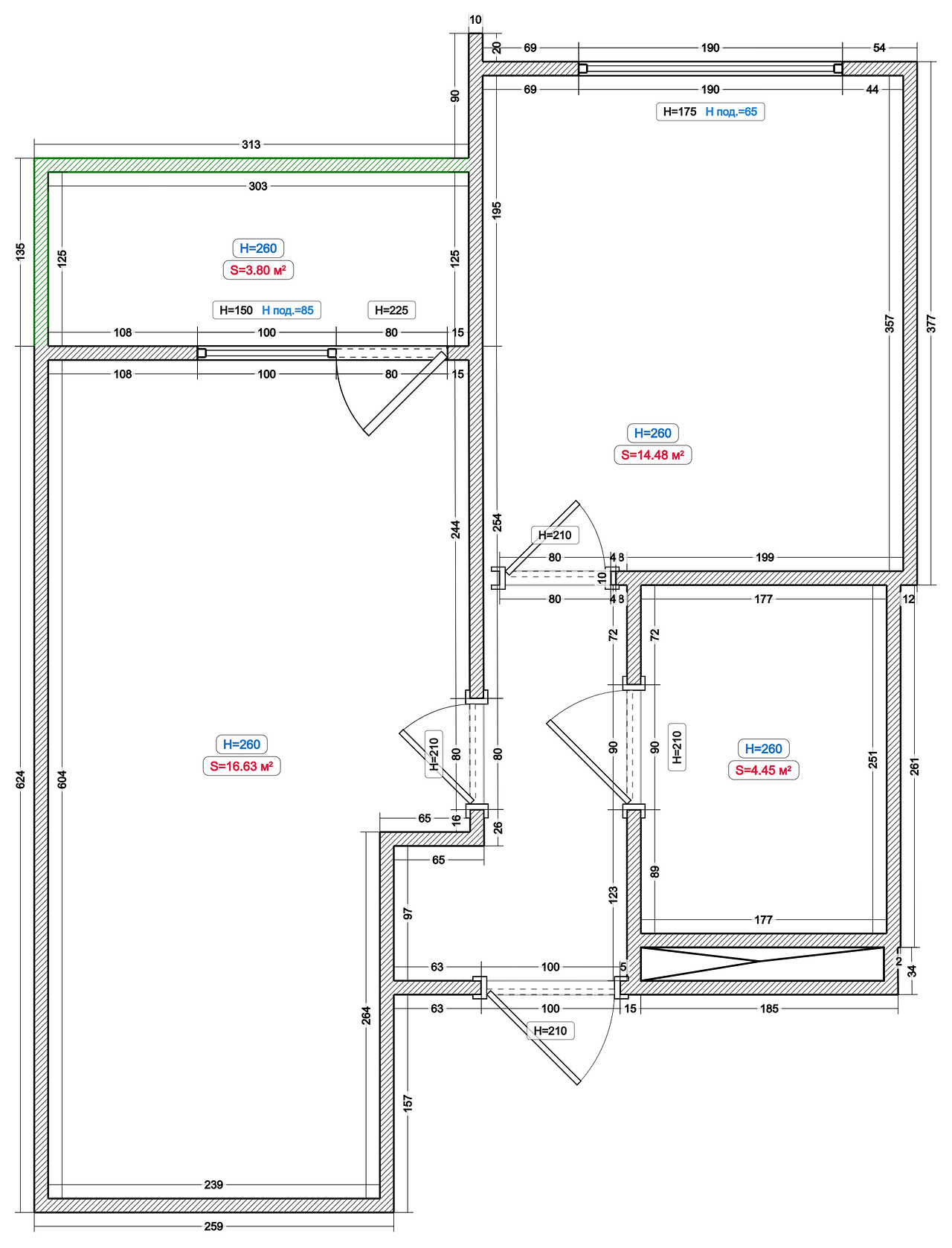
Реализованный проект однокомнатной квартиры площадью 36,5 м2

Интерьер преобразили с помощью небольшого косметического ремонта, правильного подбора мебели и декора. Читать далее...

План
Комната Было Стало
Общая площадь 36,5 м2 36,5 м2
Количество комнат 1 1
Высота потолка 2,7 м 2,7 м
Весь объект 36,5 м2
Кухня-гостиная 16,6 м2
Спальня 10,6 м2
Ванная комната 4,8 м2
Прихожая 3,6 м2
Редакция предупреждает, что в соответствии с Жилищным кодексом РФ требуется согласование проводимых переустройств и перепланировок.
Материалы и цвета
Кухня-гостиная
  • Мебель: диван и стулья divan.ru, журнальный столик Iva Room, обеденный стол ALLiDea
  • Шторы: жалюзи сделаны на заказ, карниз Hameleon
  • Освещение: люстра из Китая
Авторы
Если это ваш проект, пожалуйста, свяжитесь с нами по адресу ivd@burda.ru, указав в письме ссылку на проект.
Современный стиль Квартира Желтые Красные Синие Чёрные и белые 1-комнатная
Комментарии (0)

Пока комментариев нет. Начните обсуждение!