Оливковый бархат

1-комнатная • 35м² • Москва • ЖК Достижение • 2026 • 06.01.2026

Это спокойная, изящная квартира, созданная под сдачу. Запланированы все необходимые зоны, места для хранения, отдыха и продумано хорошее техническое наполнение.

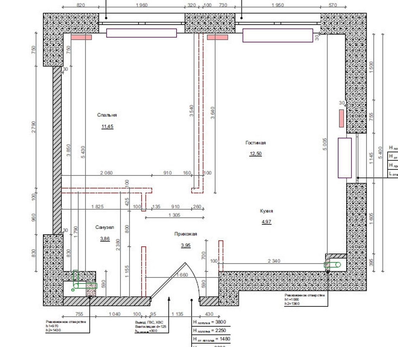
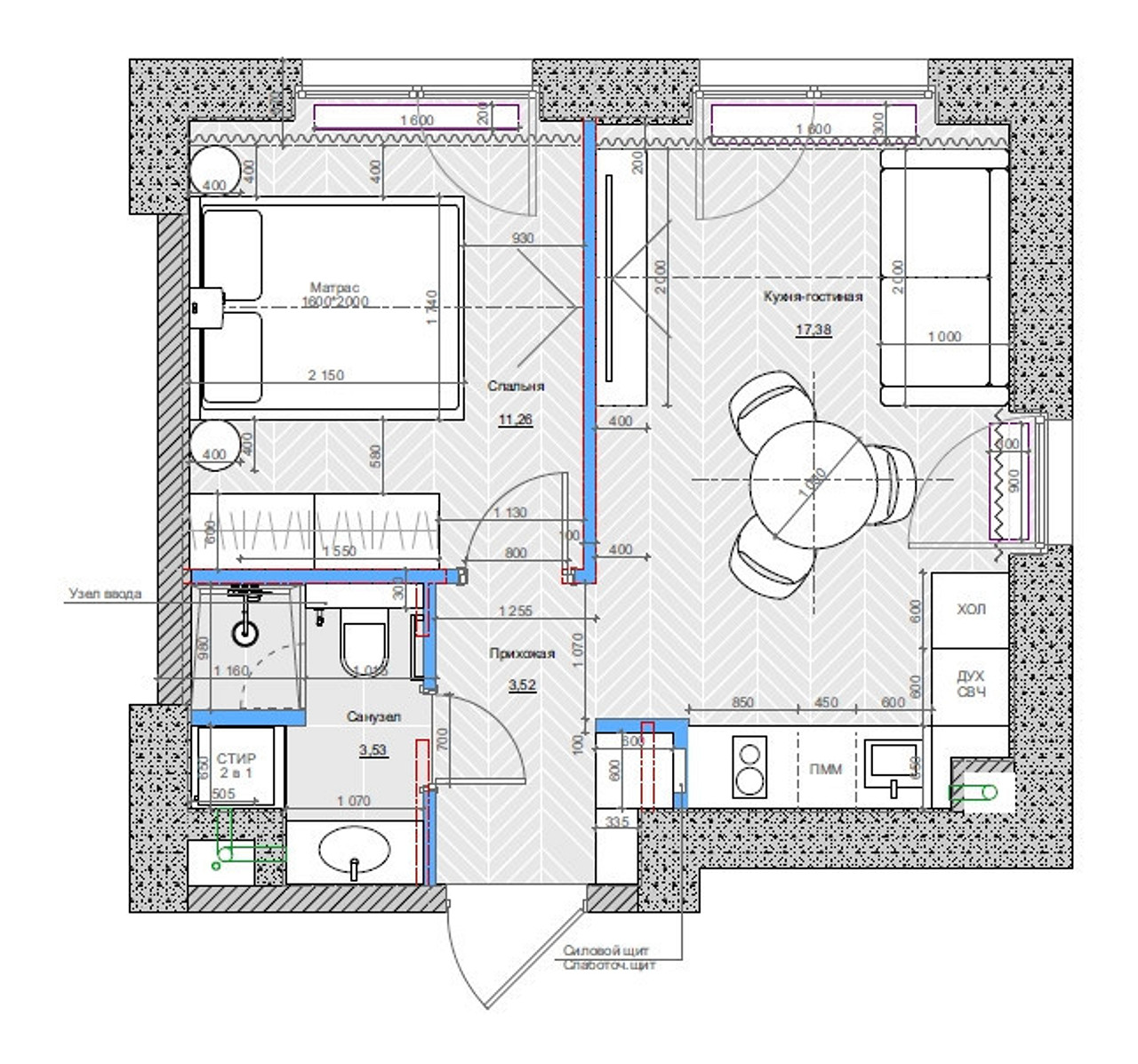
План
Комната Было Стало
Общая площадь 35 м2 35 м2
Жилая площадь 11 м2 11 м2
Количество комнат 1 1
Спальня 11 м2 11 м2
Редакция предупреждает, что в соответствии с Жилищным кодексом РФ требуется согласование проводимых переустройств и перепланировок.
Авторы
Если это ваш проект, пожалуйста, свяжитесь с нами по адресу ivd@burda.ru, указав в письме ссылку на проект.
Современный стиль Квартира 1-комнатная
Комментарии (0)

Пока комментариев нет. Начните обсуждение!